Eladó családi ház Győrzámoly 71 900 000 Ft

Leírás


Remek ajánlat! 

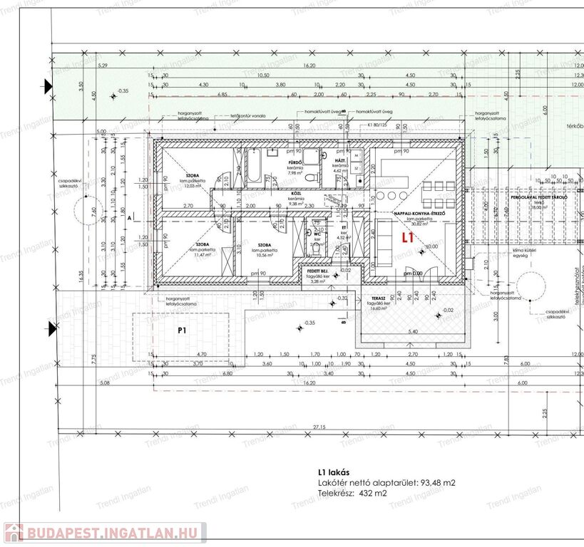
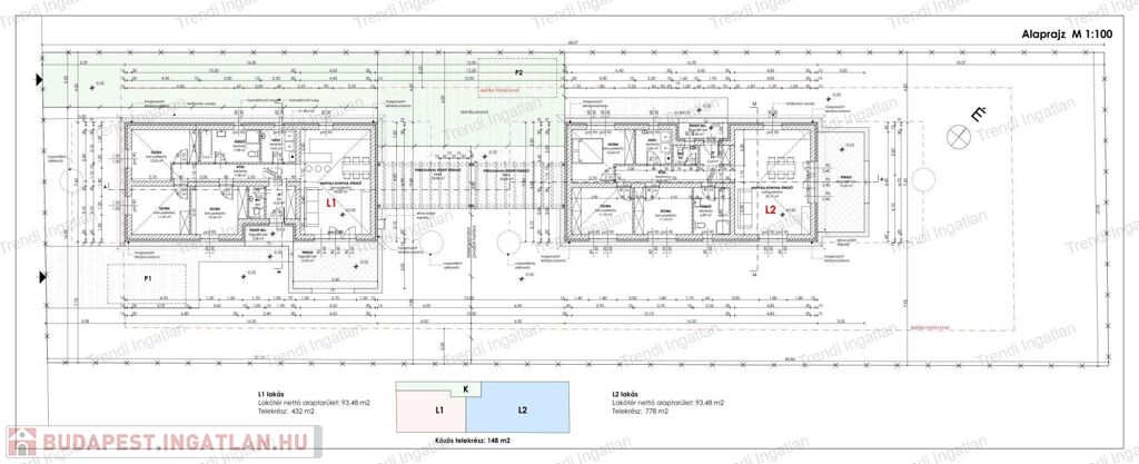
Győrzámoly központjához közel 93,48 nm-es ikerház 432 nm-es telekrészen eladó. A házak önállóan megközelíthetők, a két házat csak a pergola köti össze, nincs közös fal.

A kiváló elosztású házban amerikai konyhás nappali, 3 szoba, fürdőszoba WC-vel, háztartási helyiség, külön WC, közlekedő, előtér található. A nappaliból elérhető 16,60 nm-es terasz. A ház belső elrendezése készültségi fokhoz mérten még változtatható.

A ház 30-as falazóelemből, 15 cm-es homlokzati szigeteléssel, 3 rétegű műanyag nyílászárókkal kerül kivitelezésre. Az ingatlan fűtését és melegvíz ellátását kondenzációs kazán biztosítja. A klíma előkészítését, a színes ereszt tartalmazza az ár. Felár ellenében hőszivattyús fűtés, redőnyelőkészítés, kerti csap, riasztó előkészítés, térkövezés kérhető.

Várható fűtéskész átadás 2026.

Az ingatlan fűtéskész ára: 71.900.000 Ft. Az ár tartalmazza a telek árát is.

Kulcsrakész befejezés kérhető.

Bővebb információkért forduljon hozzám bizalommal.

Hétköznap és hétvégén is várom hívását!

Díjmentes, bankfüggetlen hitelügyintézéssel állunk rendelkezésére.

A hirdetésben feltüntetett képek illusztrációk.

Családi ház részletei

Ár: 71 900 000 Ft
Méret: 93 négyzetméter
Azonosító: 11514886
Irodai azonosító: 196400719
Telek: 432 négyzetméter
Ingatlan állapota: Kitűnő
Jelleg: ikerház
Építőanyag: Tégla
Komfort fokozat: Összkomfort
Kor: Új építésű
Egész szobák: 4

Így keressen budapesti ingatlant négy egyszerű lépésben. Csupán 2 perc, kötelezettségek nélkül!

Szűkítse a budapesti ingatlanok
listáját
Válassza ki a megfelelő
budapesti ingatlant
Írjon a hirdetőnek
Várjon a visszahívásra