Eladó családi ház Győrzámoly 99 900 000 Ft

Leírás

Kitűnő helyen, szuper áron, csodás természeti környezetben kulcsrakész önálló családi ház

Győrzámoly csendes új építésű utcájában kínálok Önnek egy önálló családi házat.
Az épület egy 625 m2-es, új parcellázású telken épül fel.

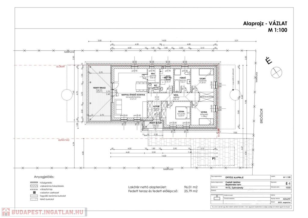
A 96,01 m2-es ház helyiségei: amerikai konyhás nappali, 3 HÁLÓSZOBA, kamra, fürdőszoba WC-vel, közlekedő, háztartási helyiség, külön WC és előszoba.
Az ingatlanhoz 23,22 m2 fedett terasz és 2,65 m2-es fedett bejárat tartozik.

Az ár kulcsrakész állapotra vonatkozik 5% Áfával és tartalmazza a telekhányadot, ami 30 millió Ft.
Megbízható kivitelező! Megtekinthető referencia házak.

Várható befejezés: 2026. nyár

Műszaki tartalom:
- Leier 30-as N+F tégla falazat, 10 cm tégla válaszfalak
- Gealan típusú, 3 rétegű üveggel ellátott fehér hőszigetelt ablakok, Igényes, hőszigetelt bejárati ajtó
- Baumit Star EPS hőszigetelő rendszer 15 cm homlokzati szigeteléssel
- padlószerkezetbe 10 cm lépésálló hőszigetelés kerül
- fafödém 30 cm Rockwool Multirock ásványgyapot hőszigeteléssel
- Terran beton tetőcserép
- FŰTÉS kondenzációs gázkazánnal, minden helyiségben padlófűtéssel
- 2 db KLíMA az árban
- REDŐNY az árban
- a tető színével megegyező színű alumínium ereszcsatorna
- hideg- és meleg burkolatok
- glettelt és fehérre festett falak
- beltéri ajtók
- konnektorok, kapcsolók,
- szaniterek, csapok

A kulcsrakész befejezés az Ön igényei alapján kerül kivitelezésre. Egy árlista szerint minden beépített anyagot kiválaszthat.

Egyéni megbeszélés alapján értékegyeztetéssel még választható. ( Hőszivattyú, napelem,....)

Ajánlom mindazoknak akik a Szigetköz egyik kiemelkedően fejlődő településén, kellemes környezetben szeretnék élni életüket.
Az építkezés ILLETÉKMENTES!

CSOK, kamattámogatott hitelek igényelhetők. Díjmentes hitelügyintézés!

Hívjon gyorsan, mert már nagyon kevés hasonló projekt indul!
Várom hívását! 20/2777237

Családi ház részletei

Ár: 99 900 000 Ft
Méret: 96 négyzetméter
Azonosító: 11572717
Irodai azonosító: 122634
Cím: Győrzámoly
Telek: 625 négyzetméter
Ingatlan állapota: Átlagos
Jelleg: családi ház
Építőanyag: Kérdezzen rá a hirdetőtől »
Fűtés jellege: Cirkó
Kor: Új építésű
Egész szobák: 4

Egyéb jellemzők

  • Terasz

Így keressen budapesti ingatlant négy egyszerű lépésben. Csupán 2 perc, kötelezettségek nélkül!

Szűkítse a budapesti ingatlanok
listáját
Válassza ki a megfelelő
budapesti ingatlant
Írjon a hirdetőnek
Várjon a visszahívásra