Eladó családi ház Győrújfalu 89 900 000 Ft

Leírás


Győr-Moson-Sopron Vármegye, Győrújfalu új építésű 4 szobás ikerház eladó.

 

GYŐRÚJFALU

Magyarország északnyugati részén, Győrtől 6 kilométerre helyezkedik el, az 1401-es út mentén. Lakossága kb. 2000 fő.

 

Az ikerház elhelyezkedését tekintve központi helyen van, de a főúttól kicsit távolabb.

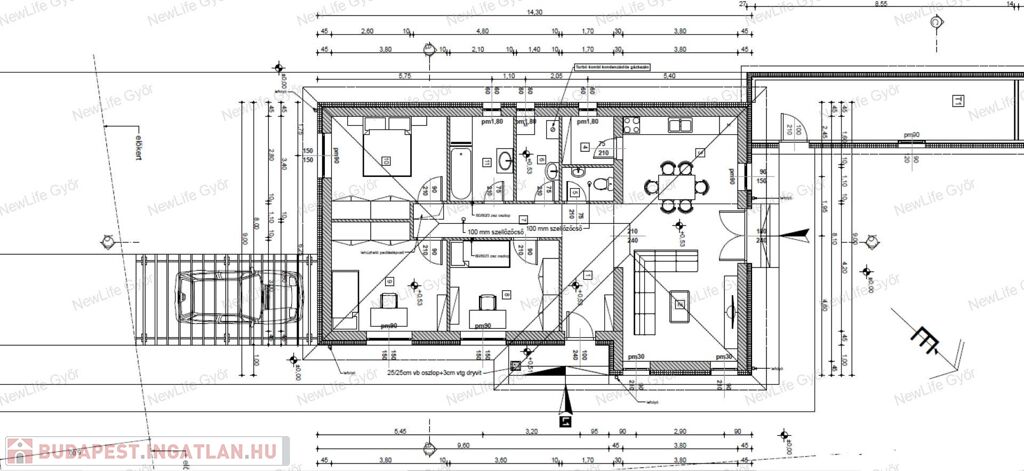
Egy 1323 m2-es telken helyezkednek el, közös fala nincs, tárolókon keresztül csatlakoznak egymáshoz. Utcafronti (L1) ház: 94 m2 + 17 m2 tároló 517 m2-es telek, hátsó (L2) ház: 103 m2+8 m2 tároló + 18 m2 terasz 806 m2 telken. Tárolók csak a kulcsrakész állapotban vannak benne. 

 

AZ ÉPÜLET:

A 4 szobás (L1), 94 m2-es ikerház ház fűtéskész állapotban kerül átadásra várhatóan: 2025 második felében. Természetesen, kulcsrakész befejezésre is van lehetőség.

Két ikerház elhelyezkedése: egymás mögött helyezkednek el, tárolókon keresztül csatlakoznak.

Elosztása: Előtér, közlekedő, amerikai konyhás nappali étkezővel, kamra, három szoba, egy fürdőszoba, külön WC, háztartási helyiség.

 

MŰSZAKI TARTALOM:

Teherhordó falazat 30-as tégla falazattal készülnek, 15 cm-es hőszigetelő rendszerrel. Fafödém, 30-cm üveggyapot hőszigeteléssel. Terrán fekete tetőcserép, antracit bádogos szerkezet és esőcsatorna.

Padló hőszigetelés 12 cm-es lépésálló.

Homlokzati fehér műanyag nyílászárók hő- és hangszigetelt 5 légkamrás, 3 rtg üvegezéssel, műanyag 5 ponton záródó hőszigetelt fehér bejárati ajtó.

A fűtésről és melegvízellátásról kondenzációs kombi gázkazán gondoskodik (Saunier Duval), hőleadás padlófűtésen keresztül történik.  

 

Az ár a telekhányadot már tartalmazza. Kisebb mértékű változtatás az építés előrehaladottságától függően lehetséges, műszaki tartalom emelhető felár ellenében.

(akár hőszivattyús fűtési rendszer, napelem is kérhető)

A családi házra CSOK Plusz, kedvezményes lakáshitel, illetékmentesség is igényelhető/felvehető, így az összes támogatás kihasználható rá, ami aktuálisan elérhető.

 

KI ÉPÍTI?

A vállalkozó és összeszokott csapata, számos referenciával rendelkeznek, lassan 20 éve építenek, befejeznek, felújítanak.

Ez alatt az idő alatt kialakult egy rutin, a házak terveit folyamatosan alakítják, mindig a kor legfontosabb követelményeinek és trendjeinek figyelembe vételével. Tudják, amit vállalnak azt precízen, pontosan megvalósítják, határidők, igények betartásával.

 

 

Ne maradjon le róla!

 

A jelen hirdetésben rögzített, az ingatlannal kapcsolatos adatok, információk a Megbízó tájékoztatása alapján kerültek meghatározásra.

 

Irodánkban az alábbiakkal tudjuk segíteni a gyors és megbízható ügyintézést:

-bankfüggetlen hitelügyintézés, CSOK Plusz

-energetikai tanúsítvány

-értékbecslés

-ügyvédi szerződések, jogi tanácsadás

Családi ház részletei

Ár: 89 900 000 Ft
Méret: 94 négyzetméter
Azonosító: 11458932
Irodai azonosító: 718800183
Telek: 517 négyzetméter
Ingatlan állapota: Átlagos
Jelleg: családi ház
Építőanyag: Tégla
Komfort fokozat: Összkomfort
Kor: Új építésű
Egész szobák: 4

Így keressen budapesti ingatlant négy egyszerű lépésben. Csupán 2 perc, kötelezettségek nélkül!

Szűkítse a budapesti ingatlanok
listáját
Válassza ki a megfelelő
budapesti ingatlant
Írjon a hirdetőnek
Várjon a visszahívásra