Eladó családi ház Győrújbarát 128 000 000 Ft

Leírás

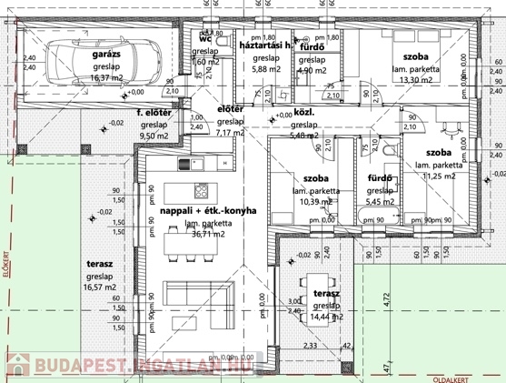
Győrújbarát csendes, zöldövezeti részén, mégis a központhoz közel, 922 m²-es telekre épülő, 118,5 m² hasznos alapterülettel, 3 szoba + tágas nappali kialakítással, két fürdőszobával, valamint 14,44 és 16,57 m²-es terasszal és 16,37 m²-es garázzsal rendelkező, prémium minőségű, ÚJ ÉPÍTÉSŰ családi ház eladó.

Emeltszintű szerkezetkész ár: 128 000 000 HUF
Igény esetén kulcsrakész kivitelezés.
Átadás várható ideje: 2026 július
(A látványterv tájékoztató jellegű.)
Érd.: +36/70 418-94-38

Főbb jellemzők
- ÚJ ÉPÍTÉSŰ, modern kivitelezés
- Kiváló alaprajzi elrendezés
- Emeltszintű szerkezetkész állapot
- Hőszivattyús fűtési mód, hőleadás padlófűtéssel
- 3 rétegű nyílászárók
- Nagyméretű, napfényes terek
- Két külön fürdőszoba
- Élhető telek, nyugodt környezet
- Prémium anyaghasználat – hosszú távú értékállóság

Műszaki tartalom:
Falszerkezet:
- LEIERTHERM 30 N+F falazóelem, vasbeton pillérekkel
Válaszfalak:
- LEIERTHERM N+F 10
Nyílászárók:
- Szürke színű műanyag ablakok, 3 rétegű üvegezéssel
- Hőszigetelt, 5 ponton záródó bejárati ajtó
Fűtés:
- Hőszivattyú, hőleadás padlófűtéssel
Hőszigetelés:
- 12 cm AUSTROTHERM AT-N150 lépésálló padlószigetelés
- 5 cm STYRODUR vasbeton elemek előtt
- 15 cm EXPERT FIX lábazati szigetelés
- 15 cm AUSTROTHERM GRAFIT 80 homlokzati szigetelés
- 10+15 cm ISOVER DOMO tetőtéri hőszigetelés

Ügyfeleink ingatlan vásárlását hozzáértő hitel tanácsadással, illetve teljes körű, ingyenes banki ügyintézéssel segítjük (OTTHON START hitel, támogatott és piaci lakáshitelek, babaváró hitel, személyi kölcsön vagy akár Lakástakarék Pénztár)
• Kiemelt banki kedvezményeket nyújtunk partner pénzintézeteink kínálatából (kedvezményes kamat, ingyenes előtörlesztés, egyedi akciók)
• Az összes bank ajánlata egy helyen !
• Kényelmi szolgáltatásként lakásbiztosítás, illetve hitelfedezeti biztosítás megkötésében is segítséget nyújtunk.

Családi ház részletei

Ár: 128 000 000 Ft
Méret: 139 négyzetméter
Azonosító: 11582346
Irodai azonosító: 123458
Cím: Győrújbarát
Telek: 922 négyzetméter
Ingatlan állapota: Átlagos
Jelleg: családi ház
Építőanyag: Kérdezzen rá a hirdetőtől »
Fűtés jellege: Cirkó
Kor: Új építésű
Egész szobák: 4

Egyéb jellemzők

  • Terasz

Így keressen budapesti ingatlant négy egyszerű lépésben. Csupán 2 perc, kötelezettségek nélkül!

Szűkítse a budapesti ingatlanok
listáját
Válassza ki a megfelelő
budapesti ingatlant
Írjon a hirdetőnek
Várjon a visszahívásra