Eladó családi ház Gödöllő 329 000 000 Ft

Leírás


Gödöllő Haraszt városrészén, az Erzsébet Park mellett, prémium minőségben épült, kiváló állapotú, duplagarázsos családi ház eladó!

Az ingatlan 2009–2010-ben épült, magas műszaki tartalommal, időtálló anyagok felhasználásával, tágas terekkel és átgondolt elrendezéssel.

Főbb jellemzők:

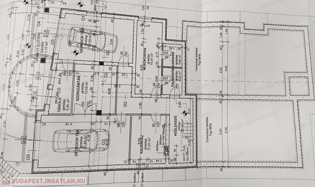
Földszint: 205,7nm

Szuterén: 128,8nm

Telek: 955nm, parkosított, gondozott kert

Terasz: 56,7nm

Szuterén szint:

- Kétállásos garázs (Hörmann szekcionált kapukkal)

- Tárolók

- Mosókonyha gardróbbal

- Kazánház

Földszint:

- Tágas nappali–konyha–étkező egy légtérben

- Szülői hálószoba saját gardróbbal és fürdőszobával

- Két különálló, tágas szoba saját fürdővel

- Külön zuhanyzó + WC

- Előszoba, közlekedő

- Közvetlen kertkapcsolatos, 56,7nm terasz

Műszaki tartalom és extrák:

- 44 cm Porotherm falazat + 15 cm hőszigetelés

- Bramac római cserépfedés

- Hőszigetelt, fa nyílászárók

- Hörmann szekcionált garázskapuk

- Hoval kondenzációs kazán

- Padló-, fal- és mennyezetfűtés

- Viadrus vegyes tüzelésű kazán

- Kandalló

- Központi porszívó

- Vízlágyító rendszer

- Fúrt kút

Vételár tartalmazza:

- Komplett nappali bútorzatot, TV-t.

Lokáció:

- Helyi busz, HÉV, vasútállomás: 5 perc sétára

- Bevásárlási lehetőség: gyalogosan elérhető

- Iskola, óvoda: ~200 méteren belül

- Autópálya: 5 perc autóval

Az ingatlan ideális választás mindazok számára, akik kompromisszumok nélküli otthont keresnek kiváló infrastruktúrával, mégis nyugodt, zöld környezetben.

Irányár: 329 millió Ft

Hivatkozási szám: 2518301.

Megtekinthető telefonos időpont egyeztetés alapján:

Sápi Balázs +36 20 772-2429 [email protected]  

GÖDÖLLŐ INGATLANKÖZPONT - www.godolloi.hu: Gödöllő és környéke legnagyobb ingatlan választéka /Gödöllő, Szada, Veresegyház, Kistarcsa, Kerepes, Erdőkertes, Fót, Dunakeszi/ eladó-kiadó családi ház, telek, lakás! Ingatlan építés és felújítás!

Családi ház részletei

Ár: 329 000 000 Ft
Méret: 335 négyzetméter
Azonosító: 11613730
Irodai azonosító: 2518301
Telek: 955 négyzetméter
Ingatlan állapota: Kitűnő
Jelleg: családi ház
Építőanyag: Tégla
Egész szobák: 4

Így keressen budapesti ingatlant négy egyszerű lépésben. Csupán 2 perc, kötelezettségek nélkül!

Szűkítse a budapesti ingatlanok
listáját
Válassza ki a megfelelő
budapesti ingatlant
Írjon a hirdetőnek
Várjon a visszahívásra