Eladó családi ház Gödöllő 134 900 000 Ft

Leírás

GÖDÖLLŐN, ALVÉG VÁROSRÉSZEN ELADÓ EGY ÚJ ÉPÍTÉSŰ, FÖLDSZINTES, NETTÓ 150 NM-ES IKERHÁZFÉL, 407 NM-ES TELEKKEL ÉS 1 ÁLLÁSOS GARÁZZSAL.



Az ingatlan 2026 júniusában kerül kulcsrakész állapotba.

Az épület társas házzá lesz nyilvánítva.



Főbb jellemzők:

Alapterület: nettó 150 m²

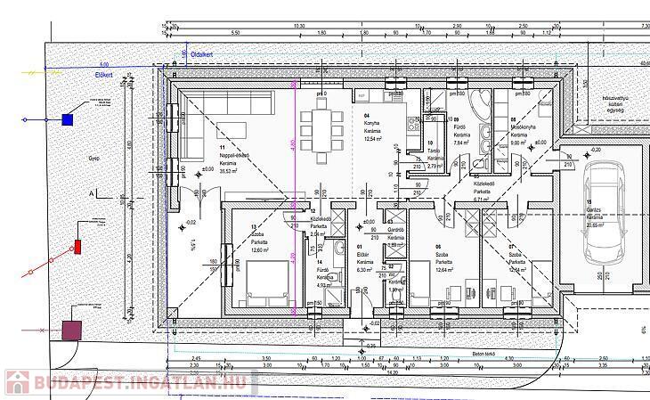
Telekméret: 407 m²

Építési éve: 2026 (új építésű)

Falazat: 30 cm Porotherm tégla

Válaszfalak: 10 cm Porotherm

Szigetelés: 15 cm grafitos dryvit a homlokzaton, aljzatban 10 cm szigetelés

Tető: Bramac cserép, tetőtérben 25 cm üveggyapot hőszigetelés

Fűtés: Energia hatékony hőszivattyús rendszer

Stabil, 100 cm mély beton alap

Parkolás: Saját 1 állásos garázs



Az ár tartalmazza:

Beltéri ajtók: 60.000 Ft/db,

Beltéri hidegburkolatok: 6.500 Ft/ m²,

Beltéri melegburkolatok: 6.000 Ft/ m²,

Kültéri burkolatok: terasz 6,500 Ft/ m²,

Szaniterek:

Kád: 60.000 Ft/db,

Kádtöltő: 25.000 Ft/db,

Zuhany csaptelep: 25.000 Ft/db,

Mosdó csaptelep: 15.000 Ft/db,

Standardmosdó: 20.000 Ft/db,

Wc + tartály: 35.000 Ft.

Elrendezés:

Amerikai konyhás nappali, 3 szoba, zuhanyzós fürdőszoba + mellékhelyiség, kádas fürdőszoba + mellékhelyiség, külön mellékhelyiség, mosókonyha, garázs, kamra, terasz.



Környék:

A környék jól ellátott helyi és agglomerációs tömegközlekedéssel, ami kényelmes eljutást biztosít mind Gödöllő belvárosába, mind Budapest irányába.

A H8 HÉV/ Gödöllő felől közvetlen kapcsolatot biztosít Budapest Örs vezér tere metróállomással, ahol a 2-es metróhoz lehet átszállni.

Gödöllő városán belül több helyi buszjárat közlekedik, amelyek összekötik a városrészeket, így Alvéget is a vasútállomással és a város központjával.

A buszmegállók gyalogosan néhány perc alatt elérhetők a környéken.

Közelben számos bevásárlási lehetőség, gyógyszertár, bölcsőde, óvoda, iskola, játszótér található.



Finanszírozás:

Az ingatlan banki finanszírozással is megvásárolható, melyben irodánk ingyenes tanácsadással áll rendelkezésükre!



Irányár: 134,9 M Ft.

VEVŐINK RÉSZÉRE A KÖZVETÍTÉS DÍJTALAN



A hirdetésben szereplő adatok tájékoztató jellegűek.

Családi ház részletei

Ár: 134 900 000 Ft
Méret: 150 négyzetméter
Azonosító: 11600005
Irodai azonosító: 24760
Telek: 407 négyzetméter
Ingatlan állapota: Épülő
Jelleg: családi ház
Építőanyag: Kérdezzen rá a hirdetőtől »
Fűtés jellege: Egyéb
Egész szobák: 4

Így keressen budapesti ingatlant négy egyszerű lépésben. Csupán 2 perc, kötelezettségek nélkül!

Szűkítse a budapesti ingatlanok
listáját
Válassza ki a megfelelő
budapesti ingatlant
Írjon a hirdetőnek
Várjon a visszahívásra