Eladó családi ház Gödöllő 129 000 000 Ft

Leírás

CasaNetWork Ingatlaniroda Gödöllő Ingatlaniroda kínálatában eladó ikerház Gödöllő Kertvárosban, központhoz közel

Gödöllő legkeresettebb, belvárosi utcájában, mindenhez lépésnyi közelségben eladó egy tökéletes elosztású, új építésű otthon! Még a hátsó, csendesebb, intimebb környezetben lévő, nagyobb fél szabad, le ne maradjon róla!

Ez az ingatlan Gödöllő szívében, a leginkább keresett utcában található, ahol a csendes, kulturált környezet találkozik a belváros minden kényelmével. A HÉV, vonat és buszmegállók, a központ, az intézmények, a bevásárlási lehetőségek és a rendelőintézet is csupán egy karnyújtásnyira vannak, így az autóhasználat minimalizálható.

Az ingatlan kialakítása során a kényelem és a praktikum volt a fő szempont. Az elrendezés tökéletesen alkalmazkodik a modern családok igényeihez:

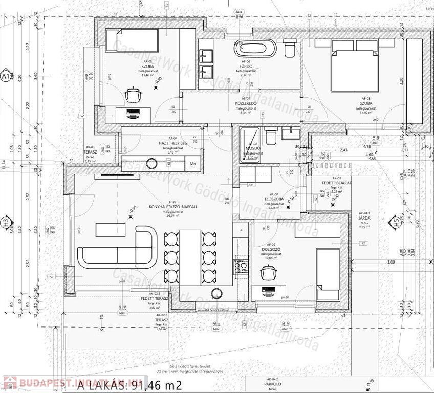
  • Három hálószoba biztosítja a privát szférát és a kényelmet
  • A külön háztartási helyiség a mindennapi életet könnyíti meg
  • A déli terasz a szabadidő és a társasági élet kellemes eltöltésére nyújt lehetőséget, a pici kert pedig ideális a kikapcsolódásra és a zöld környezet élvezetére

Műszaki adatok:

  • - 30-as PTH tégla falazat + 10cm grafit szigetelés, 
  • - 10cm válaszfalak, glettelve, fehér színűre festve, 
  • - lábazaton zsalukő, szigetelve, vakolva, 
  • - 5 légkamrás műanyag nyílászárók 3 rétegű üvegezéssel, középszürke színben,
  • - monolit vasbetonfödém, 
  • - Antracit cserépfedés,
  • - középszürke színű ereszcsatorna, 
  • - Atlantic loria hőszivattyú beépített melegvíz tárolóval, minden helyiségben padlófűtés, fürdőben törülközőszárítós radiátor, 
  • - riasztó, klíma előkészítés
  • - redőnyszekrény elektromos kiállással motor és vezérlés számára

Az ár tartalmazza:

  • - beltéri ajtókat 60.000.-Ft/db,
  • - hideg- és melegburkolatokat 5.000.-Ft/nm,
  • - teraszburkolatot 6.500.-Ft/nm,
  • - mosdókat 20.000.-Ft/db,
  • - csaptelepeket 15.000.-Ft/db, 
  • - beépített Geberit Wc kagylókat 20.000.-Ft/db,

A burkolatok és a szaniterek a vevő igényei szerint még szabadon választhatók!

A házhoz udvari kocsibeálló tartozik. Az ikrek praktikus tárolóval vannak összeköttetésben, áthallás kizárt!

Az ingatlant számos referenciával rendelkező, megbízható kivitelező építi, garantálva a magas minőséget és a gondos munkát. Az építési munkák 2026. májusában kezdődnek. 

Várható kulcsrakész átadás: 2026. év vége

Ez a családi ház ideális választás mindazok számára, akik egy csendes, modern otthonra vágynak, de nem szeretnének lemondani a belváros közelségének előnyeiről. Ha szeretne élni ezzel a lehetőséggel, keressen fel minket még ma! Ingyenes hitel tanácsadással, ügyvédi kapcsolattal és rugalmas időbeosztással állunk kedves ügyfeleink rendelkezésére! CASANETWORK - Ingatlanban otthon vagyunk


Családi ház részletei

Ár: 129 000 000 Ft
Méret: 95 négyzetméter
Azonosító: 11612586
Irodai azonosító: 166401982
Telek: 346 négyzetméter
Ingatlan állapota: Kitűnő
Jelleg: ikerház
Építőanyag: Tégla
Komfort fokozat: Dupla komfort
Egész szobák: 4

Így keressen budapesti ingatlant négy egyszerű lépésben. Csupán 2 perc, kötelezettségek nélkül!

Szűkítse a budapesti ingatlanok
listáját
Válassza ki a megfelelő
budapesti ingatlant
Írjon a hirdetőnek
Várjon a visszahívásra