Eladó családi ház Gödöllő 124 900 000 Ft

Leírás





Gödöllőn, Kertvárosban, Új építésű, 2 szintes ikerházfél eladó!

Eladásra kínálunk egy 141 m²-es, modern ikerházfelet, amelyhez 272 m² saját telekrész tartozik.

Az ingatlan 2026 első felében kerül kulcsrakész állapotba.

Az épület társasházzá lesz nyilvánítva.



Jelenleg egyénileg választhatóak a burkolatok, nyílás zárok és szaniterek,

Utólag beépíthető átfogó tokos ajtó, bruttó 60.000 Ft/db, összeghatárig, a megrendelő igénye szerint.

Burkolatok: meleg burkolatköltsége szegély nélkül 5.500 Ft/ nm-ig.

Kültéri burkolatok: terasznál fagyálló gres hidegburkolat 6.500 Ft/nm, az ehez tartozó anyagok, fugák, élvédők és munkadíjai szintén az eladó költsége.



Választható szaniterek költség határa:

Kád: 50.000 Ft/db összeghatárig.

Kádtöltő csaptelep 25.000 Ft/db összeghatárig

Zuhany csaptelep 25.000 Ft/db összeghatárig

Standardmosdó 25.000 Ft/db összeghatárig

Mosdó csaptelep 20.000 Ft/db összeghatárig

Wc+tartály 45.000 Ft/db összeghatárig.



Főbb jellemzők:

Hasznos alapterület: 141 m²

Telekméret: 272 m²

Építés éve: 2026 (új építésű)

Falazat: 30 cm Porotherm tégla

Válaszfalak: 10 cm Porotherm

Szigetelés: 15 cm grafitos dryvit a homlokzaton, aljzatban 10 cm szigetelés

Tető: Bramac cserép, tetőtérben 25 cm üveggyapot hőszigetelés

Fűtés: Energia hatékony hőszivattyús rendszer

Kiváló hő- és hangszigetelés

Stabil, beton alap

Parkolás: Saját 1 állásos garázs





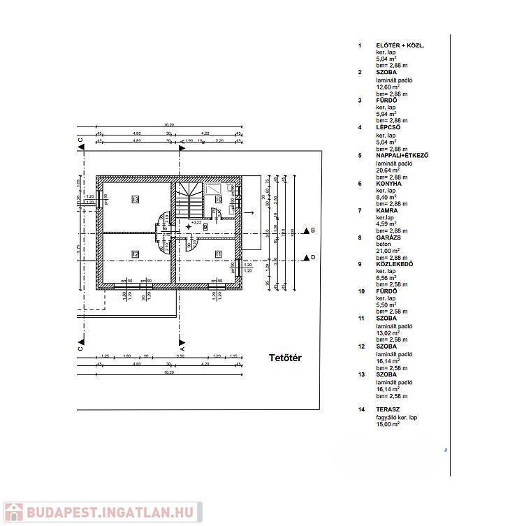
Elrendezés:

Földszint: amerikai konyhás nappali, 1 szoba, zuhanyzós fürdőszoba + mellékhelyiség, kamra, tároló, közlekedő, kertkapcsolatos terasz

Emelet: 3 külön nyíló hálószoba, kádas fürdőszoba + mellékhelyiség, közlekedő



Környék:

Közelben számos bevásárlási lehetőség, gyógyszertár, bölcsőde, óvoda, iskola, játszótér található.

Pár perc sétára a Mátyás Király utcai vasútállomás található. Az M3-as autópálya pár perc alatt közelíthető meg. Közelben 5, 45, 4, 4A, 24, 45 helyi buszjárat érhető el.



Finanszírozás:

Az ingatlan banki finanszírozással is megvásárolható, melyben irodánk ingyenes tanácsadással áll rendelkezésükre!

Irányár: 124,9 M Ft.

VEVŐINK RÉSZÉRE A KÖZVETÍTÉS DÍJTALAN

A hirdetésben szereplő adatok tájékoztató jellegűek.



Családi ház részletei

Ár: 124 900 000 Ft
Méret: 141 négyzetméter
Azonosító: 11571208
Irodai azonosító: 23472
Telek: 272 négyzetméter
Ingatlan állapota: Épülő
Jelleg: családi ház
Építőanyag: Kérdezzen rá a hirdetőtől »
Fűtés jellege: Egyéb
Szintek száma: 1 szint
Egész szobák: 5

Így keressen budapesti ingatlant négy egyszerű lépésben. Csupán 2 perc, kötelezettségek nélkül!

Szűkítse a budapesti ingatlanok
listáját
Válassza ki a megfelelő
budapesti ingatlant
Írjon a hirdetőnek
Várjon a visszahívásra