Eladó családi ház Göd 139 900 000 Ft

Leírás

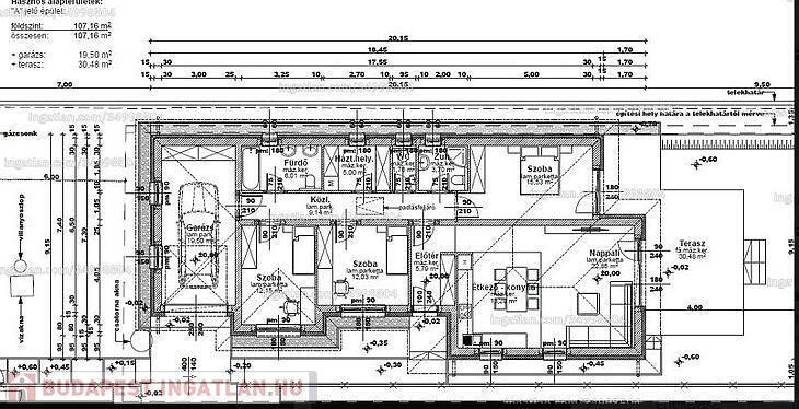
Göd központi részén eladó egy 122 nm-es, újépítésű családi ház, 450 nm-es saját kerttel.

Az ingatlan 30-as téglából épül, 15 cm-es EPS szigeteléssel és háromrétegű műanyag nyílászárókkal, amelyek stabil és jól szigetelt otthont biztosítanak. A fűtést hőszivattyú látja el, a teljes ház padlófűtéses.

Az elrendezés átgondolt: amerikai konyhás nappali, négy szoba, háztartási helyiség, egy zuhanyzós és egy kádas fürdőszoba szolgálja a kényelmet.

A cserépfedés tartós megoldást ad, a tervezett garázs helyett pedig igény esetén egy plusz szoba is kialakítható.

Az ingatlan jó elhelyezkedése és modern műszaki tartalma hosszú távon is kényelmes, jól használható otthont biztosít.

várható átadás: 2026. október

Jelen esetben foglalózás után, hideg meleg burkolatok, beltéri nyílászárók, szaniterek választhatóak melyek a meghirdetett ár részét képezik a belső műszaki tartalom szerint



Megtekintés érdekében vagy felmerülő kérdés esetén keresse irodánkat.

A hirdetésben szereplő adatok tájékoztató jellegűek.

Az ingatlan hitelre is megvásárolható. Bankfüggetlen tanácsadóink, az ország összes pénzintézete közül gyorsan és gördülékenyen találja meg az Önnek legmegfelelőbb konstrukciót, egyedi kedvezményekkel. A hitel és az ingatlan közvetítés vevőink részére díjmentes.

Családi ház részletei

Ár: 139 900 000 Ft
Méret: 122 négyzetméter
Azonosító: 11599079
Irodai azonosító: 24685
Telek: 450 négyzetméter
Ingatlan állapota: Épülő
Jelleg: családi ház
Építőanyag: Kérdezzen rá a hirdetőtől »
Fűtés jellege: Egyéb
Szintek száma: Földszintes
Egész szobák: 4

Így keressen budapesti ingatlant négy egyszerű lépésben. Csupán 2 perc, kötelezettségek nélkül!

Szűkítse a budapesti ingatlanok
listáját
Válassza ki a megfelelő
budapesti ingatlant
Írjon a hirdetőnek
Várjon a visszahívásra