Eladó családi ház Gárdony 249 900 000 Ft

Leírás

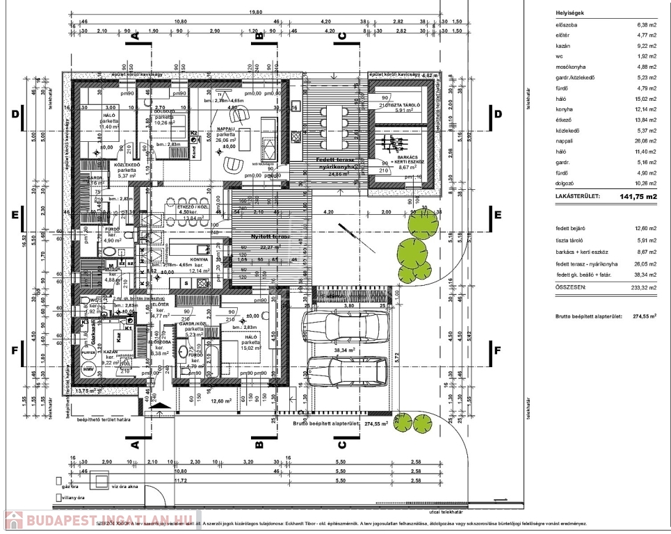
Eladó a Velencei-tó szomszédságában Gárdony-Dinnyés településen, újépítésű övezetben egy gyönyörű, összesen 275 nm-es, egyszintes, összkomfortos családi ház.

Az épületet 2013-ban a tervező úgy álmodta meg, hogy az inpozáns terekhez, nagy légtérhez kellő üvegfelület társuljon, aminek köszönhetően rengeteg természetes fény jut be.
A parkosított, összközműves telek 1265 nm, ahol helyet kapott egy 20nm-es tároló és egy 10 nm-es fatároló.
A két autó parkolására alkalmas fedett 38 nm-es gépkocsibeálló, egy egységet képez a házzal.
A 25 nm-es fedett, fűthető terasz eltolható üvegfelületekkel megnyitható a kert felé, de ezen kívül egy 22 nm-es nyitott terasz is rendelkezésünkre áll, amin egy elektromos napellenző gondoskodik az árnyékról.
A mai energiatakarékossági elvárásoknak megfelelő épület 30-as porotherm téglából épült, 16 cm-es külső szigeteléssel, a födém 30cm-es és az aljzat 12cm-es szigetelést kapott. A minőségi műanyag nyílászárók háromrétegű üveggel, redőnnyel, szúnyoghálóval szereltek. Minden nyílászáró körbe extra toktoldóval került beépítésre. A nagyobb üvegfelületeknél és a tetőtéri ablaknál a redőnyöket elektromos motor mozgatja.

Gépészet tekintetében is fontos szempont volt a gazdaságosság. A fűtésről és melegvízről BAXI kondenzációs gázkészülék gondoskodik, a hőleadás radiátorral és padlófűtéssel kombinált.
A nappaliban megépítésre került egy tömegkályha, így több lehetőségünk van kifűteni a lakásunkat. A ház havi rezsije most (4 főre): áram, gáz, víz-csatorna, szemét díj 40.000 Ft/hó az elmúlt 1 év alapján.

Az egész házban működő hővisszanyerős szellőztető rendszernek köszönhetően folyamatosan megfelelő páratartalomú friss levegő van.
TOVÁBBI KÉNYELMI EXTRA a központi pórszívó, riasztórendszer, klíma, 3 fázisú áram, öntözőrendszer és az elektromos kapu.

Helyiségek:

•Nappali (26.06 nm)
•Konyha (12,14 nm)
•Szoba (15,02 nm)
•Szoba (11,4 nm)
•Dolgozó (10,26 nm)
•Gardrób (5,16 nm)
•Gardrób (5,23 nm)
•Fürdő (4, 79 nm)
•Fürdő (4,9 nm)
•WC (1, 92 nm)
•mosókonyha (4,88 nm)
•Előtér (4, 77 nm)
•Előszoba (6,38 nm)
•Közlekedő (5,37 nm)
•Kazánház (9,22 nm)

Külső helyiségek:

•Fedett bejáró (12,6 nm)
•Táróló (5,91 nm)
•Kerti tároló (8,67 nm)
•Fedett terasz (26 nm)
•Fedett gépkocsibeálló és fatáróló (38,34 nm)

A KERT: mindenki számára önfeledt kikapcsolódást nyújt, tűzrakó hellyel, fúrt kúttal, 6 körös öntöző rendszerrel. A kb 300m2-es füves területre vakondháló került. A gabion fallal elválasztott területen 4 magaságyás (csepegtetővel), 4 gyümölcsfa, hársfa, szőlősor, málna, ribizli, egres bokor bizosítja a nyári vitambevitelt.
A kertben található még egy 20nm-es kis ház (2cm-es szigeteléssel) járolapozva a kerti eszközök tárolására illetve műhely lehetőséggel. Továbbá egy hintaágy+gyerek hinta illetve egy fedett, körbe zárt 10nm-es fatározó. A kert minden pontján biztosított az áramelérés, 5 helyen van vízcsap (ebből 2 DRV). A füves rész kivételével mindenhova került geotextília. Kb 100m2 a térkövezett felület ami az aszfaltútig kiér mind két kapunál.

Autóval Székesfehérvár 15, Budapest 45 perc alatt érhető el.
A közelben vonatállómás, buszmegálló, bevásárlási lehetőségek, iskolák, óvodák, gyógyszertár megtalálható.

Amennyiben a Velencei-tó csodás térségében, csendes és nyugodt környezetben szeretne otthonára találni, keressen bizalommal.

Családi ház részletei

Ár: 249 900 000 Ft
Méret: 275 négyzetméter
Azonosító: 11387895
Irodai azonosító: 344881
Cím: Gárdony-Dinnyésen gyönyörű otthon.
Telek: 1265 négyzetméter
Ingatlan állapota: Átlagos
Jelleg: családi ház
Építőanyag: Tégla
Fűtés jellege: Cirkó
Fűtés módja: Gáz
Komfort fokozat: Dupla komfort
Kor: 11-20 éves
Szintek száma: Földszintes
Egész szobák: 4

Egyéb jellemzők

  • Csatorna
  • Garázs
  • Pince
  • Terasz

Térkép


Így keressen budapesti ingatlant négy egyszerű lépésben. Csupán 2 perc, kötelezettségek nélkül!

Szűkítse a budapesti ingatlanok
listáját
Válassza ki a megfelelő
budapesti ingatlant
Írjon a hirdetőnek
Várjon a visszahívásra