Eladó családi ház Fót 59 900 000 Ft

Leírás

SÜRGŐSEN ELADÓ! ÁRCSÖKKENÉS!


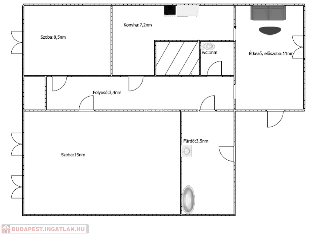
Fót kertvárosi részén ELADÓ egy felújítandó 82 nm-es, tégla építésű, családi ház, cc. 300 nm-es telekkel. Az alap épülethez, egy előszobát és egy garázst építettek hozzá, illetve beépítésre került a tetőtér.Jelenleg az alsó szinten,egy előszoba, konyha, fürdőszoba, külön wc, és két szoba található.A felső szinten két szoba lett kialakítva.

2022-ben részleges felújítások történtek a házon, ezek többek között a következők:
- teljes vízvezeték, vízhálózat csere
- részleges villanyvezeték cseréje, illetve bővítése
- nyílászárók cseréje az alsó szinten megtörtént, a felső szint teljes felújítást igényel.
- 2 db hűtő-fűtő klíma felszerelése
(jelenleg ez szolgáltatja a fűtést is)
- új ARISTON villanybojler felszerelése, mely a fürdőszobában és a konyhában is szolgáltatja a meleg vizet.

A rendezett telken egy ásott, gyűrűs kút szolgál a kert locsolására.

Parkolás az udvaron két autóval lehet, a ház előtt három autó is elfér.

PER ÉS TEHER MENTES!

Közlekedés kiváló:

Buszközlekedés Budapest felé:
Buszok: 318, 308, 314,315,autóval: M2, M0, M3, valamint 5 perces sétára Fót vasútállomás, mellyel 30 perc a Nyugati pu.

Közelben bevásárlási lehetőségek, 500 méterre, óvoda, iskola, kis játszótér, kosárlabda pálya, orvosi rendelők.

Ez az ingatlan remek választás lehet azok számára, akik saját ízlésük szerint szeretnék felújítani és alakítani új otthonukat.


A TÖBBÉVES SZAKMAI TAPASZTALATON TÚL - AZ ALÁBBIAKBAN TÁMOGATJUK MÉG AZ ADÁSVÉTELT:
- Megbízható ügyvédi háttér
- Energetikai tanúsítvány
- INGYENES, BANKFÜGGETLEN hitelügyintézés (megtaláljuk Önnek a legjobb konstrukciót)
- Állami támogatások: CSOK+, Babaváró támogatás.

Hívjon, akár hétvégén is!

Családi ház részletei

Ár: 59 900 000 Ft
Méret: 82 négyzetméter
Azonosító: 11570911
Irodai azonosító: 388250
Cím: Fótújfalu csendes utcájában
Telek: 286 négyzetméter
Ingatlan állapota: Felújítandó
Jelleg: családi ház
Építőanyag: Tégla
Fűtés jellege: Villany
Fűtés módja: Villany
Komfort fokozat: Összkomfort
Kor: 50 évesnél régebbi
Szintek száma: Földszintes
Egész szobák: 2
Fél szobák: 2

Egyéb jellemzők

  • Csatorna
  • Garázs
  • Pince
  • Terasz

Térkép


Így keressen budapesti ingatlant négy egyszerű lépésben. Csupán 2 perc, kötelezettségek nélkül!

Szűkítse a budapesti ingatlanok
listáját
Válassza ki a megfelelő
budapesti ingatlant
Írjon a hirdetőnek
Várjon a visszahívásra