Eladó családi ház Érd 70 000 000 Ft

Leírás

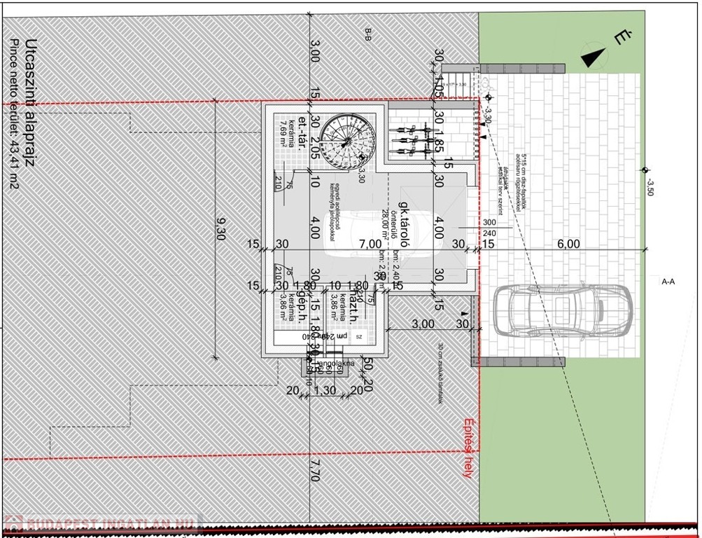
Eladásra kínálok Érden, Érdparkvárosban, az M7-es és M0-ás útvonalak által körülhatárolt területrészén, a településnek egy természetközeli, nagyon csendes részén, 816 nm alapterületű, téglalap alakú, kb. 25-26 méter széles, összközműves telken álló, 128 nm alapterületű lakásterülettel, 2 szintes, szinteltolásos, 4 szobás, 3 teraszos, 2 fürdőszobás, gardróbos, szerkezetkész állapotú családi házat, pinceszinten 43 nm-es garázzsal, nagy hátsó kerttel, a hátsó kertben bontandó kis házzal.

A ház építése 2020-ban kezdődött, a terep- és domborzati viszonyoknak megfelelően kialakított, pincézett, beton alapzattal és beton födémszerkezettel, B30-as tégla falazat alkalmazásával szerkezetkész állapotig jutott el és családi okok miatt nem készült el. Az épületet a tulajdonos saját magának építette a kornak megfelelő korszerű és használt technológiáinak felhasználásával.

Az ingatlanról a tervrajzok egy részét és néhány friss belső és külső fotót tettem közzé.

Tulajdonságok:
Építési övezet: Lke-1(h)
Beépítési mód: SZ (szabadonálló)
Telek terület: 816 m2
Földszinti bruttó beépítés: 163 m2
Beépítettség: 163/816=19,9%, 25% (megengedett)
Terepszint alatti beépítés: 59 m2
Szintterület mutató: (59+163)/816=0,27, 0,38 (megengedett)
Zöldterület: 573 m2/816 m2=70,2% 50% (előírt)
Épületmagasság: 3,87 m 6,00 m (megengedett)
Gk.tárolás: 1 db gk.tároló épületen belül
Kerékpár tárolás: 1 db elhelyezhető a telken
Előkert: 6,00 m (HÉSZ szerint)
Oldalkert(legkisebb) 3,00 m 3,00 m (előírt)
Hátsókert(legkisebb): 18,60 m 6,00 m (megengedett)
Lakásterület: 171,18 m2 204 m2 (megengedett)

Műszaki állapot: a házat alapos tervezés, és eddigi állapotának megfelelő kivitelezés jellemzi, mely a tulajdonos törekvése volt. A lapostető kavicsolt bitumenlemezfedés.

Környék: Érd fiatal családi házas övezetében Érdparkvárosban helyezkedik el. Iskola, óvoda, bevásárlási lehetőségek, orvos, patika, játszótér néhány perc alatt elérhető, mind a közelben megtalálható.

Ajánlom azoknak, akik a térségben, Érden vagy környékén modern, lapostetős, tágas és világos kertes házra vágynak nagy nyílászárókkal, tolóajtókkal, melyet saját ízlésük szerint tudnak kialakítani és lakható állapotúra befejezni.

Az építési engedélyek a használatba vételi engedélyezés megvalósításához és az építkezés befejezéséhez a következő 3 évben még adottak.

Adatkezelés
Ezúton tájékoztatjuk, hogy Ön mint érdeklődő, a hirdetésben megjelölt telefonszám felhívásával hozzájárul személyes adatai – így különösen neve és telefonszáma -, a hirdetést feladó FORTISElit Ingatlan Kft. általi - biztonságos és körültekintő - kezeléséhez, nyilvántartásához. E körben, keresse a FORTISELIT ingatlaniroda weboldalát adatkezelési tájékoztatót.

We hereby inform you that You as an interested party, by calling the phone number mentioned in the advertisement, contribute to be your personal data – especially your name and phone number – handled and recorded safe and circumspectively by FORTISElit Ingatlan Kft as advertiser. Hereby, you can learn our Privacy Policy.

Finanszírozás:
Adatbázisunkban további több ezer ingatlanból választhat, hívjon bizalommal, hogy megtaláljuk a legmegfelelőbbet!
Hitelre van szüksége? Teljes körű és díjmentes hitel-ügyintézéssel, biztosításkötéssel áll rendelkezésére szakértő kollégánk. Kérje személyre szabott ajánlatunkat!

Családi ház részletei

Ár: 70 000 000 Ft
Méret: 171 négyzetméter
Azonosító: 11574450
Irodai azonosító: 339842
Telek: 816 négyzetméter
Ingatlan állapota: Épülő
Jelleg: családi ház
Építőanyag: Tégla
Komfort fokozat: Összkomfort
Egész szobák: 4

Egyéb jellemzők

  • Garázs
  • Terasz

Így keressen budapesti ingatlant négy egyszerű lépésben. Csupán 2 perc, kötelezettségek nélkül!

Szűkítse a budapesti ingatlanok
listáját
Válassza ki a megfelelő
budapesti ingatlant
Írjon a hirdetőnek
Várjon a visszahívásra