Eladó családi ház Érd 280 000 000 Ft

Leírás

LUXUS ÖNÁLLÓ CSALÁDI HÁZ, kiemelkedő minőségben!


DÍJNYERTES építész tervezése, dinamikus fehér formák, határozottság és nagyvonalú elegancia jellemzi a villát, a finom anyagok és szabad tágas terek szintézise valódi otthont varázsol. Az elegáns és arányos épület ízléses részlet megoldásokkal teszi komfortossá a mindennapokat.


A beépített anyagok minőségének és a korszerű technológiának köszönhetően az épület energiatakarékos ,gazdaságosan üzemeltethető.

Az épület a legjobb minőségű építőanyagok felhasználásával épül, hogy az ingatlanvásárlás hosszú távon is értékálló befektetés legyen az itt élő emberek számára.

ÉRDEN , több telek közül is választhat, hova szeretné felépíttetni, igazodva minden szempontból családja igényeihez.



DE NEM CSAK EZEK MIATT FOGOD IGAZÁN SZERETNI EZT AZ OTTHONT, a tervező maga felügyeli a kivitelezést (15 év tervezői és kivitelezési tapasztalattal), hogy minden részlet tökéletes legyen. Jól tudjuk, hogy ma nem ez a megszokott a piacon.

A terv alakítható, megtervezzük és megépítjük álmai otthonát.
Az ingatlan néhány fő jellemzője:
- a mai korszerű technológiák közül akár hőszivattyús rendszer, mennyezeti hűtés-fűtés választható
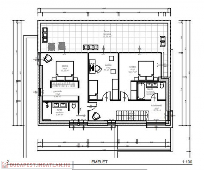
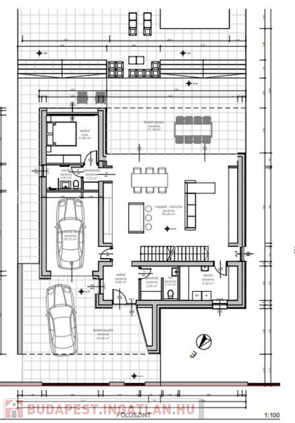
- nappali + 4 háló szoba
- három fürdő szoba
- master bedroom
- a burkolatok és szaniterek, valamint a belső ajtók kiválaszthatók, az ingatlan kulcsrakészen kerül átadásra.

Lehetőség van a legkorszerűbb technológiával működő OKOS OTTHON rendszer kialakítására. Így egy készülékről vezérelhetővé, időzíthetővé és programozhatóvá válik a ház akár összes redőnye, az elektronikai gépek ki,- és bekapcsolása.

Cégnéven épül, az előírt feltételek teljesülése esetén CSOK igényelhető.

AMENNYIBEN MINDEN IGÉNYT KIELÉGÍTŐ, MINŐSÉGI, GAZDASÁGOSAN ÜZEMELTETHETŐ OTTHONRA VÁGYSZ, NE KERESS TOVÁBB!

Várom hívásodat, hogy mielőbb megmutathassam ezt az ingatlant.

Családi ház részletei

Ár: 280 000 000 Ft
Méret: 295 négyzetméter
Azonosító: 11456738
Cím: Érdliget
Telek: 800 négyzetméter
Ingatlan állapota: Átlagos
Jelleg: családi ház
Építőanyag: Kérdezzen rá a hirdetőtől »
Egész szobák: 5
Fél szobák: 2

Egyéb jellemzők

  • Csatorna
  • Garázs
  • Kábel TV
  • Melléképület
  • Parketta
  • Pince
  • Terasz

Így keressen budapesti ingatlant négy egyszerű lépésben. Csupán 2 perc, kötelezettségek nélkül!

Szűkítse a budapesti ingatlanok
listáját
Válassza ki a megfelelő
budapesti ingatlant
Írjon a hirdetőnek
Várjon a visszahívásra