Eladó családi ház Érd 260 000 000 Ft

Leírás

BEFEKTETŐK, ÖSSZEKÖLTÖZŐK FIGYELEM!

ÉRD-PARKVÁROSBAN, 1208 NM-S TELKEN, 2 LAKÁSOS, 420 NM-S, 8 SZOBÁS, 3 FÜRDŐSZOBÁS CSALÁDI HÁZ ELADÓ!

A ház a 80'-as években az akkori kornak megfelelően minőségi anyagokból téglából épült.

Fűtését gázkazán, vegyes tüzelésű kazán, 3 db hűtő-fűtő klíma és egy csoda szép kandalló biztosítja.

Ipari áram van.

A nyílászárók alumíniumból készültek.

Parkolás elektromos kapun keresztül megközelíthető 2 állásos garázsban, fedett gépkocsi beállóban és több autó számára telken belül is lehetséges.

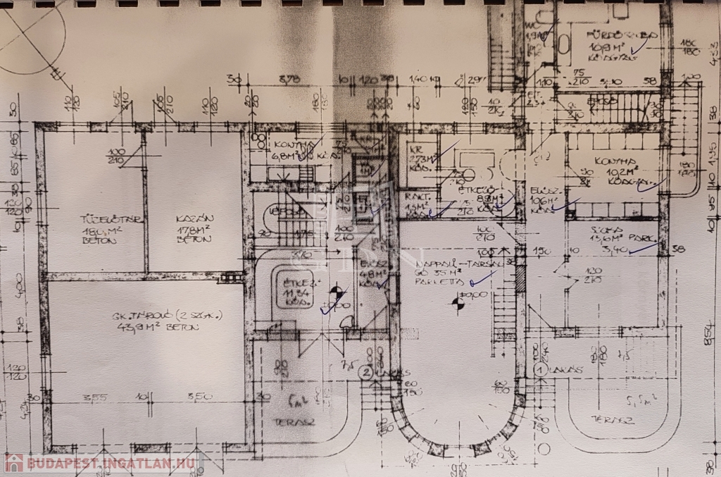
Helyiségek:
Tetőtér:
- szoba 17,80 nm,
- szoba 14,40 nm,
- szoba 43,90 nm,
- szoba 15,70 nm,
- szoba 21,80 nm,
- gardrób 5,10 nm,
- nappali 26,70 nm,
- galéria 18,30 nm,
- előtér 4,90 nm,
- fürdőszoba + WC 5,40 nm.

Földszint:
- konyha 6,80 nm,
- konyha 10,20 nm,
- előszoba 10,60 nm,
- előszoba 4,80 nm,
- előtér 2,34 nm,
- előtér 1,00 nm,
- kamra 1,00 nm,
- kamra 2,73 nm,
- raktár 1,30 nm,
- WC 1,00 nm,
- WC 1,90 nm,
- lépcső 7,40 nm,
- étkező 11,34 nm,-
- étkező 8,94 nm,
- nappali 35,00 nm,
- fürdőszoba 10,90 nm,
- szoba 13,60 nm.

Összesen: 520 nm
- tetőtér 174,00 nm + (20,00 nm galéria + 18,00 nm padlásszoba),
- földszint 130,00 nm,
- terasz 49,70 nm (12,50 nm + 13,00 nm + 24,20 nm),
- pince 18,00 nm,
- garázs 43,90 nm,
- tároló 18,00 nm,
- kazánház 17,80 nm,
- melléképület 30,00 nm.

A házhoz három terasz tartozik, melyek gyönyörű kilátást nyújtanak a parkosított kertre, ahol számos fenyőfa és más növény található, amelyek még hangulatosabbá teszik a környezetet.

Az ingatlanhoz kapcsolódik külön helyrajzi számon egy főútvonal melletti, önálló, VT1 övezetben lévő 50%-ig beépíthető 720 nm telek ami hozzá megvásárolható + 60 millió Ft.

Az ingatlan 2 utcáról is megközelíthető.

Kiváló közlekedés ,Budapest busszal 20 perc, autóval 10 perc alatt megközelíthető az M7-s autópályáról.

Az M0, M7 autópálya 2-3 perc.

INTERSPAR, Penny, CBA, gyógyszertár, iskola, óvoda, orvosi rendelők, pékség a közelben található.

Ha bármi további kérdése van vagy szeretné megtekinteni, kérem hívjon!

Az adatok tájékoztató jellegűek!

AMENNYIBEN NEM RENDELKEZIK A TELJES VÉTELÁRRAL, segítünk Önnek megtalálni a legjobb megoldást!
BANKFÜGGETLEN hitelcentrumunk minden elérhető bank és hitelintézet ajánlatát versenyezteti az Ön kedvéért, ráadásul díjmentesen. Önnek nincs más dolga, mint elbeszélgetni munkatársunkkal, aki a hallott információk alapján versenyre hívja a bankokat, hogy Ön hosszú távon is a legjobb konstrukciót kaphassa. A legjobb ajánlatokból végül Ön választhatja ki a nyertest. Munkatársaink sokéves szakmai tapasztalattal várják Önt, előre egyeztetve akár a normál munkaidő után is.

Családi ház részletei

Ár: 260 000 000 Ft
Méret: 420 négyzetméter
Azonosító: 11343666
Irodai azonosító: 364110
Cím: Parkváros
Telek: 1208 négyzetméter
Ingatlan állapota: Átlagos
Jelleg: családi ház
Építőanyag: Tégla
Fűtés jellege: Cirkó
Fűtés módja: Gáz
Komfort fokozat: Összkomfort
Kor: 21-50 éves
Szintek száma: 1 szint
Egész szobák: 8

Egyéb jellemzők

  • Csatorna
  • Garázs
  • Pince
  • Terasz

Térkép


Így keressen budapesti ingatlant négy egyszerű lépésben. Csupán 2 perc, kötelezettségek nélkül!

Szűkítse a budapesti ingatlanok
listáját
Válassza ki a megfelelő
budapesti ingatlant
Írjon a hirdetőnek
Várjon a visszahívásra