Eladó családi ház Érd 149 000 000 Ft

Leírás

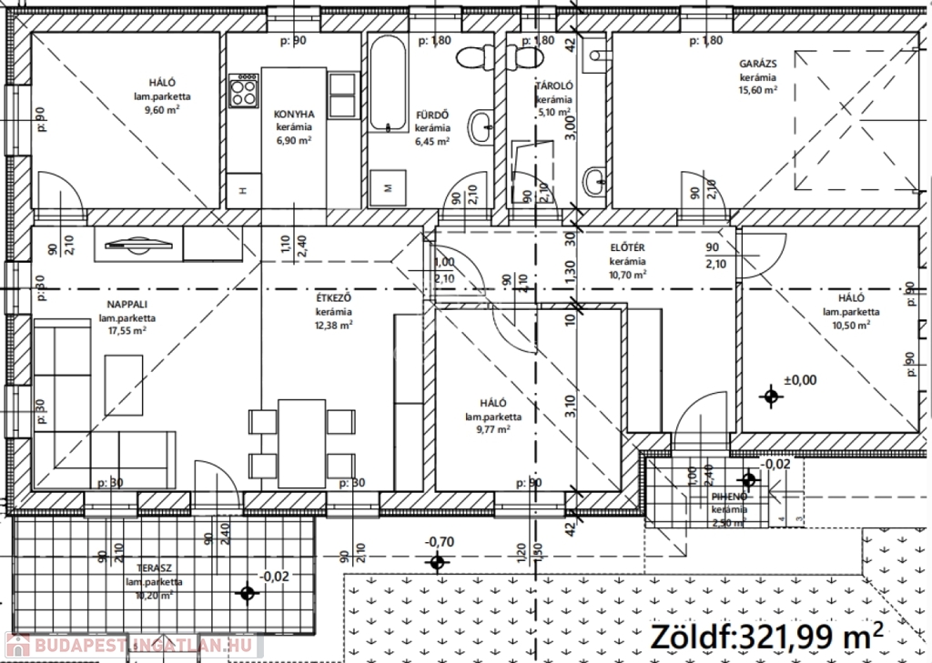
✨ ÚJÉPÍTÉSŰ CSALÁDI HÁZ ELADÓ ÉRD KÖZKEDVELT, VINCELLÉR RÉSZÉN! ✨

Fedezze fel ezt a magas műszaki tartalommal készült, letisztult és elegáns otthont, kövesse figyelemmel az építkezés folyamatát, válassza ki a burkolatokat saját igényeihez!

Referencia munka megtekinthető!

Érd egyik legjobb és legdinamikabban fejlődő városrészén, a Vincellérben eladó egy modern kialakítású, újépítésű családi ház, amely tökéletes választás azoknak, akik nívós környezetben, mégis mindenhez közel szeretnének élni.

Főbb jellemzők:

- 3 világos, kényelmes szoba,

- tágas nappali és étkező,

- elegáns, modern fürdőszoba,

- garázs közvetlen bejárattal,

- terasz a kellemes, nyugodt kikapcsolódáshoz.

Korszerű hőszivattyús fűtés és melegvíz-rendszer – energiahatékony, költségkímélő megoldás!

Friss, letisztult, modern családi otthon minden igényt kielégítő kialakítással.

Lokáció előnyei:

Csendes, családbarát környék ,kiváló közlekedés, a főváros és környező települések gyors elérése.

Bevásárlási lehetőségek, iskola, óvoda, buszmegálló és minden fontos szolgáltatás perceken belül

Ez az ingatlan ideális választás mindazoknak, akik egy igényes, modern és energiatakarékos otthonra vágynak Érden!

Jöjjön el - képzelje el új otthonát! Tegyen ajánlatot!

INGYENES hitel tanácsadás, CSOK Plusz ügyintézés!
BANKFÜGGETLEN hitelcentrumunk az összes elérhető bank és hitelintézet ajánlatát versenyezteti az Ön kedvéért, ráadásul DÍJMENTESEN.

- Egyedi, bankfiókban nem elérhető kamat- és díjkedvezmények
- Hitelképesség vizsgálat
- Idő, energia és pénz megtakarítás
- Teljes hivatali ügyintézés

Amennyiben hirdetésem felkeltette az érdeklődését vagy egyéb információra van szüksége, hívjon bizalommal!

Családi ház részletei

Ár: 149 000 000 Ft
Méret: 118 négyzetméter
Azonosító: 11581352
Irodai azonosító: 389800
Cím: START HITEL, CSOK+ IGÉNYELHETŐ!
Telek: 532 négyzetméter
Ingatlan állapota: Kitűnő
Jelleg: családi ház
Építőanyag: Tégla
Fűtés jellege: Geotermikus
Fűtés módja: Hőszivattyú
Komfort fokozat: Összkomfort
Kor: Új építésű
Szintek száma: Földszintes
Egész szobák: 4

Egyéb jellemzők

  • Csatorna
  • Garázs
  • Pince
  • Terasz

Térkép


Így keressen budapesti ingatlant négy egyszerű lépésben. Csupán 2 perc, kötelezettségek nélkül!

Szűkítse a budapesti ingatlanok
listáját
Válassza ki a megfelelő
budapesti ingatlant
Írjon a hirdetőnek
Várjon a visszahívásra