Eladó családi ház Érd 139 900 000 Ft

Leírás

3%-os HITELLEL ÚJ HÁZ? IGEN!

Várható átadás: 2025. IV. negyedév

Érd Parkváros kedvelt, csendes, kertvárosi részén, az autópálya zajától kellő távolságban, újépítésű, önálló családi ház eladó!

✨ Főbb jellemzők:

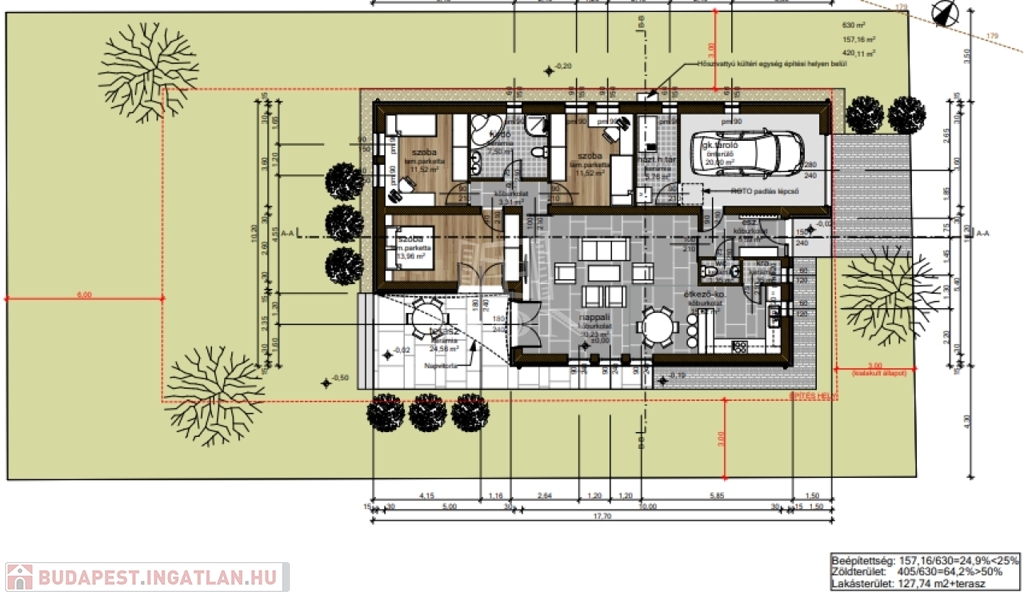
Saját, 630 m²-es telek

Igényes, minőségi kivitelezés

Elosztás:
- nappali + 3 szoba
- étkező-konyha, előszoba, fürdőszoba, külön WC, háztartási helyiség, kamra

Saját garázs

Modern és energiatakarékos megoldások:

Hőszivattyús fűtés és melegvíz-ellátás

Elektromos tűzhely a konyhában

Hőhídmentes, műanyag nyílászárók hőszigetelt üvegezéssel

Minőségi burkolatok:

vizes helyiségekben csúszásmentes lapburkolat,

szobákban laminált parketta

falakon 2 m magasságig csempeburkolat

Térkövezett járda és parkoló (6 cm sajtolt beton térkő)

Költözzön be karácsonyra!

Csendes környék, kényelmes elrendezés, modern technológia – minden adott egy új, energiatakarékos otthonhoz.

Érdeklődés esetén bővebb információt szívesen nyújtunk!
Jöjjön el, nézze meg, és találja meg álmai otthonát!

INGYENES hitel tanácsadás, CSOK Plusz ügyintézés!
BANKFÜGGETLEN hitelcentrumunk az összes elérhető bank és hitelintézet ajánlatát versenyezteti az Ön kedvéért, ráadásul DÍJMENTESEN.

- Egyedi, bankfiókban nem elérhető kamat- és díjkedvezmények
- Hitelképesség vizsgálat
- Idő, energia és pénz megtakarítás
- Teljes hivatali ügyintézés

Amennyiben hirdetésem felkeltette az érdeklődését vagy egyéb információra van szüksége, hívjon bizalommal!

A hirdetésben szereplő adatok tájékoztató jellegűek, nem minősülnek ajánlat tételnek.

Családi ház részletei

Ár: 139 900 000 Ft
Méret: 128 négyzetméter
Azonosító: 11571952
Irodai azonosító: 388374
Cím: 3 %-os hitel felvehető
Telek: 630 négyzetméter
Ingatlan állapota: Kitűnő
Jelleg: családi ház
Építőanyag: Tégla
Fűtés jellege: Geotermikus
Fűtés módja: Hőszivattyú
Komfort fokozat: Dupla komfort
Kor: Új építésű
Szintek száma: Földszintes
Egész szobák: 4

Egyéb jellemzők

  • Csatorna
  • Garázs
  • Pince
  • Terasz

Térkép


Így keressen budapesti ingatlant négy egyszerű lépésben. Csupán 2 perc, kötelezettségek nélkül!

Szűkítse a budapesti ingatlanok
listáját
Válassza ki a megfelelő
budapesti ingatlant
Írjon a hirdetőnek
Várjon a visszahívásra