Eladó családi ház Érd 129 000 000 Ft

Leírás

ÖNÁLLÓ CSALÁDI HÁZ, GYÖNYÖRŰ KÖRNYEZETTEL, KIVÁLÓ INFRASTRUKTÚRÁVAL!

Ajánlom figyelmébe, ezt az Érden megépülő magas minőségű családi házat!

A házat ajánljuk családosoknak, hiszen itt minden az Állam adta kedvezményt, lehetőséget kihasználhatnak, legyen az Babaváró, CSOK-PLUSSZ támogatás és hitel is!

Miért ne venné igénybe az Állam adta támogatásokat, lehetőségeket? Döntsön okosan, használja ki amíg lehet!

Fontos, hogy az ingatlanvásárlás hosszú távon is értékálló befektetés legyen!

A kivitelező törekszik arra,hogy magas minőségű,egyedi kivitelezésű ingatlant alkosson ezen a nem mindennapi környéken!!

Az Ön dolga „csupán” a színek, burkolatok kiválasztása, hogy a munkálatok végeztével valóban otthon érezhesse magát!

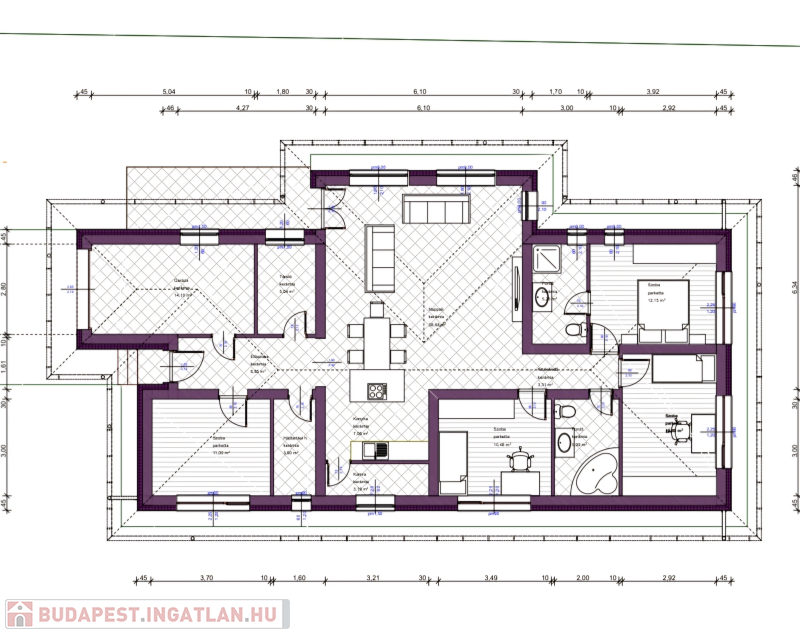
Az ingatlan 700 nm-es telken kerül megépítésre bruttó 160 nettó 120 nm-es.

Rövid műszaki leírás:
-30-as tégla fal
-10-es válaszfalak
-3 rétegű nyílászárók 7 légkamrás, akár színezett
-padlófűtés
-szúnyogháló,elektromos redőnyök
-riasztórendszer kiépítése
-hőszivattyús fűtés rendszer
-15cm szigetelés

Ajánlom:
Ajánlom mindazon 1-3 gyerekes házaspároknak, pároknak, nyugdíjasoknak akik egy igazán kiváló, jól megközelíthető, jó adottságokkal rendelkező, csendes, nyugodt helyen szeretnék élni a mindennapjaikat. Ha szeretne kiszabadulni a városi körforgásból, de mégsem akar végleg elszakadni tőle, akkor a legjobb választás ez a környék, ahol az ébredés után saját teraszán kortyolhatja a reggeli kávéját, szippanthatja magába a friss levegőt és hallgathatja a madarak csicsergését.

HÍVJON FEL, KÉRJEN EGY IDŐPONTOT, JÖJJÖN, NÉZZE MEG!

Irodánk a kezdetektől az átadásig végigkíséri az építkezést!

Szép napot és sikeres vásárlást kívánok Önnek!

Köszönöm hogy időt szánt hirdetésemre!

Családi ház részletei

Ár: 129 000 000 Ft
Méret: 160 négyzetméter
Azonosító: 11456820
Cím: Parkváros
Telek: 700 négyzetméter
Ingatlan állapota: Átlagos
Jelleg: családi ház
Építőanyag: Kérdezzen rá a hirdetőtől »
Egész szobák: 5

Egyéb jellemzők

  • Csatorna
  • Garázs
  • Kábel TV
  • Melléképület
  • Parketta
  • Pince
  • Terasz

Így keressen budapesti ingatlant négy egyszerű lépésben. Csupán 2 perc, kötelezettségek nélkül!

Szűkítse a budapesti ingatlanok
listáját
Válassza ki a megfelelő
budapesti ingatlant
Írjon a hirdetőnek
Várjon a visszahívásra