Eladó családi ház Érd 120 000 000 Ft

Leírás

Leírás
NAGYON KEDVEZŐ ÁRON, ÚJÉPÍTÉSŰ CSALÁDI HÁZ ELADÓ ÉRDEN A FUNDOKLIA VÖLGYBEN!!

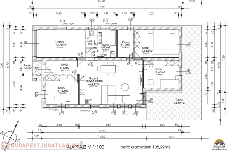
Érd csendes részén mellékutcában, eladó egy 120 nm-es, garázsos , 4 szobás új építésű családi ház nagy terasszal, 1100 nm-es telekkel.

Helyiségek:
szobák: 14,5 nm,14,5, 11,5 nm.
nappali + konyha: 32 nm.
garázs:15,6 nm.
wc: 2,5 nm.
f.szoba:6 nm.
tároló:5 nm.
terasz: 32 nm.


- műszaki tartalom:

főfal: 30 cm tégla, 15 cm dryvit szigetelés, műanyag nyílászárók, fűtés: padlófűtés + hőszivattyú,
fafödém, betoncserép, közművek: víz, villany, 8 m3-es emésztő.

- infrastruktúra: a környéken iskola, óvoda, Interspar, benzinkút,orvosi rendelő, gyógyszertár, stb.

-közlekedés:
az M7 autóval 4 perc.

Ingyenes hitel tanácsadással, kedvezményes jogi képviselettel lehetünk segítségére.
Energetikai szakvéleményre van szüksége? Jó helyre fordult.
Megtetszett az ingatlan, de sajátját még nem adta el? Levesszük a gond nagy részét a válláról, segítséget nyújtunk az eladásban is. Bízza ránk az értékesítését!
Kérésre ingyenes értékbecslést is végzünk az ingatlanán,hívjon minket bizalommal.

Családi ház részletei

Ár: 120 000 000 Ft
Méret: 140 négyzetméter
Azonosító: 11603954
Telek: 1000 négyzetméter
Ingatlan állapota: Kitűnő
Jelleg: családi ház
Építőanyag: Kérdezzen rá a hirdetőtől »
Szintek száma: 1 szint
Egész szobák: 4

Egyéb jellemzők

  • Garázs
  • Kábel TV
  • Melléképület
  • Parketta
  • Pince
  • Terasz

Így keressen budapesti ingatlant négy egyszerű lépésben. Csupán 2 perc, kötelezettségek nélkül!

Szűkítse a budapesti ingatlanok
listáját
Válassza ki a megfelelő
budapesti ingatlant
Írjon a hirdetőnek
Várjon a visszahívásra