Eladó családi ház Dunakeszi 210 000 000 Ft

Leírás

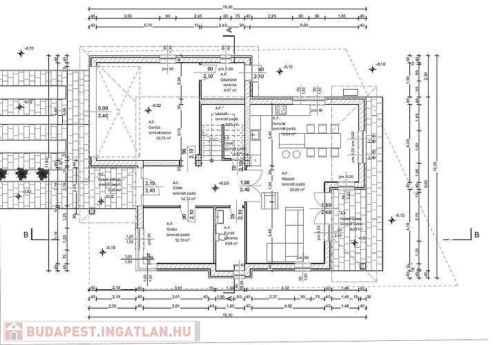
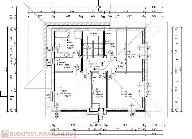
Dunakeszi dunai oldalán, a kedvelt Révdűlőben kínálok megvételre egy 630 m²-es telken épülő, bruttó 203 m²-es, kétszintes, modern családi házat. Az ingatlan nappalival, négy tágas hálószobával, két gardróbbal, három fürdőszobával és dupla garázzsal rendelkezik, így ideális nagycsaládoknak vagy azoknak, akik kényelmes, letisztult életteret keresnek.



- Az épület 30-as téglából és Dryvit szigeteléssel készül, korszerű hőszivattyús fűtéssel, teljes házat lefedő padlófűtéssel és minden helyiségben klímával. A háromrétegű nyílászárók rejtett redőnytokkal, redőnyökkel és szúnyoghálóval érkeznek. A burkolatok és szaniterek még választhatók, így az otthon stílusa szabadon alakítható.

- A környék csendes, mégis közel van Dunakeszi központjához, iskolákhoz és szolgáltatásokhoz. Az átadás 2026 tavaszán várható, a ház pedig már most leköthető 10% foglalóval. Az irányár kulcsrakészen 210 millió Ft, céges kivitelezés mellett CSOK is igénybe vehető, díjmentes hitelügyintézéssel.

- Ha egy modern, értékálló és kiváló elhelyezkedésű otthont keres, várom hívását a részletekért és a megtekintésért.

Családi ház részletei

Ár: 210 000 000 Ft
Méret: 200 négyzetméter
Azonosító: 11585701
Irodai azonosító: 23954
Telek: 636 négyzetméter
Ingatlan állapota: Épülő
Jelleg: családi ház
Építőanyag: Kérdezzen rá a hirdetőtől »
Fűtés jellege: Egyéb
Szintek száma: 1 szint
Egész szobák: 5

Így keressen budapesti ingatlant négy egyszerű lépésben. Csupán 2 perc, kötelezettségek nélkül!

Szűkítse a budapesti ingatlanok
listáját
Válassza ki a megfelelő
budapesti ingatlant
Írjon a hirdetőnek
Várjon a visszahívásra