Eladó családi ház Dunaharaszti 91 160 000 Ft

Leírás


Dunaharaszti kedvelt lakóparkjában, a Bezerédi lakóparkban, kettő 8-lakásos társasház új-építésű lakásainak értékesítése elkezdődött! Az ingatlanok már 2M. Ft-tal leköthetők, AKÁR 20%-os önerővel!



A földszinten 3 db saját kerttel rendelkező nappali + 2 hálószobás, illetve 1db nappali + 1 hálószobás lakás található. Mindegyik lakáshoz saját tároló és 2 db parkoló tartozik! A tároló és a parkolók a vételár részét képezik!

Az emeleten 3 db nappali + 1 hálószobás lakás és 1db nappali + 2 hálószobás lakás található! Mind a négy emeleti lakáshoz tartozik tároló és 2db külső autóbeálló. Ezek szintén a vételár részét képezik.

Az ingatlanok fan-coil klímával és riasztóval felszereltek, fűtésük hőszivattyús rendszerről történik, padlófűtés hő leadással.



Az ingatlanok jogi formája társasház, a lakások alábetétesítve lesznek!



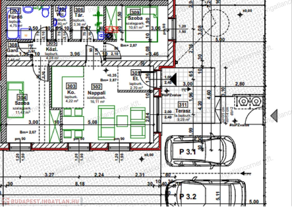
Földszinti lakások:



1, lakás nettó 49,15 m2 + 18,35 m2 terasz, nappali + 1 háló, 150 m2 telek, fan-coil klíma (a hálószobákban kiállás előkészítés), riasztó, tároló, 2 db parkoló.

1-es tömb: ELKELT!

2-es tömb, ár: 73 740 000 Ft. SZABAD!



2, lakás nettó 57,04 m2 + 13,83 m2 terasz, nappali + 2 szoba, 173,5 m2 telek, fan-coil klíma (a hálószobákban kiállás előkészítés), riasztó, kaputelefon, tároló, 2 db parkoló. utca

1-es tömb: ELKELT!

2-es tömb, ár: 89 625 000 Ft. SZABAD!



3, lakás nettó 60,71 m2 + 9,29 m2 terasz, nappali + 2 háló, 119 m2 telek, fan-coil klíma (a hálószobákban kiállás előkészítés), riasztó, kaputelefon, 2db parkoló

1-es tömb, ár: 91 155 000 Ft. SZABAD!

2-es tömb, ár: 91 155 000 Ft. SZABAD!



4, lakás nettó 58,45 m2 + 9,74 m2 terasz, nappali + 2 háló, 108 m2 telek, fan-coil klíma (a hálószobákban kiállás előkészítés), riasztó, kaputelefon, 2db parkoló

1-es tömb, ár: ELKELT!

2-es tömb, ár: 89 655 000 Ft. SZABAD!



Emeleti lakások:



5, lakás nettó 41,08 m2 + 12,37 m2 fedett terasz, nappali + 1 szoba, fan-coil klíma (a hálószobákban kiállás előkészítés), riasztó, kaputelefon, tároló, 2 db utcai parkoló.

1-es tömb, ár: ELKELT!

2-es tömb, ár: 70 910 000 Ft. SZABAD!



6, lakás nettó 50,56 m2 + 18,6 m2 fedett terasz, nappali + 1 szoba, fan-coil klíma (a hálószobákban kiállás előkészítés), riasztó, kaputelefon, tároló, 2 db utcai parkoló.

1-es tömb, ár: 89 790 000 Ft. SZABAD!

2-es tömb, ár: 89 790 000 Ft. SZABAD!



7, lakás nettó 61,62 m2, + 3,14 m2 erkély, nappali + 1 háló, fan-coil klíma (a hálószobákban kiállás előkészítés), riasztó, kaputelefon, 2db parkoló

1-es tömb, ár: 94 785 000 Ft. SZABAD!

2-es tömb, ár: 94 785 000 Ft. SZABAD!



8, lakás nettó 57,05 m2, + 5,4 m2 erkély, nappali + 2 háló, fan-coil klíma (a hálószobákban kiállás előkészítés), riasztó, kaputelefon, 2db parkoló

1-es tömb, ár: 85 545 000 Ft. SZABAD!

2-es tömb, ár: 85 545 000 Ft. SZABAD!



A hirdetés az 3-as lakás hirdetése!





Műszaki jellemzői:



Porotherm Klíma 30 kerámia falazat TM + 10 cm Grafit 80 homlokzati hőszigetelő

Válaszfalak, Porotherm 30 AKU Z tégla falazat 30 cm

Nyílászáró műanyag bukó-nyíló, hőszigetelt, 3 légkamrás thermo üvegezéssel, hő visszaverő fóliával.

Fűtés és meleg víz hőszivattyús rendszerről működő padlófűtés, fan-coil klíma

Riasztó

Laminált parketta a hálószobákban, hidegburkolat a többi helyiségben (szabadon választható 3.000,-/m2-ig tartalmazza az ár)

2 db udvari gépkocsi beálló, viacolor burkolat

Tereprendezés, kerítés, kapu



Bővebb műszaki tartalmat igény esetén e-mailben tudok küldeni!



Várható átadás: 1-es tömb 2026. április

2-es tömb 2027 első negyedév



A kivitelező megbízható, számos referenciával rendelkezik

A kivitelezést modern, időtálló stílus és prémium anyaghasználat jellemzi. Megbízható, igényes kivitelezőtől kiváló ár-érték arányú ingatlant vásárolhat. A környék szép és rendezett, új, újszerű ingatlanok környezetében található!



A hitelügyintézésben igény szerint segítséget nyújtunk, cégünk kiváló hitelügyintézői kapcsolatokkal rendelkezik,



Fizetési ütemezés: Az ingatlanok 2 M. Ft-tal leköthetők, további fizetési ütemezés a kivitelezővel történt egyeztetés alapján.



Kiváló elhelyezkedése miatt a közeli főutak (M0, 51-es út) gyorsan elérhetőek.

A közelben minden megtalálható, amire szükség lehet.



Dunaharaszti az elmúlt 10 évben rendkívül nagy fejlődésen ment keresztül, Budapestre HÉV-vel, busszal, vonattal (jelenleg a Budapest-Belgrád vasútvonal építése miatt a vasúti forgalom szünetel) és autóval is gyorsan be lehet jutni Budapestre.

Több bölcsőde, óvoda, általános iskola és egy gimnázium is van Dunaharasztin. A bevásárlási lehetőség nagy, minden megtalálható, amire szükség lehet!



Várom hívását, NE maradjon le róla!

Családi ház részletei

Ár: 91 160 000 Ft
Méret: 65 négyzetméter
Azonosító: 11512754
Irodai azonosító: 107003975
Telek: 119 négyzetméter
Ingatlan állapota: Kitűnő
Jelleg: sorház
Építőanyag: Tégla
Komfort fokozat: Összkomfort
Kor: Új építésű
Egész szobák: 3

Így keressen budapesti ingatlant négy egyszerű lépésben. Csupán 2 perc, kötelezettségek nélkül!

Szűkítse a budapesti ingatlanok
listáját
Válassza ki a megfelelő
budapesti ingatlant
Írjon a hirdetőnek
Várjon a visszahívásra