Eladó családi ház Dunaharaszti 259 000 000 Ft

Leírás

Dunaharasztin a Tópark Lakóparkban eladásra kínálunk egy 191 nm-es új építésű, panorámás VÍZPARTI ikerház felet magas minőségben kivitelezve.

Nettó 158 nm alapterület
+ 36 nm garázs
+ 22 nm terasz,
507 nm telekterület,
259.000.000 Ft

Prémium ikerház – modern élettér, kiváló elosztás

1014 m²-es telken két, egymás mellett elhelyezkedő lakás kerül átadásra, modern kialakítással és fiatalos, jól átlátható terekkel.

Lakásonkénti főbb adatok:
• 191 m² lakótér
• terasz + tetőterasz
• 2 beállásos garázs
• körbejárható teraszkapcsolat

Földszint
A földszinten tágas, világos amerikai konyhás étkező–nappali került kialakításra, közvetlen teraszkapcsolattal.
Ezen felül helyet kapott:
• vendég WC
• kamra
• gépészeti helyiség

Emelet
Az emeleti szinten:
• 3 különálló szoba
• tágas közlekedő
• háztartási helyiség

A nagy hálószoba saját fürdőszobával, WC-vel és gardróbbal rendelkezik.
A további két szoba szintén saját fürdőszoba–WC kapcsolattal ellátott.

A lakásokat körben terasz öleli, minden szobából közvetlen kijárással.

Parkolás
• lakásonként 2 autó számára garázs
• 1 autó parkolása a ház előtti területen biztosított

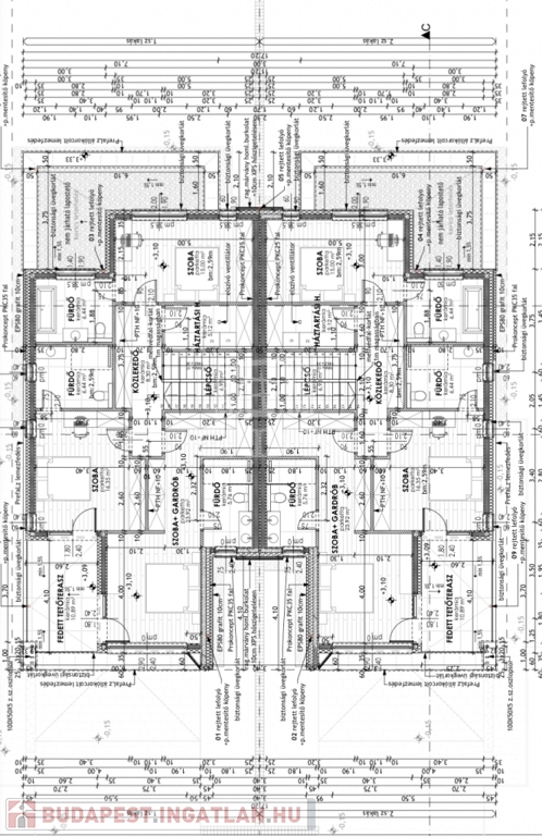
BEOSZTÁS:
Földszint:
- gépészet: 6 nm,
- konyha: 11 nm,
- étkező: 10 nm,
- nappali: 23 nm,
- kamra: 5 nm,
- előtér: 9 nm,
- wc: 4 nm,
- gépészet: 4 nm,
+ fedett terasz: 13 nm,
+ gépkocsi beálló: 36 nm

Emelet:
- szoba + gardrób: 24 nm,
- fürdő: 6 nm,
- szoba: 16 nm,
- fürdő: 6 nm,
- szoba: 15 nm,
- fürdő: 6 nm,
- háztartási helyiség: 5 nm,
- közlekedő: 5 nm,
- lépcső: 8 nm,
+ fedett tetőterasz: 11 nm.

MŰSZAKI TARTALOM:

Félig gépesített konyhabútor, konyhasziget
Bútorozott hálószoba, gardróbszekrények

Födémek, aljzatok: Monolit vasbeton födémek C30 betonminőségben melyekre a hangszigetelésen úsztatott aljzatbeton készül a lépéshang gátlás biztosítására és a burkolat fogadására. Födémbe elhelyezésre kerül a mennyezet, hűtés-fűtés és a légtechnika rendszer az aljzatban padlófűtés rendszer kerül.

Külső nyílászárók: Az ablakok és az erkély ajtók HOFSTADTER márkájú korszerű hőhídmentes műanyag alumínium 5 kamrás profilrendszerből készülnek, 3 rétegű hőszigetelő üvegezéssel a terveken jelölt helyen a nagyméretű erkélyajtók, tolóajtós kivitelűek homlokzati nyílászárók elektromos mozgatásúak.

Az épület homlokzatának egyediségét a letisztult színvilág biztosítja. A homlokzat képzése dryvit rendszerű nemes vakolattal fedve, illetve ragasztott kőlap burkolattal ellátva. Hőszigetelés 15 cm Austrotherm grafit, illetve a vasbeton szerkezeteken 5 cm kiegészítő hőszigetelés kerül.

A garázs távirányítós kapuval működtethető.

Hűtés-fűtés: Az épület hűtését és fűtését Nibe geotermikus hőszivattyú rendszer biztosítja. Beépített illatosító rendszerrel ellátott, szellőztető rendszer biztosítja mindenkor kellemes friss levegő ellátást. A fűtés a fő helyiségekben egyedileg szabályozható.

Légtechnika: A födém beépített Wolf légtechnikának köszönhetően ablaknyitás nélkül, portalan, csíramentes levegő jut az épületbe a fürdőszobákban és a WC helyiségében.

A különböző helyiségekben a burkolatok kifejezetten magas minőségű első osztályúak.

Konyha és beépített bútorok:
KÉRÉSRE egyedileg gyártott, minőségi asztalos üzemi kivitelezésben ujjlenyomatmentes felületképzéssel.

Kert:
Az épületet körülvevő telek területen teljes tereprendezés lesz.
Az ingatlan telek területe kerítéssel elválasztott.

Ütemezés:
20% foglaló, a fennmaradó összeg megbeszélés alapján.

Banki hitel nem akadály.


A lakópark 38 hektáron épül egy tó köré,
- étteremmel,
- wakeboard pályával,
- homokos stranddal,
- napozó szigettel,
- kivilágított futópályával,
- saját portaszolgálattal,
- horgászási lehetőséggel,
- privát sportközponttal
(kondipark, tenisz-, lábtenisz-, grundfoci-pálya),
- játszótérrel
- és kutyafuttatóval.

A lakóparktól 3 perces távolságban TESCO, ALDI, LIDL, KFC található.

Dunaharasztiból az M0-ás autóút pár perc alatt megközelíthető,
a főváros kb.10 km-es távolságban van.

AZ ADATOK TÁJÉKOZTATÓ JELLEGŰEK!

Irodánk 30 éves szakmai tapasztalattal áll ügyfelei rendelkezésére!

Várom szíves megkeresését.

Családi ház részletei

Ár: 259 000 000 Ft
Méret: 191 négyzetméter
Azonosító: 11594770
Irodai azonosító: 392023
Cím: Tópark utca
Telek: 507 négyzetméter
Ingatlan állapota: Kitűnő
Jelleg: ikerház
Építőanyag: Tégla
Fűtés jellege: Geotermikus
Fűtés módja: Hőszivattyú
Komfort fokozat: Dupla komfort
Kor: Új építésű
Szintek száma: 1 szint
Egész szobák: 4

Egyéb jellemzők

  • Csatorna
  • Garázs
  • Pince
  • Terasz

Térkép


Így keressen budapesti ingatlant négy egyszerű lépésben. Csupán 2 perc, kötelezettségek nélkül!

Szűkítse a budapesti ingatlanok
listáját
Válassza ki a megfelelő
budapesti ingatlant
Írjon a hirdetőnek
Várjon a visszahívásra