Eladó családi ház Dunaharaszti 239 000 000 Ft

Leírás

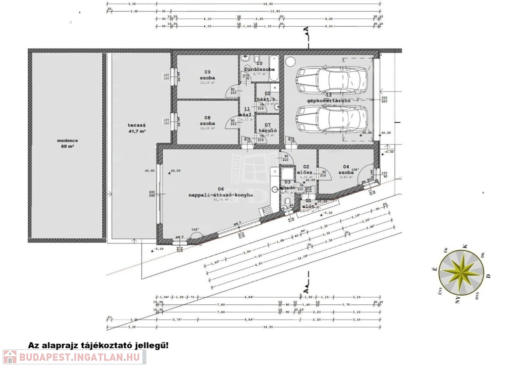
Eladó Dunaharasztin egy impozáns 4 szobás dupla komfortos 135,47m2-es önálló családi ház 1023m2-es telekkel.

**Épület jellemzői:**

•Az ingatlan 2024-ben épült egyedi tervezéssel a tetőszerkezet beton gerendás beton födémmel készült 40 cm-es szigeteléssel. A homlokzati 15 cm-es, lábazati 15 cm-es, az aljzat 15 cm-es hőszigetelést kapott. A terasz 42m2-es.

•A fűtés: Hőszivattyús Hűtés-fűtés rendszer, minden helyiségben padlófűtés/hűtés és mennyezeti fűtés/hűtés. Helyiségeként külön hőfokvezérlés. Fischer légkondicionáló került a nappaliban felhelyezésre.

•Hőcserélős, friss levegőszellőztető rendszer.

•A műanyag nyílászárok automata alumínium rejtett redőnyökkel és szúnyoghálóval szereltek.

•A hálózat 3X25 amperrel betáppal rendelkezik, Napelem rendszer kiépítve. 19,5 kW + H tarifás mérővel.

•Biztonságot fokozza a kiépített riasztó és kamerarendszer.

•A parkosított térkövezett kertet fúrt kúttal ellátott elektromos öntözőrendszer locsolja.

•A gondozott kertben egy 15x4 méteres, LEDVILÁGÍTÁSSAL, vízeséssel ellátott 60m2-es medence, valamint 30 méteres, öntisztuló kerti tó is helyet kapott.

•8 személyes kültéri finn szauna „csillagos égbolt” belső dizájnnal.

•A parkolás elektromos kapun keresztül a garázsban megoldott.

•Az összes helyiségben a világítás egyedi, mind formailag mind fényerejét tekintve.

**INGATLAN HELYSZÍNE, LOKÁCIÓ:**

Az eladó családi ház csendes, rendezett környezetben, jól megközelíthető helyen van. A környék infrastruktúrája kiváló, a főbb közlekedési csomópontok gyorsan elérhetők.
Az ingatlan környéke biztonságos és barátságos lakóközösséggel büszkélkedhet.

Kihagyhatatlan ajánlatok: CSOK+, kedvezményes kamatozású lakáshitelek.
Az ország szinte összes bankjának a hiteleit is kínáljuk, egyedi, általunk igénybe vehető kedvezményekkel, díjmentes ügyintézéssel

Amennyiben felkeltette a hirdetés a figyelmét, hívjon bizalommal!

Családi ház részletei

Ár: 239 000 000 Ft
Méret: 137 négyzetméter
Azonosító: 11549307
Irodai azonosító: 384736
Cím: LUXUSHÁZ MEDENCÉVEL,KERTITÓVAL!
Telek: 1023 négyzetméter
Ingatlan állapota: Kitűnő
Jelleg: családi ház
Építőanyag: Tégla
Fűtés jellege: Geotermikus
Fűtés módja: Hőszivattyú
Komfort fokozat: Luxus komfort
Kor: 1-5 éves
Szintek száma: Földszintes
Egész szobák: 3
Fél szobák: 1

Egyéb jellemzők

  • Csatorna
  • Garázs
  • Pince
  • Terasz

Térkép


Így keressen budapesti ingatlant négy egyszerű lépésben. Csupán 2 perc, kötelezettségek nélkül!

Szűkítse a budapesti ingatlanok
listáját
Válassza ki a megfelelő
budapesti ingatlant
Írjon a hirdetőnek
Várjon a visszahívásra