Eladó családi ház Dunaharaszti 164 700 000 Ft

Leírás


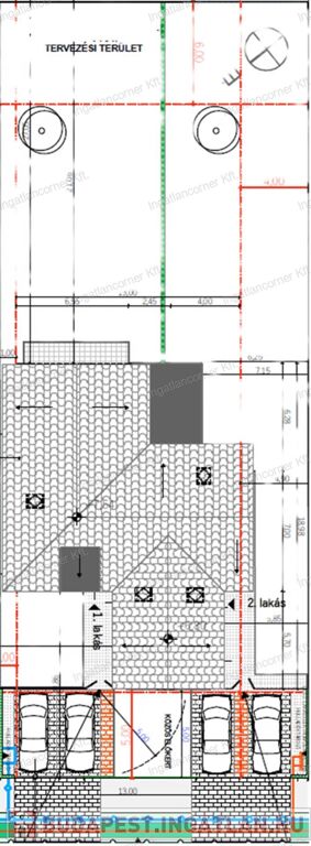
Ritka lehetőség a Bezerédi lakóparkban, az első ütem területén a már gyönyörűen kialakított, átmenő forgalom mentes utcában eladó ikerház, saját elkerített kerttel, kocsi beállókkal.



1.lakás akcióban e hónapban!



Több évtizedes tapasztalattal rendelkező kivitelező legújabb projektje!

Az épület magas műszaki tartalommal készül, mai kornak és elvárásoknak megfelelően. A két lakás között DUPLA hang-gátló fal készül és külön kerül kiöntésre a födém is. Magas hangsúlyt fektettek a két lakás külön választására, hogy mindkettő lakó funkció önálló ház életérzését nyújtsa!



Átadás 2026. június - július



Elhelyezése kiváló, csendes családi házas utca, pár perc sétára bölcsőde, óvoda, játszótér, vonat állomás, buszmegálló, kis bolt.



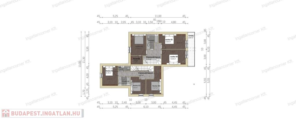
Lakás 1

Alapterület: 122,13 m²

Elosztás:

Saját kert rész 400m²

2 fürdőszoba

4 hálószoba

2 fürdőszoba

1 gardrób

Ár: 164 700 000 Ft



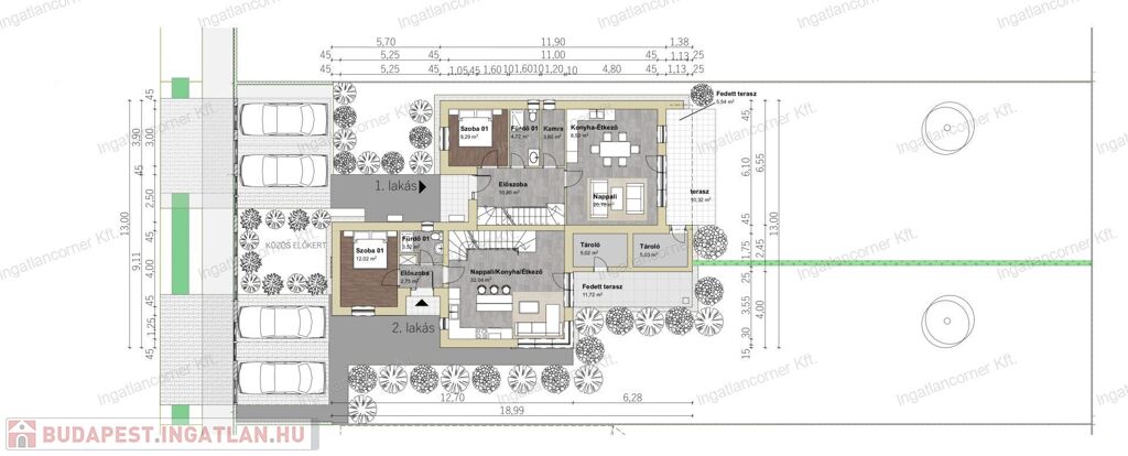
Lakás 2

Alapterület: 107,97 m²

Elosztás:

Sajtát kert rész 400m²

2 fürdőszoba

4 hálószoba

2 fürdőszoba

Ár: 156 600 000 Ft ( Most 149.900.000 Ft AKCIÓS ÁR)



-Korszerű hőszivattyús fűtés és hűtés

-Padló, mennyezeti és fal fűtés-hűtés

-Építési mód: 30-as POROTHERM tégla

-Szigetelés: 15 cm EPS szigetelés

-Födém: monolit beton

-Tetőszerkezet: TERRÁN Zenit Resistor cserép, carbon grafit színben

-Nyílászárók: műanyag, 3 rétegű, antracit színű kívül-belül.

-Energiatakarékos A+ besorolás

-Választható burkolatok, a műszaki tartalomban meghatározott kereten belül.

-Szerkezete vasbetonnal erősített



Prémium műszaki tartalom kérhető extra felár ellenében:

- Napelem alapszerelése

- Okos otthon kialakítása

- Prémium burkolatok

- Elektromos redőnyök, ablakokon szúnyoghálóval.

- Épített kerítés

- Fedett terasz

- Tároló

- Térkövezés

- Üvegkorlát



Jöjjön el, tekintse meg az ingatlant!

Szívből ajánlom minden olyan érdeklődőnek, akinek fontos a minőség és kényelem, a jó közlekedés és valamint a központhoz való pár perc alatti közelség, mégis megnyugtató szigetként funkcionáló meghitt családi otthon! Várom hívását!

Amennyiben nem tudom felvenni a telefont, hamarosan visszahívom! Hétvégén és esténként is nyugodtan kereshet bizalommal!



Független, ingyenes hitel-CSOK ügyintézéssel segítem kedves Ügyfeleimet, igen kedvező hitelekkel 2025-ben is! Mivel ingatlanirodánk építész és ingatlanfejlesztő irodával párosul, így minden hiteles szakmai segítséget meg tudunk adni, mellyel segíteni tudjuk döntését (könyvelő, ügyvéd, energetikai tanúsítvány, kivitelezők, szakértői vélemények....)!



Ha a vásárláshoz el szeretné adni a jelenleg meglévő ingatlanját, ebben is nagyon szívesen segítek. Az Ingatlancorner kft. igen alacsony közvetítői díjjal, a legmagasabb színvonalon képviseli az Ön érdekeit.



Ellenőrzött prémium partnerként várom megtisztelő bizalmát!

Családi ház részletei

Ár: 164 700 000 Ft
Méret: 122 négyzetméter
Azonosító: 11579688
Irodai azonosító: 107004181
Telek: 405 négyzetméter
Ingatlan állapota: Átlagos
Jelleg: ikerház
Építőanyag: Tégla
Komfort fokozat: Dupla komfort
Egész szobák: 5

Így keressen budapesti ingatlant négy egyszerű lépésben. Csupán 2 perc, kötelezettségek nélkül!

Szűkítse a budapesti ingatlanok
listáját
Válassza ki a megfelelő
budapesti ingatlant
Írjon a hirdetőnek
Várjon a visszahívásra