Eladó családi ház Diósd 124 500 000 Ft

Leírás

AKCIÓS ÁR: 35% FOGLALÓ ESETÉN 119.500.000 Ft!

DIÓSDON, új építésű, akár 3 GENERÁCIÓ számára is kényelmesen élhető, MODERN, MINŐSÉGI anyagokból épült, alaposan megtervezett, LUXUS ikerház ELADÓ!

KÉT LAKÁSBÓL CSAK AZ EGYIKRE ÉL AZ AKCIÓS ÁR, AMELYIK HAMARABB KEL EL!

Ehhez a hátsó lakáshoz tartozó telekterület 841 nm + 116 nm-s osztatlan közös út tartozik.

A ház a modern kori előírásoknak megfelelően 30 cm-s Porotherm téglából épült, melyen kívülről egy 10 cm grafitos EPS hőszigetelés található.
Műanyag nyílászárók kerültek beépítésre, 3 rétegű hőszigetelt üvegezéssel, elektromos redőnyökkel.
A lakás hűtését/fűtését és meleg víz ellátását egy levegő-víz hőszivattyú, fan-coil-k és padlófűtés fogják biztosítani.

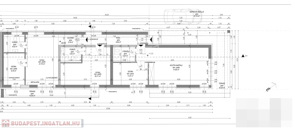
Helyiségek:
- előtér + közlekedő 11,64 nm,
- nappali + étkező+ konyha 31,85 nm,
- szoba 10,20 nm,
- szoba 20,17 nm,
- szoba 21,75 nm,
- szoba 8,76 nm,
- fürdőszoba + WC 4,92 nm,
- fürdőszoba + WC 4,20 nm,
- fürdőszoba + WC 4,34 nm.
Összesen 117,83 nm, + 71 nm terasz.

Főfalak, teherhordó falak:
A főfalak 30 cm vastag kerámia falazóblokkból (Porotherm 30K) készültek.

Födém szerkezet:
A padlásfödém könnyűszerkezetes – zárt cellás polietilén hőszigeteléssel.

Tető: Leier antracit cserép.

Hőszigetelések:
A külső falak 10 cm grafitos EPS hőszigetelést kaptak.
Padlószerkezetbe 10 cm vastag lépésálló EPS hőszigetelés került elhelyezésre.
A padlásfödém hőszigetelése zárt cellás polietilén hőszigeteléssel történt.

Nyílászárók:
Műanyag nyílászárók kerültek beépítésre, 3 rétegű hőszigetelt üvegezéssel, elektromos redőnyökkel.

Homlokzati felületek:
A homlokzati felületek nemesvakolatot kapnak, fehér színben, nyílászárok körül és alul egy antracit csíkkal.

Padló burkolatok:
A vizes helyiségekben, közlekedőben és a nappaliban gres burkolat vagy vinyl, a szobában laminált padló lesz.
Kültéri burkolat: a terasz greslap burkolattal készül.

A kocsibeállók fehér murvával lesznek borítva.

Hűtés-fűtés-meleg víz:
ENERGY SAVE AW19 V5+ típusú LEVEGŐ-VÍZ HŐSZIVATTYÚ gondoskodik a hűtés-fűtés-melegvízről.
Főbb jellemzői:
- osztott rendszerű, minden lakásban fali termosztáttal,
- 19kW-os,
- SWEP hőcserélő,
- 3 fázisú Panasonic kompresszor,
- 800 literes használati meleg víz tartály,
- 500 literes hűtés-fűtéshez szükséges tartály,
- 5 éves garancia.
- padlófűtés és 3db 3,5 kW Gree fan-coil.

PARKOLÓ:
Az elektromos kapuval zárt udvarban a lakásokhoz murvával borított kocsibeálló tartozik.

Infrastruktúra szempontjából nagyon kedvező elhelyezkedésű. A bevásárlási lehetőség, óvoda, iskola 5 perc autó távolságra van, az M0,M6,M7,M1 autópályák pillanatokon belül elérhetőek.

További információkért és megtekintéssel kapcsolatban várom jelentkezését a hét minden napján.

Az adatok tájékoztató jellegűek!

Ha bármi további kérdése van vagy szeretné megtekinteni, kérem hívjon!

AMENNYIBEN NEM RENDELKEZIK A TELJES VÉTELÁRRAL, segítünk Önnek megtalálni a legjobb megoldást!
BANKFÜGGETLEN hitelcentrumunk minden elérhető bank és hitelintézet ajánlatát versenyezteti az Ön kedvéért, ráadásul díjmentesen. Önnek nincs más dolga, mint elbeszélgetni munkatársunkkal, aki a hallott információk alapján versenyre hívja a bankokat, hogy Ön hosszú távon is a legjobb konstrukciót kaphassa. A legjobb ajánlatokból végül Ön választhatja ki a nyertest. Munkatársaink sokéves szakmai tapasztalattal várják Önt, előre egyeztetve akár a normál munkaidő után is.

Családi ház részletei

Ár: 124 500 000 Ft
Méret: 118 négyzetméter
Azonosító: 11338786
Irodai azonosító: 363567
Cím: AKCIÓ 35% FOGLALÓ ESETÉN 119.5 MFt!
Telek: 1377 négyzetméter
Ingatlan állapota: Átlagos
Jelleg: ikerház
Építőanyag: Tégla
Fűtés jellege: Geotermikus
Fűtés módja: Hőszivattyú
Komfort fokozat: Összkomfort
Kor: Új építésű
Szintek száma: Földszintes
Egész szobák: 4
Fél szobák: 1

Egyéb jellemzők

  • Csatorna
  • Garázs
  • Pince
  • Terasz

Térkép


Így keressen budapesti ingatlant négy egyszerű lépésben. Csupán 2 perc, kötelezettségek nélkül!

Szűkítse a budapesti ingatlanok
listáját
Válassza ki a megfelelő
budapesti ingatlant
Írjon a hirdetőnek
Várjon a visszahívásra