Eladó családi ház Deszk 92 990 000 Ft

Leírás

Kedves Érdeklődő!

Építkezzen új építésű lakóparkban Szeged belvárosától 10 percnyi távolságra és vásárolja meg álmai házat megbízható szegedi kivitelező cégtől!
Költözzön Deszkre a Szőlőskert Lakóparkba! A telekméret 827 m2 és 1275 m2 között egyedileg választható!

A feltüntetett vételár kulcsrakész állapotra vonatkozó bruttó ár és a telek árát is tartalmazza!

Alap kulcsrakész műszaki tartalom:
- 30 cm kerámia csiszolt tégla falazat, 10 cm grafitos hőszigeteléssel, fehér nemesvakolattal
- 3 rétegű 6 légkamrás műanyag nyílászárók
- szeglemezes, rácsos szerkezetű szerelt födém 30 cm hőszigeteléssel
- beton cserépfedés választható alapszínben
- gépi vakolású belső falfelületek glettelve és színre festve
- 24 kW-os BAXI kondenzációs kazán padlófűtéssel
- klíma előkészítés egy választott helyre
- hidegburkolatok 8000 ft/m2 árszintig, melegburkolatok 7500 ft/m2 árszintig
- szaniterek tetszés szerint 550.000 Ft-ig
- villanyszerelés kapcsolókkal és dugaljakkal, lámpatestek nélkül
- elektromos terv szerinti napelem előkészítés az inverterhez
- fehér dekor beltéri ajtók

Műszaki tartalom növelésre egyedi megegyezés alapján van lehetőség (hőszivattyús fűtés, napelem, mennyezet hűtés-fűtés, okos otthon rendszer, központi szellőztetés stb.), illetve további egyedi igények megvalósítására is van lehetőség!

Amennyiben rendelkezik már telekkel vagy saját elképzelései alapján terveztetné és építtetné meg álmai otthonát, abban is tudok segíteni! :)

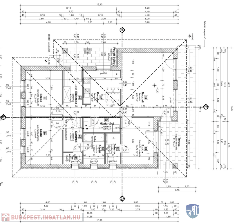
A hirdetésben szereplő ház 95 m2 alapterületű, amerikai konyhás nappali + 3 hálószobás elrendezésű 2 fürdőszobával. Igénybe vehető rá minden fajta állami támogatás és CSOK+ hitel, illetve ÁFA visszaigénylés is!

További információért és időpont egyeztetéssel kapcsolatban forduljon hozzám bizalommal!

Elérhetőség:
Német Máté
+36-30/ 975-8764
[email protected]
(További képekért és információkért kérem hívjon!)

Családi ház részletei

Ár: 92 990 000 Ft
Méret: 95 négyzetméter
Azonosító: 11393430
Irodai azonosító: 352187
Erkély mérete: 28.00 négyzetméter
Telek: 827 négyzetméter
Ingatlan állapota: Kitűnő
Jelleg: családi ház
Építőanyag: Tégla
Fűtés jellege: Cirkó
Egész szobák: 4
Nappalik: 1

Egyéb jellemzők

  • Beépíthető tetőtér
  • Csatorna
  • Garázs
  • Melléképület
  • Pince
  • Terasz

Így keressen budapesti ingatlant négy egyszerű lépésben. Csupán 2 perc, kötelezettségek nélkül!

Szűkítse a budapesti ingatlanok
listáját
Válassza ki a megfelelő
budapesti ingatlant
Írjon a hirdetőnek
Várjon a visszahívásra