Eladó családi ház Debrecen 220 000 000 Ft

Leírás

Elit környezetben, letisztult stílusú otthon.
Debrecenben az új építésű Liget lakóparkban, nívós családi házak ölelésében eladó újonnan épülő, letisztult vonalvezetésű otthon.

Megbízható, igényes kivitelezési munka, számos referenciával rendelkező kivitelezőtől.
Minőségi kivételezés mellett nagy hangsúly kerül az esztétikus megjelenésre is.

Paraméterei:
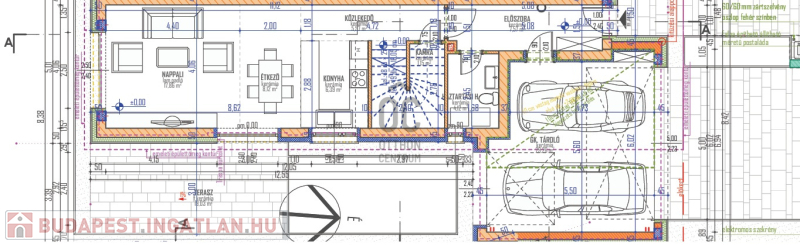
- telek mérete: 307 nm
- nettó hasznos alapterült 157 nm, + 19nm és 13nm tarasz és 6 nm-s erkély
- falazata: 30 cm -es Phorotherm tégla+ 15 cm vastag külső szigetelés
- aluminium nyílászárók: kívül - belül antracit szinezetű, fokozott hőszigetelésű, 3 rétegű üveggel, a tolóajtók emelő toló szerkezettel készültek
- árnyékolás: elektromos működtetésű, szines, aluminium redőny beépített tokkal
- fűtés: levegő víz hőszivattyú rendszer (DAIKIN) , minden helységben padlófűtés
- hűtés: levegő víz hőszivattyú rendszer mennyezeti hütőpanelekkel
- légcserélő, szellőztető rendszer, és beépített vízlágyitó rendszer is kiépítésre kerül

A tágas világos terek, alaposan megtervezett ideális elosztás, biztosítja az ott lakók kényelmét.
- 32 nm konyha - étkező - nappali mely közvetlen terasszal kapcsolatos
- 3 db 11 nm-nél nagyobb hálószoba + 6 nm-s gardrob szoba, 2 db fürdőszoba
- a beépítésre kerülő gépesített, prémium konyhabútort, beépített gardrobszekrényt a vételár tartalmazza

A hozzáértés és a szakértelem korrektséggel, precíz, határidők betartásával párosul!

Részletes műszaki leírással, a kulcsra kész befejezésre vonatkozóan illetve bővebb tájékoztatásért hívjon bizalommal!
Rugalmas ügyintézéssel számíthat ránk a hitel ügyintézéstől a kulcsátadásig!


Ideális otthon egy ideális helyen! Hívjon, hogy az ingatlant személyesen is bemutathassam!













Debrecen, Liget, frekventált, prémium, otthon, luxus, lakópark,

Családi ház részletei

Ár: 220 000 000 Ft
Méret: 176 négyzetméter
Azonosító: 11576071
Telek: 307 négyzetméter
Ingatlan állapota: Kitűnő
Jelleg: családi ház
Építőanyag: Kérdezzen rá a hirdetőtől »
Egész szobák: 4

Egyéb jellemzők

  • Csatorna
  • Garázs
  • Kábel TV
  • Melléképület
  • Parketta
  • Pince
  • Terasz

Így keressen budapesti ingatlant négy egyszerű lépésben. Csupán 2 perc, kötelezettségek nélkül!

Szűkítse a budapesti ingatlanok
listáját
Válassza ki a megfelelő
budapesti ingatlant
Írjon a hirdetőnek
Várjon a visszahívásra