Eladó családi ház Debrecen 189 000 000 Ft

Leírás

Debrecentől pár perces távolságra, Pallag irányában, új lakópark épül.

A Nagyerdő közvetlen szomszédságában, nyolcholdas területen, 32 családnak nyújt otthont a lakópark.
A telkek nagysága és elhelyezkedése lehetővé teszi, hogy olyan ingatlanok épüljenek, melyek elsődleges célja:
- természetközeliség
- intimitás
- exkluzivitás
- egyediség
- zárt közösség.
A teljesen közművesített telkeket térkövezett belső útról lehet megközelíteni, melyek közművilágítással ellátottak és a lakópark körbekerített, zárt rendszerű.
Fekvésének köszönhetően további építkezés a lakóparkon túl nem lesz, ezért nem kell tartania a túlzsúfolt lakókörnyezettől.
Pallagon a pár éve működő Nemzetközi Iskola, óvoda, középiskola lehetőséget nyújt gyermekei számára a tanulás és sport igényeinek.
SPAR üzlet és reggeliző, kávézó nyújt a mindennapi teendőkhöz segítséget.
Megközelíthetősége autóbusszal, kerékpárral és autóval is csak pár perc Debrecentől.

AZ ÉPÍTKEZÉS BEFEJEZŐDÖTT AZ INGATLAN KULCSRAKÉSZ ÁLLAPOTBAN VÁRJA TULAJDONOSÁT!

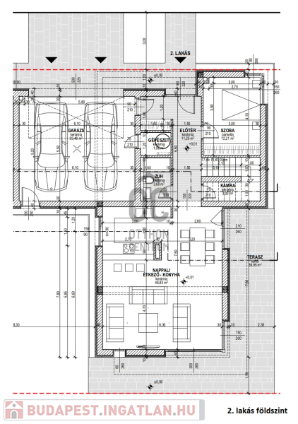
Az ikerházak 2.lakása: 190nm alapterületű, nappali + 4 szobás, 600 nm-es telekrésszel.

Földszint:
- nappali étkezőkonyha kialakítással és kamrával (50 nm)
- dolgozószoba (12 nm)
- zuhanyzó mosdóval (4 nm)
- gépészet
- dupla gépkocsi beállású garázs (34 nm)
- terasz (40 nm)

Emelet:
- 3 hálószoba
- 2 fürdőszoba
- gardrób
- mosókonyha
- tetőterasz.

Átadás: 2025. február

Illetékmentesség, CSOK-kal kapcsolatos és bankfüggetlen hitelügyintézést banki kollégánk teljeskörűen és ingyen bonyolítja Önnek irodánkban, da akár otthonában is!

Családi ház részletei

Ár: 189 000 000 Ft
Méret: 191 négyzetméter
Azonosító: 11395067
Telek: 600 négyzetméter
Ingatlan állapota: Átlagos
Jelleg: ikerház
Építőanyag: Kérdezzen rá a hirdetőtől »
Fűtés jellege: Cirkó
Egész szobák: 5

Egyéb jellemzők

  • Csatorna
  • Garázs
  • Kábel TV
  • Melléképület
  • Parketta
  • Pince
  • Terasz

Így keressen budapesti ingatlant négy egyszerű lépésben. Csupán 2 perc, kötelezettségek nélkül!

Szűkítse a budapesti ingatlanok
listáját
Válassza ki a megfelelő
budapesti ingatlant
Írjon a hirdetőnek
Várjon a visszahívásra