Eladó családi ház Debrecen 170 000 000 Ft

Leírás

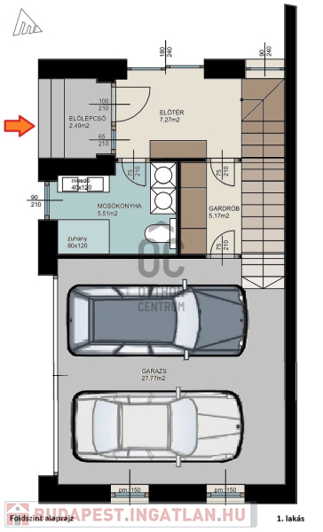
1. lakás Br. 170 nm, 100 nm kertkapcsolattal:

Földszint:
- duplagarázs (28 nm)
- mosókonyha zuhanyzóval (6 nm)
- gardrób (5 nm)
- közlekedő (7 nm)

I. Emelet:
- amerikaikonyhás nappali étkezővel (46 nm), melyből kialakítható dolgozószoba
- erkélykapcsolat (26 nm)

II. Emelet:
- 3 hálószoba (10 - 10 - 10 nm)
- 2 fürdőszoba (4 és 5 nm)
- erkélykapcsolat (27 m)
Projekt bemutatása

Debrecen Belvárosához közel, a Széchenyi-kert egyirányú utcájában új építésű, exkluzív otthonok épülnek.
A 4 lakásos ikerházból már 1 lakás eladásra került!
Ezek az Otthonok duplagarázzsal és gépesített, beépített konyhával kerülnek értékesítésre!

Az egyedi kialakítású, napfényes lakások nappali + 3 szobás, 3 fürdőszobás, háromszintesek és kertkapcsolatosak:
földszinten: duplagarázs, mosókonyha zuhanyzóval, gardróbbal/tárolóval
I. emeleten: nappali, étkező - konyha, akár dolgozó/háló kialakítással és erkély vagy teraszkapcsolattal
II. emeleti részen: szülői hálószoba gardróbbal és saját fürdőszobával, valamint 2 hálószoba külön fürdőszobával és erkély vagy teraszkapcsolattal

A magas műszaki tartalmon túl, EXTRA megoldások kerülnek beépítésre:
- külső falak Porotherm 30 cm tégla, 15 cm hőszigeteléssel
- 3 rétegű műanyag nyílászárók
- elektromos redőnyök egyedileg is vezérelhető távirányítással
- 5 db hőszivattyús típusú klíma (hűtő-fűtő)
- gázkazán melegvíz tárolóval (padlófűtés)
- beépített konyhabútor gépesítve (főzőlap,sütő,páraelszívó,hűtő,mosogatógép)
- központi porszívó
- vízlágyító berendezés
- riasztó
- épített kerítés
- beépített led világítások

Minden lakás kertkapcsolatos, melyet kerítés választ el egymástól és a szomszédos telektől.

Átadás: 2025. július

Jöjjön és legyen Ön a következő, aki még választhat és akár azonnal költözhet!

Hitelügyintézés, CSOK +, banki kollégánk teljeskörűen és díjmentesen bonyolítja Önnek irodánkban, de akár otthonában is!

Családi ház részletei

Ár: 170 000 000 Ft
Méret: 144 négyzetméter
Azonosító: 11495702
Telek: 163 négyzetméter
Ingatlan állapota: Átlagos
Jelleg: sorház
Építőanyag: Kérdezzen rá a hirdetőtől »
Fűtés jellege: Cirkó
Egész szobák: 4

Egyéb jellemzők

  • Csatorna
  • Garázs
  • Kábel TV
  • Melléképület
  • Parketta
  • Pince
  • Terasz

Így keressen budapesti ingatlant négy egyszerű lépésben. Csupán 2 perc, kötelezettségek nélkül!

Szűkítse a budapesti ingatlanok
listáját
Válassza ki a megfelelő
budapesti ingatlant
Írjon a hirdetőnek
Várjon a visszahívásra