Eladó családi ház Debrecen 170 000 000 Ft

Leírás

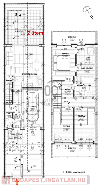
2. lakás: Br. 152 nm

- amerikaikonyhás - étkezős nappali (27 nm)
- teraszkapcsolat (24 nm)
- garázs (15 nm)
- vendégmosdó
- 3 szoba (10-10-10 nm)
- 2 fürdőszoba
- gardrób
- erkélyek (16 nm)
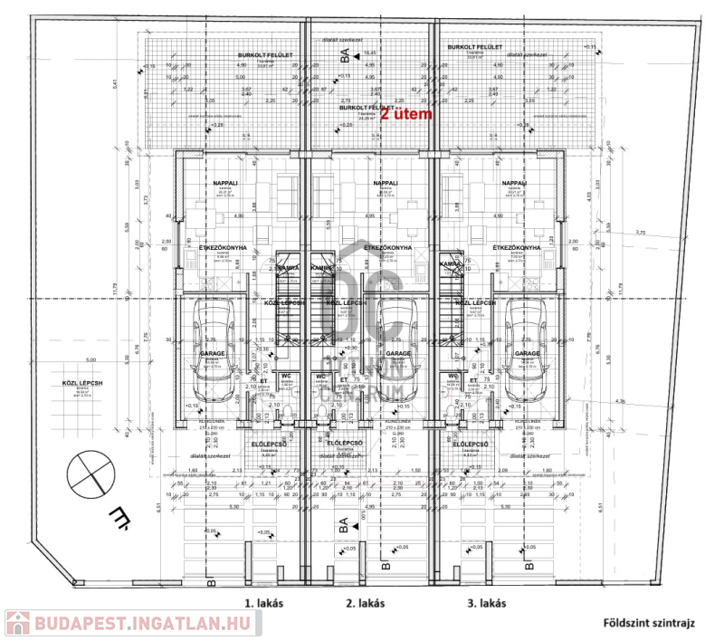
Projekt bemutatása

Debrecen kedvelt, Nagyerdőhöz és az Egyetemekhez közeli részén modern, új építésű, extrákkal felszerelt sorház épül, átadása 2026. I. negyedév.

Saját kertkapcsolatos otthonok várják tulajdonosaikat 2 szinten.
A földszinten amerikaikonyhás - étkezős nappali terasz és kertkapcsolattal, vendégmosdóval és garázzsal.
Az emeleten 2 gyerekszoba kádas fürdőszobával, míg a szülői háló saját fürdőszobával és gardróbbal felszerelt.

Műszaki tartalmát extrákkal bővítették:
- beépített konyhabútor gépesítve (Electrolux)
- 2 db elektromos porszívó
- vízlágyító berendezés
- elektromos redőnyök és kapuk távirányítós vezérléssel
- hőszivattyús klímák (h-tarifa)
- riasztórendszer
- padlófűtés.

Tervezze a tavaszt már új otthonában!

További részletkért és a megtekintést illetően várom hívását!

Családi ház részletei

Ár: 170 000 000 Ft
Méret: 132 négyzetméter
Azonosító: 11573502
Telek: 120 négyzetméter
Ingatlan állapota: Kitűnő
Jelleg: sorház
Építőanyag: Kérdezzen rá a hirdetőtől »
Fűtés jellege: Cirkó
Egész szobák: 4

Egyéb jellemzők

  • Csatorna
  • Garázs
  • Kábel TV
  • Melléképület
  • Parketta
  • Pince
  • Terasz

Így keressen budapesti ingatlant négy egyszerű lépésben. Csupán 2 perc, kötelezettségek nélkül!

Szűkítse a budapesti ingatlanok
listáját
Válassza ki a megfelelő
budapesti ingatlant
Írjon a hirdetőnek
Várjon a visszahívásra