Eladó családi ház Debrecen 165 000 000 Ft

Leírás

Debrecen Kerekes - telep városrész központi részén eladó, egy mai modern technológiával épülő ikerház.
A két ingatlan egymás mellett helyezkedik el, tehát utcáról lehet megközelíteni mind a kettőt, nem egymáson átjárós.
Saját telek : 451 m2 lakásonként, jó alakú, minden ami kell egy családi házhoz , megvalósítható benne.
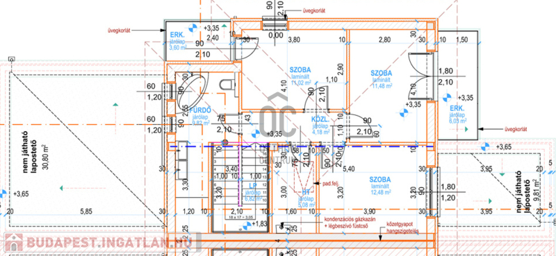
Az ingatlan beépített alapterület : 170 m2, amelyből a fűtött lakótér : 135 m2 , + 35 m2 - es dupla autós garázs.
A lakóingatlanhoz tartozik még : 22,66 m2 - es terasz + 6,09 m2 - es, és 3,6 m2 - es erkély.
Kialakítása : földszint + emelet.
Földszint helyiségei : konya - étkező - nappali, szoba, wc, dupla garázs + terasz.
Emelet helyiségei : 3 szoba, tágas fürdőszoba , háztartási helyiség + erkély.
Jellemzői :
- magas minőségű építőanyagokból épül
- szigetelés oldalfalon : 10 cm, födémen : 25 cm
- Fűtés + melegvíz : VEISMANN 24 KW kondenzációs gázkazán, vagy ennek megfelelő levegős VEISMANN hőszivattyú
- padlófűtés
- mennyezet hűtés
- 3 rtg , 6 kamrás műanyag ablakok, belül fehér, kivül szenes felülettel.
Közelben óvodák, iskolák, bevásárlóközpontok, a környék szolgáltatása, infrastruktúrája folyamatosan fejlődik, így az ingatlan jó vétel, értékálló.
Az ingatlan kb : 50 % - os készültségben van, tudok már mit mutatni.
Várható átadás : 2025 nyara
Ha felkeltettem az érdeklődését, kérem, hívjon bizalommal.

Családi ház részletei

Ár: 165 000 000 Ft
Méret: 135 négyzetméter
Azonosító: 11446584
Telek: 451 négyzetméter
Ingatlan állapota: Átlagos
Jelleg: ikerház
Építőanyag: Kérdezzen rá a hirdetőtől »
Fűtés jellege: Cirkó
Egész szobák: 5

Egyéb jellemzők

  • Csatorna
  • Garázs
  • Kábel TV
  • Melléképület
  • Parketta
  • Pince
  • Terasz

Így keressen budapesti ingatlant négy egyszerű lépésben. Csupán 2 perc, kötelezettségek nélkül!

Szűkítse a budapesti ingatlanok
listáját
Válassza ki a megfelelő
budapesti ingatlant
Írjon a hirdetőnek
Várjon a visszahívásra