Eladó családi ház Dánszentmiklós 56 900 000 Ft

Leírás

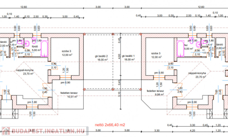
FOGLALHATÓ!! Dánszentmiklóson Budapesttől 50 kilométerre értékesitésre kinálók egy 66.40 nm 3 hálószobás nappalis ikerházfelet 400 nm saját külön bejáratú telekrésszel. Az épültek között nincs közös fal nincs összeépítés, alacsony rezsiköltéség modern dizájn. A belső térben előszoba, közlekedő,3 szoba fürdőszoba, külön WC, amerikai konyhás nappali kertkapcsolatos terasszal. Műszaki tartalom:leier tégla falazat, 15 cm hőszigetelés, Bramac Nova cserép, födémen 25 cm-es szigetelés, 3 rétegű, hatlégkamrás műanyag nyílászárók, redőnyelőkészités, 10 kw-os hőszivattyús fűtésrendszer padlófűtéssel, Ariston okosbojler, 9500 ft/nm áron választható hidegburkolatok 7500 ft/nm áron választható melegburkolat, szaniterek 450.000 ft-i, belső ajtók 90000 ft.-ig, 20 nm viacolorozott kocsibeálló 5500 ft 6nm-ig.Várható átadás 2026 második felében.Számos referencia munka megtekinthető így az érdeklődők személyesen is meggyőződhetnek a kivitelezés minőségéről. Foglalózás után a vételárra árgaranciát vállunk! Fizetési ütemezés megbeszélés tárgyát képezi. Dánszentmiklós közúton az M4-es és az M5 autópályákról könnyedén megközelíthető Budapest fővárostól 60 kilométerre helyezkedik el 30 perc alatt elérhető, a telek 405 főúttól 4 kilométerre található. Hivjon bizalommal, hétvégén is állok ügyfeleink rendelkezésére! Alitisz Judit 0620400-4009.

Családi ház részletei

Ár: 56 900 000 Ft
Méret: 66 négyzetméter
Azonosító: 11565710
Telek: 800 négyzetméter
Ingatlan állapota: Kitűnő
Jelleg: családi ház
Építőanyag: Kérdezzen rá a hirdetőtől »
Fűtés jellege: Egyéb
Komfort fokozat: Összkomfort
Egész szobák: 3

Egyéb jellemzők

  • Csatorna
  • Garázs
  • Kábel TV
  • Melléképület
  • Parketta
  • Pince
  • Terasz

Így keressen budapesti ingatlant négy egyszerű lépésben. Csupán 2 perc, kötelezettségek nélkül!

Szűkítse a budapesti ingatlanok
listáját
Válassza ki a megfelelő
budapesti ingatlant
Írjon a hirdetőnek
Várjon a visszahívásra