Eladó családi ház Dabas 120 000 000 Ft

Leírás

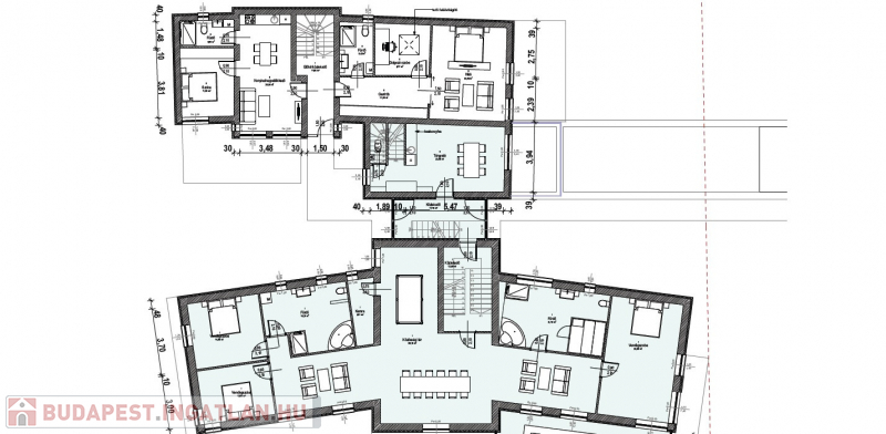
Budapesttől 35 percre, Dabas csendes részén eladó, egy különleges befektetés FANTASZTIKUS áron! 1 Hektár belterületi telek ami 6 db telekre van osztva, jelen pillanatban egyben eladó. Az egyik telken már 2006-ban meg lett építve egy 400 nm-es épület, ami most szerkezetkész állapotban van, és már az elektromos vezetékek ki lettek építve. Ezen kívül van egy engedélyezett projekt ami még további épületek építésére ad lehetőséget. Így egy külön lakóparkot lehet létrehozni, A projekt hatalmas lehetőséget kínál. Mivel a telkek teljesen belterületi építési telkek 30% beépíthető, összesen 10 db lakás valósítható meg ezeken a telkeken. Közművek a telken. A vonat, busz járat, Iskola, óvoda, orvosi rendelő, gyógyszertár, 10-15 percre elérhető. Amennyiben felkeltette érdeklődését, hívja a 06204004006-os számot

Családi ház részletei

Ár: 120 000 000 Ft
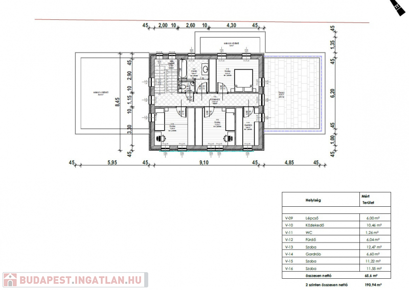
Méret: 400 négyzetméter
Azonosító: 11065902
Telek: 8000 négyzetméter
Ingatlan állapota: Kitűnő
Jelleg: családi ház
Építőanyag: Kérdezzen rá a hirdetőtől »
Fűtés jellege: Egyéb
Egész szobák: 4
Fél szobák: 10

Egyéb jellemzők

  • Csatorna
  • Garázs
  • Kábel TV
  • Melléképület
  • Parketta
  • Pince
  • Terasz

Így keressen budapesti ingatlant négy egyszerű lépésben. Csupán 2 perc, kötelezettségek nélkül!

Szűkítse a budapesti ingatlanok
listáját
Válassza ki a megfelelő
budapesti ingatlant
Írjon a hirdetőnek
Várjon a visszahívásra