Eladó családi ház Dabas 119 500 000 Ft

Leírás

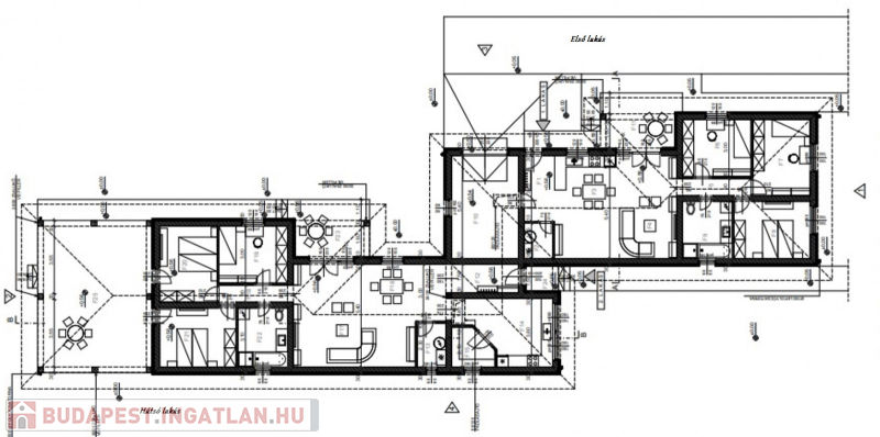
Budapesttől 35 percre, Dabas központi, elit, részén nívós környezetben eladó egy külön bejáratos 121 nm-es családi ház 500 nm-es telekkel. A ház kétlakásos kertkapcsolatos ikerház. A házak egy telken de külön bejárattal készülnek, ezért nagy előny, hogy a lakók nem zavarják egymást . A házban egy amerikai konyha-nappali-étkező, 3 db hálószoba, tágas fürdőszoba, külön wc, előtér, fedett terasz, valamit garázs van kialakítva . Műszaki paraméterek: Sávalap vasbeton erősítéssel . Az épület falazata 30-as ytong-ból készült 10 cm hőszigeteléssel. A tetőre antracit cserép fedés került . A homlokzat színe fehér. Nyílászárók műanyag szerkezetű bukó -nyíló kivitelben 3 rétegű üvegezéssel készültek. A ház fűtése padlófűtés, amit levegő +víz hőszivattyús rendszer biztosít, ezekhez napelem kiállás is biztosítva van, ( így akár 0 Ft-os rezsijű otthonban élhet aki ezt a házat választja). A ház bejárata előtt a járda viacolorból készült el. Az utcában akár referencia házakat is meg tekinthet . A vonat, busz járat 5-10 percre, Iskola, óvoda, orvosi rendelő, gyógyszertár, bevásárló központ akár gyalogosan is elérhető. Amennyiben felkeltette érdeklődését, hívja a 06204004006-os számot

Családi ház részletei

Ár: 119 500 000 Ft
Méret: 121 négyzetméter
Azonosító: 11284317
Telek: 500 négyzetméter
Ingatlan állapota: Kitűnő
Jelleg: családi ház
Építőanyag: Kérdezzen rá a hirdetőtől »
Fűtés jellege: Egyéb
Komfort fokozat: Összkomfort
Egész szobák: 4

Egyéb jellemzők

  • Csatorna
  • Garázs
  • Kábel TV
  • Melléképület
  • Parketta
  • Pince
  • Terasz

Így keressen budapesti ingatlant négy egyszerű lépésben. Csupán 2 perc, kötelezettségek nélkül!

Szűkítse a budapesti ingatlanok
listáját
Válassza ki a megfelelő
budapesti ingatlant
Írjon a hirdetőnek
Várjon a visszahívásra