Eladó családi ház Csörög 83 500 000 Ft

Leírás

Csörög település legszebb részén új építésű családi házak ölelésében, aszfaltos utcában eladásra kerül egy egyszintes, szintén fiatal építésű önálló családi ház, mely egy 816 m2-es telken került felépítésre.
Az épület POROTHERM 30 N+F téglából épült, mely külsőleg 10 cm-es grafitos hőszigetelést kapott. A nyílászárók 2 hőlégkamrásak, hő és hangszigeteltek, melyek redőnnyel ellátottak.
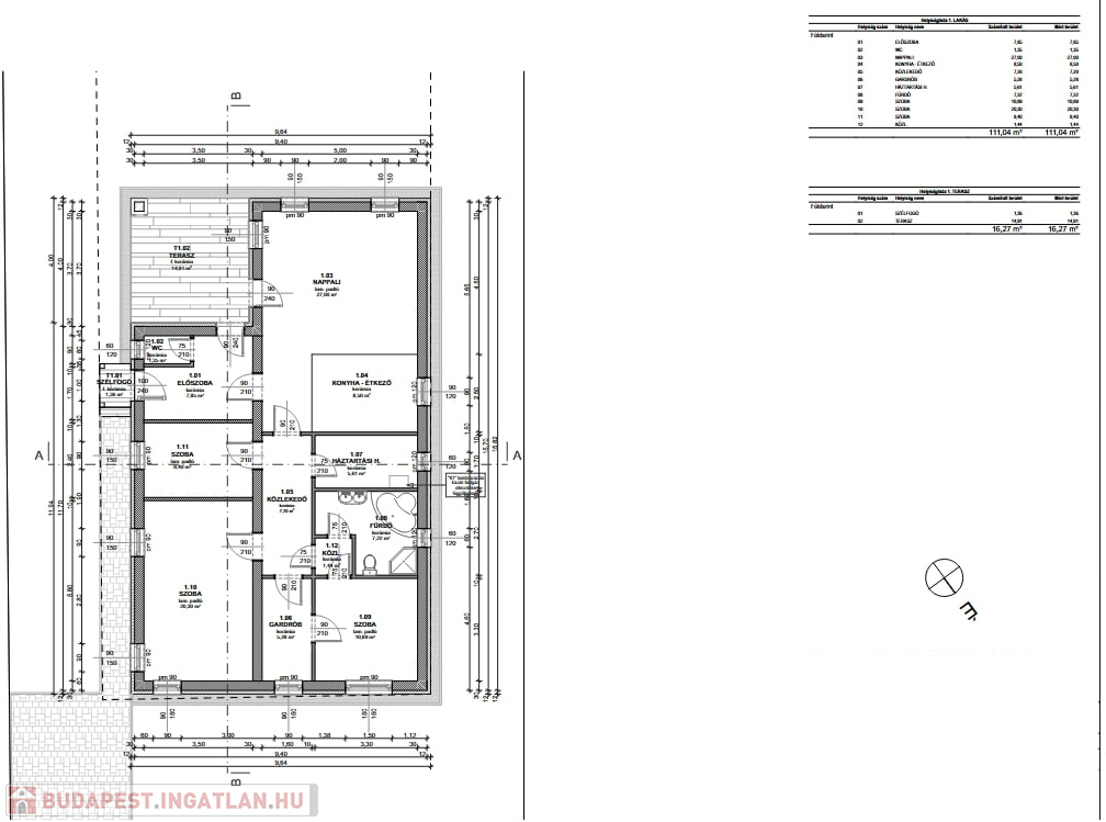
Az épület elrendezése kifejezetten ideális, akár nagyobb család részére is kényelmes életteret biztosít. Minden szobája különnyíló, valamint két fürdőszoba biztosítja a magasabb komfort érzetet.
Új otthonának belső elrendezése: előszoba, zuhanyzós fürdőszoba, tágas amerikai konyhás nappali, három különnyíló szoba, gardróbszoba valamint egy kádas fürdőszoba.
Az otthon melegét és meleg víz ellátását Ariston típusú kondenzációs gázkazán biztosítja. A nyári meleg enyhítést új légkondicionáló adja.
A tetőszerkezet nyeregtetős szerkezet, beton cseréppel ellátott.
A gondosan karbantartott kertben fúrt kút is található, ily módon biztosítva a kert öntözését. Az udvaron található egy kis gyermekjátszótér mely a vételárban foglaltatik.
A kert adottságából és méretéből adódóan számos lehetőség adott további gyümölcsfák és veteményes, magas ágyások kialakítására, vagy az új tulajdonos fantáziájára van bízva.
Csörög település infrastrukturálisan kifejezetten jó ellátott. Az ingatlantól pár perc sétával a vasút-autóbusz-állomáson lehetünk, onnan Vácra vagy Budapest irányába is eljuthatunk. A település mellett halad az M2 autóút, mely 2x2 sávosra bővült, így megrövidítve a Budapestre valóbejutást.Az ingatlan településen belüli elhelyezkedése kifejezetten ideális,néhány perces sétával orvosi rendelő, óvoda, bevásárlási lehetőség, posta és játszótér is elérhető. A közeljövőben egy nagyobb minden igényt kielégítő szupermarket épül a településen, mely kiszolgáló kereskedelmi egységekkel bővül, mintapéldányul gyógyszertárral.
A településen több utca aszfaltos útburkolatot kapott, ily módon is megkönnyítve a közlekedést, illetve számos kulturális-fesztivál eseménynek is otthont ad. Jöjjön, fedezze fel a házban rejlő lehetőségeket.
További információért várom hívását a hét bármely napján.

Családi ház részletei

Ár: 83 500 000 Ft
Méret: 112 négyzetméter
Azonosító: 11552042
Telek: 816 négyzetméter
Rezsi: 45 000 Ft/hó
Ingatlan állapota: Újszerű
Jelleg: családi ház
Építőanyag: Tégla
Fűtés jellege: Cirkó
Fűtés módja: Gáz
Komfort fokozat: Összkomfort
Elhelyezkedés: Udvari
Szintek száma: Földszintes
Bútorozott: Nem bútorozott
Egész szobák: 4
Nappalik: 1

Egyéb jellemzők

  • Beépíthető tetőtér
  • Garázs
  • Kábel TV
  • Padlás
  • Parketta
  • Pince
  • Terasz

Térkép


Így keressen budapesti ingatlant négy egyszerű lépésben. Csupán 2 perc, kötelezettségek nélkül!

Szűkítse a budapesti ingatlanok
listáját
Válassza ki a megfelelő
budapesti ingatlant
Írjon a hirdetőnek
Várjon a visszahívásra