Eladó családi ház Csobánka 284 990 000 Ft

Leírás

Csobánkán elvehetetlen panoráma mellett új építésű családi ház épül!

A 834 m²-es napos telekre épülő, modern családi ház kivételes elhelyezkedéssel és magas műszaki tartalommal rendelkezik. A lenyűgöző, örökpanorámás kilátás a ház minden pontjáról élvezhető, így azoknak ajánlott, akik a természet közelségét és a prémium minőséget egyaránt fontosnak tartják.

Szerkezet és szigetelés:
Az ingatlan tartós, masszív kivitelezéssel készül: a főfalak 30 cm-es téglából, a belső válaszfalak pedig 10 cm vastag válaszfaltéglából épültek. A gazdaságos fenntartást kiemelkedően jó hőszigetelés biztosítja: 10 cm-es aljzatszigetelés, 40 cm-es födémszigetelés és 15 cm-es külső hőszigetelés gondoskodik az alacsony rezsiről és a téli-nyári komfortérzetről.

Gépészet és fűtés:
A modern fűtési rendszer hőszivattyúval és padlófűtéssel működik, melyet 5 darab levegő-levegő klíma egészít ki. A H tarifás villanyóra további energetikai előnyt biztosít, így az üzemeltetési költségek hosszú távon is kedvezőek.

Belső kialakítás és felszereltség:
A kivitelezés során minőségi anyagok kerülnek beépítésre:

meleg- és hidegburkolatok bruttó 10 000 Ft/m² értékben választhatók,

mennyezeti gipszkarton rejtett világítással,

Geberit WC-k, épített zuhany, szabadon álló fürdőkád,
Grohe csaptelek

prémium beltéri ajtók (100.000.- Ft/db.).

A bejárati ajtó oldalvilágítással ellátott, biztonsági kialakítású, amely stílusos megjelenést és magas fokú védelmet nyújt.
Vakolható tokos elektromos redőnyökkel.

Kültéri elemek:
A 70 m²-es panorámás terasz üvegkorláttal készül, burkolata 10 000 Ft/m² áron.
A kertben 50 m² viacolor térburkolat kerül kialakításra.
Az utcafronton gondozásmentes kerítés kerül beépítésre, míg az oldalhatáron zsalukő, oszlopok 3D elemek készülnek.

Ez az ingatlan ideális választás mindazoknak, akik Csobánka egyik legszebb részén szeretnének új, energiatakarékos és modern otthonba költözni, lélegzetelállító panorámával kiegészítve.
ID: 390663

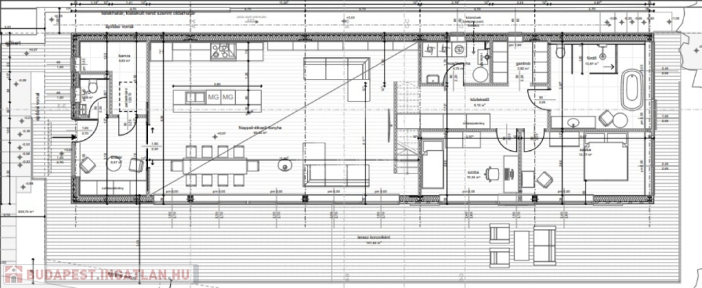
Családi ház részletei

Ár: 284 990 000 Ft
Méret: 140 négyzetméter
Azonosító: 11586538
Irodai azonosító: 390663
Cím: Búzavirág utca
Telek: 834 négyzetméter
Ingatlan állapota: Épülő
Jelleg: családi ház
Építőanyag: Tégla
Fűtés jellege: Geotermikus
Fűtés módja: Hőszivattyú
Komfort fokozat: Dupla komfort
Kor: Új építésű
Szintek száma: Földszintes
Egész szobák: 4

Egyéb jellemzők

  • Csatorna
  • Garázs
  • Pince
  • Terasz

Térkép


Így keressen budapesti ingatlant négy egyszerű lépésben. Csupán 2 perc, kötelezettségek nélkül!

Szűkítse a budapesti ingatlanok
listáját
Válassza ki a megfelelő
budapesti ingatlant
Írjon a hirdetőnek
Várjon a visszahívásra