Eladó családi ház Budapest XXIII. ker 190 000 000 Ft

Leírás


Eladó IKERVILLÁK Soroksár-Apostolhegyen, csendes, kis forgalmú utcában.

 

Az ingatlanok teljesen ÚJ ÉPÍTÉSŰek, magas színvonalon felszereltek.

A  telken három épület  áll egymás mellett, melyből az első várhatóan még  2025 nyarán kulcsrakész lesz, jelenleg körülbelül 80%-os készültségű.

 

A házak korszerű technológiával, hőszivattyús padlófűtéssel és mennyezet hűtéssel lettek kialakítva.

Az okosotthon rendszer előkészített, a teljes elektromos hálózat központilag szervezett.

Az építés minőségi anyagokat felhasználva történt, gondosan megtervezett, igényes kialakítású.

A szerkezet ytong, födém beton, 20 cm szigetelés, Rehau nyílászárók.

 

Az ár tartalmazza az alábbi extrákat:

Hővisszanyerős lakásszellőztető rendszer, páramentesítő funkcióval és HEPA szűrővel.

Elektromos redőnyök.

Beépített KONYHABÚTOR a tervek szerint.

 

További extrák már előkészítve, bekábelezve, felár ellenében kivitelezhetőek:

Automatikus és okos otthon vezérlés távolról kezelhető funkciókkal.

Jakuzzi.

Napelem rendszer.

Elektromos autó töltőállomás.

 

A környékről:

A Kis-Duna közelsége ideális lehetőséget kínál szabadidős tevékenységekre,  evezésre, futásra vagy akár sétára.

 

Az ingatlan a jó közlekedés mellett  könnyen megközelíthető, iskola, óvoda a közelben.

Bevásárlási lehetőségek széles skálája szintén nagyon közel.

 

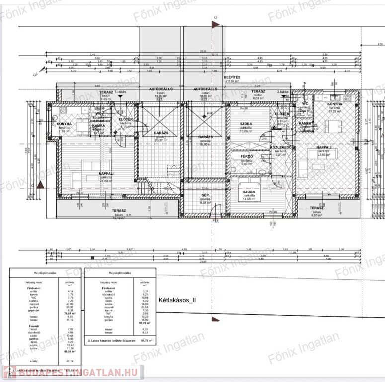
Jobb oldali 1. lakás 

Garázsos –

Belső Kétszintes

132 m2-es + összesen 25 m2 földszinti terasszal + 26 m2 emeleti erkéllyel,

Saját kert a házon felül: 337 m2, 20 m2-es garázs + kocsibeálló,

nappali,  3 szoba, 2 fürdőszoba, vendég wc-vel, gardrób, kamra..

 

Ilyen luxus minőséget, ilyen áron nem talál máshol!

 

Remélem felkeltettem az érdeklődését, várom megtisztelő hívását!





 

Családi ház részletei

Ár: 190 000 000 Ft
Méret: 158 négyzetméter
Azonosító: 11553552
Irodai azonosító: 705100326
Telek: 337 négyzetméter
Ingatlan állapota: Kitűnő
Jelleg: ikerház
Építőanyag: Tégla
Komfort fokozat: Luxus komfort
Kor: Új építésű
Egész szobák: 4

Így keressen budapesti ingatlant négy egyszerű lépésben. Csupán 2 perc, kötelezettségek nélkül!

Szűkítse a budapesti ingatlanok
listáját
Válassza ki a megfelelő
budapesti ingatlant
Írjon a hirdetőnek
Várjon a visszahívásra