Eladó családi ház Budapest XXIII. ker 149 000 000 Ft

Leírás

Eladó Soroksár frekventált részén önálló családi ház!

Az ingatlan alkalmas üzlet kialakítására vagy két generáció részére is, befektetésnek is kiváló.

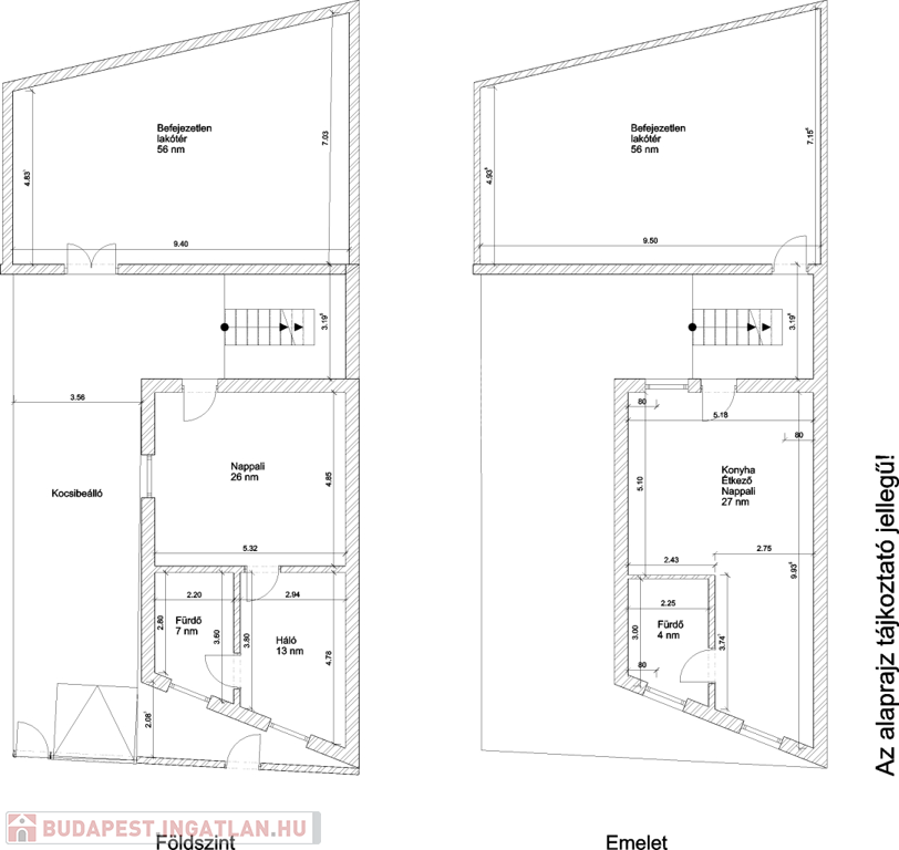
Az ingatlan első épületének beosztása:

Földszint: 46 m2
- nappali-konyha 26 m2
- fürdő 7 m2
- szoba 13 m2

Tetőtér: 31 m2
- nappali-konyha 27 m2
- fürdő 4 m2

Az ingatlan második (hátsó) épülete:
Földszint: 56m2, ahol magánrendelő kialakítása van folyamatban
Tetőtér: 56m2

Felszereltség:
- elektromos kapu
- elektromos redőnyök
- hűtő-fűtő klíma
- műanyag nyílászárók
- minőségi burkolatok

Az udvarban 1 autó beállásra van lehetőség, további autóval közterületen megoldott a parkolás.

Közlekedés kiváló, HÉV és buszmegálló 5 percre, Budapest Közvágóhíd 15 perc. A közelben iskola, óvoda, kormányablak, bankfiók, rendelőintézet. Az IKEA, Auchan bevásárlóközpont 10 perc autóút.

Befektetésnek is kiváló, a környéken 600.000-850.000Ft/hó + rezsi áron vannak hasonló kiadó lakások, ami évente 7.000.000Ft bevételt is jelenthet.

Amivel segítjük az Ön ingatlanvásárlását:
- ingyenes hitelügyintézés,
- jogi háttér,
- földhivatali ügyintézés,
- energetikai tanúsítvány.

Irodánk 30 éves szakmai tapasztalattal áll ügyfelei rendelkezésére!
Várom szíves megkeresését.

Családi ház részletei

Ár: 149 000 000 Ft
Méret: 185 négyzetméter
Azonosító: 11537734
Irodai azonosító: 382863
Cím: Soroksár
Telek: 217 négyzetméter
Ingatlan állapota: Kitűnő
Jelleg: családi ház
Építőanyag: Tégla
Fűtés jellege: Cirkó
Fűtés módja: Gáz
Komfort fokozat: Dupla komfort
Kor: 11-20 éves
Szintek száma: Földszintes
Egész szobák: 5

Egyéb jellemzők

  • Csatorna
  • Garázs
  • Pince
  • Terasz

Térkép


Így keressen budapesti ingatlant négy egyszerű lépésben. Csupán 2 perc, kötelezettségek nélkül!

Szűkítse a budapesti ingatlanok
listáját
Válassza ki a megfelelő
budapesti ingatlant
Írjon a hirdetőnek
Várjon a visszahívásra