Eladó családi ház Budapest XXIII. ker 130 000 000 Ft

Leírás


Eladó IKERVILLÁK Soroksár-Apostolhegyen, csendes, kis forgalmú utcában.

 

Az ingatlanok teljesen ÚJ ÉPÍTÉSŰek, magas színvonalon felszereltek.

A  telken három épület  áll egymás mellett, melyből az első várhatóan még  2025 végén kulcsrakész lesz, jelenleg körülbelül 30%-os készültségű.

 

A házak korszerű technológiával, hőszivattyús padlófűtéssel és mennyezet hűtéssel lettek kialakítva.

Az okosotthon rendszer előkészített, a teljes elektromos hálózat központilag szervezett.

Az építés minőségi anyagokat felhasználva történt, gondosan megtervezett, igényes kialakítású.

A szerkezet ytong, födém beton, 20 cm szigetelés, Rehau nyílászárók.

 

Az ár tartalmazza az alábbi extrákat:

Hővisszanyerős lakásszellőztető rendszer, páramentesítő funkcióval és HEPA szűrővel.

Elektromos redőnyök.

Beépített KONYHABÚTOR a tervek szerint.

 

További extrák már előkészítve, bekábelezve, felár ellenében kivitelezhetőek:

Automatikus és okos otthon vezérlés távolról kezelhető funkciókkal.

Jakuzzi.

Napelem rendszer.

Elektromos autó töltőállomás.

 

A környékről:

A Kis-Duna közelsége ideális lehetőséget kínál szabadidős tevékenységekre,  evezésre, futásra vagy akár sétára.

 

Az ingatlan a jó közlekedés mellett  könnyen megközelíthető, iskola, óvoda a közelben.

Bevásárlási lehetőségek széles skálája szintén nagyon közel.

 

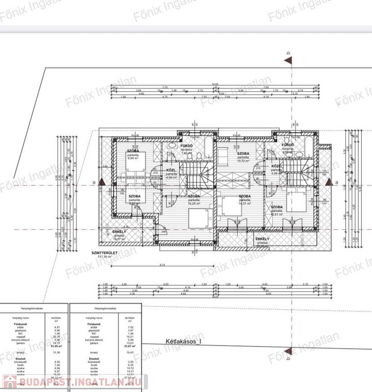
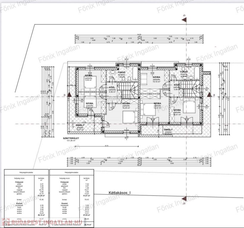
Bal oldali 2. lakás  elosztása

 

Belső kétszintes

100 m2-es + 19 m2-es terasszal + 20 m2-es erkéllyel,

Garázs 14 m2+ kocsibeálló,

saját kert a házon felül: 120 m2, 14 m2-es garázs + kocsibeálló,

nappali , 3 szoba, egy fürdőszoba + 1 külön wc,  gépészeti helyiség



Ilyen luxus minőséget, ilyen áron nem kap máshol!

 

Remélem felkeltettem az érdeklődését, várom megtisztelő hívását!





 

Családi ház részletei

Ár: 130 000 000 Ft
Méret: 118 négyzetméter
Azonosító: 11554641
Irodai azonosító: 705100329
Telek: 120 négyzetméter
Ingatlan állapota: Kitűnő
Jelleg: ikerház
Építőanyag: Tégla
Komfort fokozat: Luxus komfort
Kor: Új építésű
Egész szobák: 4

Így keressen budapesti ingatlant négy egyszerű lépésben. Csupán 2 perc, kötelezettségek nélkül!

Szűkítse a budapesti ingatlanok
listáját
Válassza ki a megfelelő
budapesti ingatlant
Írjon a hirdetőnek
Várjon a visszahívásra