Eladó családi ház Budapest XXIII. ker 107 000 000 Ft

Leírás


Első lakásvásárlóknak is FIX 3%-kos kamatozással!



Budapest XXIII kerületében újonnan épülő , IKERHÁZ eladó, igényes, számtalan referenciával rendelkező kivitelezőtől.



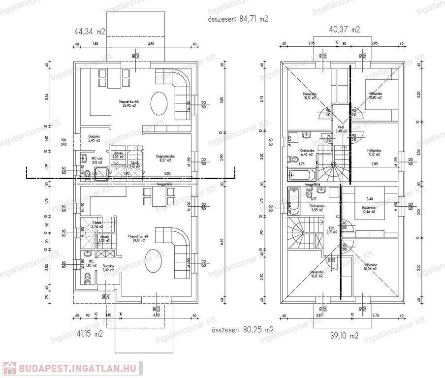
Az ingatlan hátsó lakásának alapterülete 88 m2+5 m2 erkély telekméret 350 m2 107 M. Ft.

Az ingatlan első lakása 86 m² alapterületű + 5 m² erkéllyel rendelkezik, a hozzá tartozó telekméret

205 m².

Irányár: 104 M Ft helyett most AKCIÓSAN 99,99 M Ft! Az akciós ár 2026.05.30-ig megkötött vásárlási szándéknyilatkozat vagy adásvételi szerződés esetén érvényes.





Főbb jellemzői:



-Amerikai konyhás nappali + 4 hálószobás kialakítás

-fürdőszoba WC-vel + külön WC, mosdó

Műszaki adatok:

-30 N+F Porotherm tégla 10 cm homlokzati hőszigetelés

- 20 cm födémszigetelés

- Ytong válaszfal

- Bramac cserép

- 6 000 Ft. m2 hideg/meleg burkolat válaszható

- választható szaniterek

- HŐSSZIVATTYÚS fűtésrendszer, padlófűtés hőleadással



Igényes, gondos kivitelezés, rengeteg referenciával!

Érdemes megtekinteni! Ne maradjon le róla!



Az ingatlan céges kivitelezésben került megépítésre.





Átadási időpont: 2026.nyár vége

Éljen a 3%-kos fix kamatozású első lakásvásárlói hitellel, CSOK , CSOK PLUSZ szabályok adta lehetőségeivel. Hitel ügyintézéssel kapcsolatosan is rendelkezésére állunk.

Budapest központja több irányból is megközelíthető és kb. 15 perc alatt elérhető.

A Hévmegálló és üzletek közelben találhatóak.

Az irodánk teljes körű ügyintézéssel áll a vevők rendelkezésére! Az adásvételi szerződés megkötéséhez igény szerint megbízható ügyvédi közreműködést biztosítunk és Bank semleges hitel ügyintézőnk is igény szerint rendelkezésére áll.



Hívjon bizalommal akár hétvégén is!

Családi ház részletei

Ár: 107 000 000 Ft
Méret: 88 négyzetméter
Azonosító: 11562685
Irodai azonosító: 107003694
Telek: 350 négyzetméter
Ingatlan állapota: Kitűnő
Jelleg: ikerház
Építőanyag: Tégla
Komfort fokozat: Összkomfort
Kor: Új építésű
Egész szobák: 5

Így keressen budapesti ingatlant négy egyszerű lépésben. Csupán 2 perc, kötelezettségek nélkül!

Szűkítse a budapesti ingatlanok
listáját
Válassza ki a megfelelő
budapesti ingatlant
Írjon a hirdetőnek
Várjon a visszahívásra