Eladó családi ház Budapest XXII. ker 249 900 000 Ft

Leírás

CSAK AZ IRODÁNK KÍNÁLATÁBAN EGY SZUPER AJÁNLAT!
XXII. kerületben, Budafok-felsőváros exkluzív részén, nagyon csendes, szép kertvárosi utcában, eladásra kínálok egy nagyon hangulatos 3 szintes családi házat, gyönyörűen parkosított 747 m², önálló helyrajzi számmal rendelkező telken.

Az ingatlan építési időszaka: 1999-2002, átgondolt tervezéssel és minőségi anyagok felhasználásával került kivitelezésre, nagyon gondos első tulajdonosoktól kínáljuk megvételre.
A ház kívül-belül jó állapotú, folyamatosan karbantartott.

Hasznos nettó lakóterülete ( földszint 92,7 m² + tetőtér 88,4 m² ) összesen: 181,1 m².
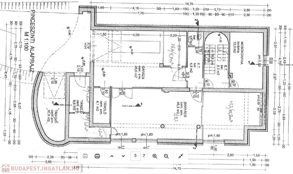
Pinceszint (félszuterén) alapterülete: + 110,6 m²
Teljes alapterület a három szinten: 291,7 m² + beépített télikert.
A jelenlegi belső kialakítása és elrendezése alapján a következőket fontos kiemelni:
-a földszinten a nappaliból leválasztásra került egy dolgozószoba, amely az előtérből külön ajtón keresztül megközelíthető, igény szerint az eredeti állapot könnyen visszaalakítható, így a nappali alapterülete megnövelhető
-a pinceszinten a garázs mögött található egy tároló, de a válaszfal kivétele révén a garázs alapterülete szintén nagyobbítható
-a tetőtérben a válaszfalak gipszkarton falazatúak, így a fenti a terek könnyen változtathatóak, pl. a képeken látható fenti galérián plusz szoba is kialakítható.

Méretek, tájolás, elrendezés az alaprajzokon látható.

Belmagasság: alagsor 2,5 méter; földszint 3 méter; tetőtér 3,7 méter; padlás ( deszkázott/járható-pakolható ) gerincmagasság 1,5 méter.

MŰSZAKI LEÍRÁS ( részlet ):
-Teherhordó falak: 30 cm Porotherm, vasbeton pillérekkel
-Födémek: monolit vasbeton
-2 db Schiedel rendszerű kémény (SIH 20; SIH 20L)
-Külső nyílászárók: fa, 2 rétegű thermo üvegezéssel
-Napelem rendszer: 16 db Risen Energy 405W; 6,48 kWp teljesítménnyel, Solplanet ASW-6000T inverter
-Fűtés és melegvíz: télen Radson gázkazán ( fűtés+melegvíz ), nyáron átkapcsolható Aquastic AQ Flat F80 villanybojlerre
-Hőleadás: mind a három szinten külön szabályozható termosztáttal, radiátorokkal és a hideg padlóburkolatos helyiségekben padlófűtéssel, illetve a földszinten cserépkályha, valamint összesen 3 db inverteres hűtő/fűtő klímával.
-Áram: 3 x 16 Amper

Éves energiaköltség ( 2024-ben földgáz + elektromos áram ): 308.568.-Ft ( 25.714.-Ft/hó ) + tűzifa tetszőleges mennyiségben.

EGYÉB FELSZERELÉS ÉS INFORMÁCIÓK: távirányítható motoros kapu és garázskapu, napelemmel fedett kerti kocsibeálló, többfunkciós kemence, csapadék gyűjtő csőhálózat + 13 m3-es ciszternával, amely befogadja az épületre jutó teljes csapadékmennyiséget, automata öntözőrendszer ( ciszternáról és hálózatról egyaránt működtethető ), locsoló vízmérő a kerti csapokhoz és az öntözéshez, kapu mellett szerelőakna, kerti fatároló 12 m², alagsorban ipari teljesítményű elszívó rendszer + sűrített levegőhöz használható csőrendszer, alagsorban és földszinten is élesíthető riasztórendszer illetve megfigyelő kamerarendszer, optikai kábeles csatlakozás a telek előtti oszlophoz.

A déli terasz alatt igény szerint kialakítható további 10,8 m²-es tároló, vagy kocsibeálló, ami jelenleg Ytong fallal lezárt.

NÖVÉNYZET: termő gyümölcsfák ( dió, alma, kajszi, szilva, pergolára futtatott szőlő ), 3 db fenyőfa, 2 db nyírfa, örökzöld sövények.

KÖZLEKEDÉS: autóbusz gyalogosan 5 percre ( 58; 158; 141; 250 ), 6-os és 7-es főút autóval 5-6 perc, M0-ás autóút 8 perc.

INFRASTRUKTÚRA: ABC 4 percre gyalog, orvosi rendelő és gyógyszertár 6 percre gyalog, Aldi-Campona 4-5 perc autóval, iskola-óvoda, játszótér szintén pár perces távolságra.

Az ingatlan per és tehermentes, birtokbaadás az adásvétel napjától számított maximum 90 nap.

Az ingatlan részletes ismertetése és bemutatása, előre egyeztetett időpontban lehetséges, amelyet nagyon rugalmasan kezelünk, akár HÉTVÉGÉN is.
További kérdéseivel kapcsolatban várom a jelentkezését.
Amennyiben Önnek a vásárláshoz szüksége lenne hitelre, babaváró kölcsönre, lakástakarékra, stb., kezdeményezheti a kapcsolatfelvételt bankfüggetlen hitelügyintézőinkkel, teljesen DÍJMENTESEN.
Közel 25 év szakmai tapasztalattal rendelkezem, eladó vagy kiadó ingatlana értékesítése vagy bérbeadása esetén, készséggel állok az Ön rendelkezésére is, keressen bizalommal.

Családi ház részletei

Ár: 249 900 000 Ft
Méret: 200 négyzetméter
Azonosító: 11507485
Irodai azonosító: 380445
Cím: Budafok-felsőváros,exkluzív részen!
Telek: 747 négyzetméter
Ingatlan állapota:
Jelleg: családi ház
Építőanyag: Tégla
Fűtés jellege: Cirkó
Fűtés módja: Gáz
Komfort fokozat: Dupla komfort
Kor: 21-50 éves
Szintek száma: 2 szint
Egész szobák: 6

Egyéb jellemzők

  • Csatorna
  • Garázs
  • Pince
  • Terasz

Térkép


Így keressen budapesti ingatlant négy egyszerű lépésben. Csupán 2 perc, kötelezettségek nélkül!

Szűkítse a budapesti ingatlanok
listáját
Válassza ki a megfelelő
budapesti ingatlant
Írjon a hirdetőnek
Várjon a visszahívásra