Eladó családi ház Budapest XXII. ker 184 900 000 Ft

Leírás

CSAK NÁLUNK – ÚJ ÉPÍTÉSŰ, KÉTLAKÁSOS IKERHÁZ ELADÓ A XXII. KERÜLETBEN

Budapest XXII. kerületében, a Nagytétényi út közelében kínáljuk megvételre ezt a modern, földszintes, kétlakásos ikerházat, nyugodt, kertvárosias környezetben, kiváló infrastruktúrával. Ideális választás családosoknak, családalapítás előtt állóknak, vagy mindazoknak akik tágas, hosszú távra tervezhető otthont keresnek.

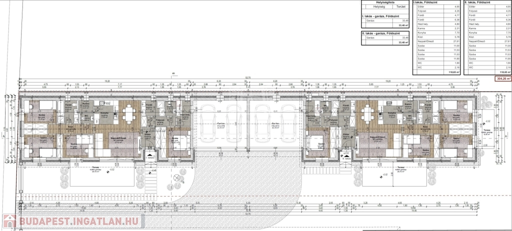
Az összesen 1203 m²-es telken két, külön bejáratú lakás kerül kialakításra, külön telekrésszel.

Az építkezés tervezetten 2026 márciusában kezdődik, így jelen szakaszban még lehetőség van a belső elrendezés finomhangolására, illetve egyedi extrák beépítésére.

Fontos kiemelni, hogy az épület külső megjelenése a helyi építési szabályozás szerint kerül kialakításra, így a homlokzati arculat nem módosítható. Ez azonban kifejezetten előnyt jelent: Nagytétény ezen részén egységes, rendezett utcakép és harmonikus építészeti környezet alakul ki, amely hosszú távon is megőrzi a környék értékét és esztétikai minőségét.

A ház főbb műszaki jellemzői:
– Földszintes kialakítás, amely újépítésű ingatlanoknál ritkaság a XXII. kerületben
– Nyeregtetős, cserépfedéssel
– E-gerendás vasbeton födém, felbetonnal
– 20 cm homlokzati hőszigetelés
– Hőszigetelt műanyag nyílászárók
– Lakásonként 33,48 m²-es dupla garázs (akár 2 autónak)

A két lakás a garázsoknál kapcsolódik egymáshoz, így a lakóterek nem közvetlenül érintkeznek, ami nagyobb nyugalmat és privát szférát biztosít a mindennapokban.

LAKÁS – 184,9 MILLIÓ FT

Teljes alapterület garázzsal: 152 m²
Nettó lakótér: 118 m²

A vételár a 152 m²-es, garázzsal együtt számított bruttó alapterületre vetítve megközelítőleg 1,2 millió Ft/m²-es árat jelent.
A nettó, 118 m²-es lakótérre vetítve ez kb. 1,5 millió Ft/m², amely ebben a kategóriában stabil, átgondolt és hosszú távon is értékálló befektetést jelent.

Elosztás:
– tágas előtér és folyosók
– 4 külön nyíló tágas hálószoba
– Amerikai konyhás nappali étkezővel
– kamra
– 2 fürdőszoba
– 3 WC
– Háztartási helyiség
– Terasz
– Saját kertkapcsolat

LAKÁS – 199 MILLIÓ FT

Teljes alapterület garázzsal: 152,13 m²
Nettó lakótér: 118,65 m²

Az elrendezés megegyezik az 1-es lakással, azonban a 2. lakás kiemelt előnye a nagyobb, hátsó, privát telekrész, amely még intimebb kertkapcsolatot és nagyobb szabadságot biztosít családi programokhoz, pihenéshez vagy akár további kerti fejlesztésekhez.

Műszaki tartalom – választható belső elemek:
– Hidegburkolat: bruttó 10.000 Ft / m² keretösszegig
– Melegburkolat (parketta): bruttó 8.000 Ft / m² keretösszegig
– Beltéri ajtók: bruttó 60.000 Ft / db keretösszegig

A megadott keretösszegeken belül a burkolatok és ajtók szabadon választhatók, magasabb kategória igény esetén értékkülönbözet megfizetése mellett.

Környék és infrastruktúra

A XXII. kerület egyik kedvelt, családi házas övezetében található ingatlan kiváló közlekedési kapcsolatokkal rendelkezik. A közelben bevásárlási lehetőségek, óvodák, iskolák, egészségügyi intézmények, valamint tömegközlekedési lehetőségek is elérhetők. Az M0-s gyorsan megközelíthető, így az autóval közlekedők számára is ideális választás.

Megbízható kivitelező

Az építtető több éve aktívan jelen van az ingatlanfejlesztési szektorban. Munkáit a korszerű műszaki megoldások, a minőségi anyaghasználat jellemzi, amely stabil hátteret és biztonságot jelent a leendő tulajdonosok számára.

Ez az ingatlan kényelmes, átgondolt elrendezésével, nagy tereivel és kedvező elhelyezkedésével stabil, értékálló családi otthont kínál.

A hirdetésben szereplő képek látványtervek, a valóságban megvalósuló ingatlan kisebb eltéréseket mutathat.

Amennyiben felkeltette érdeklődését, várom hívását vagy üzenetét, és örömmel állok rendelkezésére további információval, illetve személyes megtekintéssel kapcsolatban. Megtekintés előre egyeztetett időpontban.

------------------------------------
Díjmentes, bankfüggetlen hiteltanácsadással támogatjuk ügyfeleinket a számukra legelőnyösebb finanszírozási döntések meghozatalában.

A hirdetésben szereplő információk tájékoztató jellegűek. A tévedés és az árváltoztatás jogát fenntartjuk. Az esetleges elírásokért és technikai hibákért felelősséget nem vállalunk.

Családi ház részletei

Ár: 184 900 000 Ft
Méret: 119 négyzetméter
Azonosító: 11602493
Irodai azonosító: 393003
Cím: Ikerház mindkét fele elérhető még
Telek: 400 négyzetméter
Ingatlan állapota: Kitűnő
Jelleg: ikerház
Építőanyag: Tégla
Fűtés jellege: Geotermikus
Fűtés módja: Hőszivattyú
Komfort fokozat: Dupla komfort
Kor: Új építésű
Szintek száma: Földszintes
Egész szobák: 5

Egyéb jellemzők

  • Csatorna
  • Garázs
  • Pince
  • Terasz

Térkép


Így keressen budapesti ingatlant négy egyszerű lépésben. Csupán 2 perc, kötelezettségek nélkül!

Szűkítse a budapesti ingatlanok
listáját
Válassza ki a megfelelő
budapesti ingatlant
Írjon a hirdetőnek
Várjon a visszahívásra