Eladó családi ház Budapest XXII. ker 141 900 000 Ft

Leírás

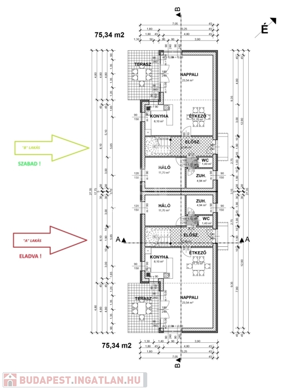
MÁR CSAK 1 LAKÁS SZABAD! XXII. kerületben Nagytétény Óhegy kertvárosi környezetben újszerű ingatlanok szomszédságában, nettó hasznos 124 m² lakóterülettel rendelkező + TERASZOK (földszinten kb. 15 m² ; emeleten kb. 25 m² tetőterasz) szinte azonnal költözhető ÚJ ÉPÍTÉSŰ ikerházat kínálunk eladásra, megbízható sok éves építőipari tapasztalattal és referenciákkal rendelkező kivitelezőtől.

Az ikerházak önálló helyrajzi számmal és mérőórákkal, használatbavételi engedéllyel valamint társasház alapító okirattal kerülnek átadásra !!!

A ház felépítése: földszint + teljes értékű emelet, az eladásra kínált ingatlan a hátsó ikerházfél azaz a : " B LAKÁS" !

MÉRETEK, ELRENDEZÉS, TÁJOLÁS, TELEKMEGOSZTÁS AZ ALAPRAJZOKON LÁTHATÓ!

Tájolása: D-NY-i
Tervezett átadási idő: szerződéskötéstől 2-3 hét.

Műszaki tartalom (részlet):
- 10kW hőszivattyúval + "H" tarifa, padló és mennyezet hűtés/fűtés rendszerrel kerül átadásra
- a lakáshoz napelem, riasztó, kamera, elektromos redőny előkészítése kialakításra került
- a gépkocsi beálló elektromos mozgatású kapun keresztül közelíthető meg
- Bakonytherm N+F 30 cm vastag kerámia kézi falazóblokk, Porotherm N+F 10 cm-es kerámia válaszfalak acélhuzal betéttel
- monolit VB födém, statikai terv szerint mennyezethűtéssel
- a hőszigetelések: koszorúk előtt 5,0 cm XPS habosított szigetelőlemez kerül elhelyezésre, a zárófödémre 30 cm vastag ásványszálas szigetelés építendő be, a homlokzati hőszigetelő rendszer lefestve EPS 80 15 cm hőszigetelő lemezekkel készül, melyek teljesítik az érvényes tűzvédelmi előírásokat;
A padozatba pedig földszinten min. 10 cm, emeleten 7 cm lépésálló Austrotherm ATN-100 építendő be, Rockwool step rock ásványszálas szigetelés 4 cm-ben a többi 3 cm EPS.
- KÖMMERLING76AD, 76 mm-es nyílászárók minden tartományban erős, horganyzott acélmerevítés, Roto NX német vasalatrendszer, 44 mm-es háromrétegű (4 mm Low-e/16 mm/4 float/16 mm/4 mm Low-e) Ug=0,6 W/m2K értékű fokozott hőszigetelésű üveggel

A lakások kulcsrakészen kerülnek átadásra de
konyhabútort és a gépeket, burkolatokat, csapokat - szanitereket, valamint a beltéri ajtókat a lakás vételára nem tartalmazza.
Viszont a vételár minden szükséges munkadíjat és rezsi anyagot tartalmaz !

Az ikerházhoz 2 db. kocsibeállási lehetőség tartozik ( amelynek területe összesen 36 m² ) ez kizárólagos használatban, ( lásd telekmegosztási rajz ).

Az eladásra kínált ikerházhoz tartozó SAJÁT kizárólagos használatú telekrész pedig 452 m².

Az ingatlan ára: 141,9 MFt./db. ( az 5%-os Áfát tartalmazza )

Az ingatlan részletes ismertetése és bemutatása előre egyeztetett időpontban lehetséges, melyet nagyon rugalmasan kezelünk, akár HÉTVÉGÉN is.
További kérdéseivel kapcsolatban várom a jelentkezését.
Amennyiben Önnek a vásárláshoz szüksége lenne hitelre egyedi kedvezménnyel, CSOK PLUSZ-ra, állami támogatásokra, stb., kezdeményezheti a kapcsolatfelvételt bankfüggetlen hitelügyintézőinkkel, teljesen DÍJMENTESEN.
Közel 25 év szakmai tapasztalattal rendelkezem, eladó vagy kiadó ingatlana értékesítése vagy bérbeadása esetén, készséggel állok az Ön rendelkezésére is, keressen bizalommal.

Családi ház részletei

Ár: 141 900 000 Ft
Méret: 124 négyzetméter
Azonosító: 11568106
Irodai azonosító: 387806
Cím: Igényes kivitelezésű ÚJ IKERHÁZ !
Telek: 452 négyzetméter
Ingatlan állapota: Kitűnő
Jelleg: ikerház
Építőanyag: Tégla
Fűtés jellege: Geotermikus
Fűtés módja: Hőszivattyú
Komfort fokozat: Dupla komfort
Kor: Új építésű
Szintek száma: 1 szint
Egész szobák: 5

Egyéb jellemzők

  • Csatorna
  • Garázs
  • Pince
  • Terasz

Térkép


Így keressen budapesti ingatlant négy egyszerű lépésben. Csupán 2 perc, kötelezettségek nélkül!

Szűkítse a budapesti ingatlanok
listáját
Válassza ki a megfelelő
budapesti ingatlant
Írjon a hirdetőnek
Várjon a visszahívásra