Eladó családi ház Budapest XXII. ker 129 000 000 Ft

Leírás

BUDAFOK-FELSŐVÁROS LEGHANGULATOSABB UTCÁJÁBAN FÉLSZINTELTOLÁSOS, KÉTGENERÁCIÓS PANORÁMÁS CSALÁDIHÁZ ELADÓ.
A HÁZ:
Az 1989-ben masszív szerkezettel épült ház maximálisan kihasználja a lejtős telek adta lehetőségeket. A terephez igazított félszint eltolásos kialakításnak köszönhetően gyönyörű belső terekkel rendelkezik, és minden szint kertkapcsolatos.
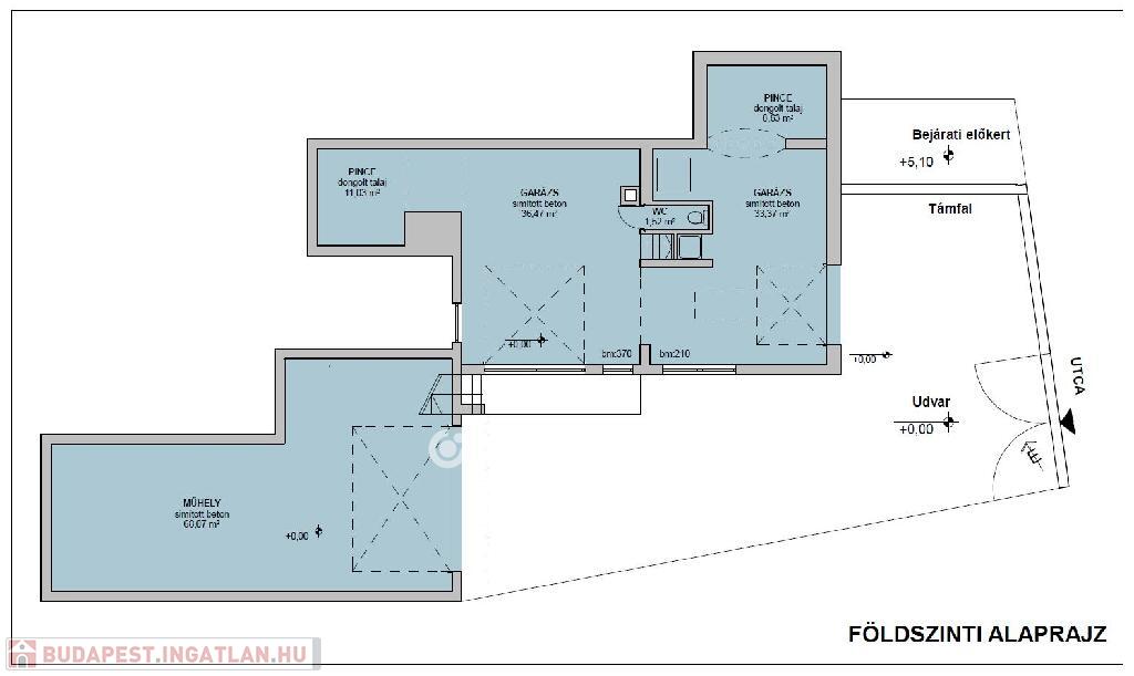
Jelenleg a földszinten szerelőaknás, nagy belmagasságú, többállásos garázs, és műhely található, a háztól teljesen független széles kapubejárattal, ezért vállalkozásra is alkalmas.
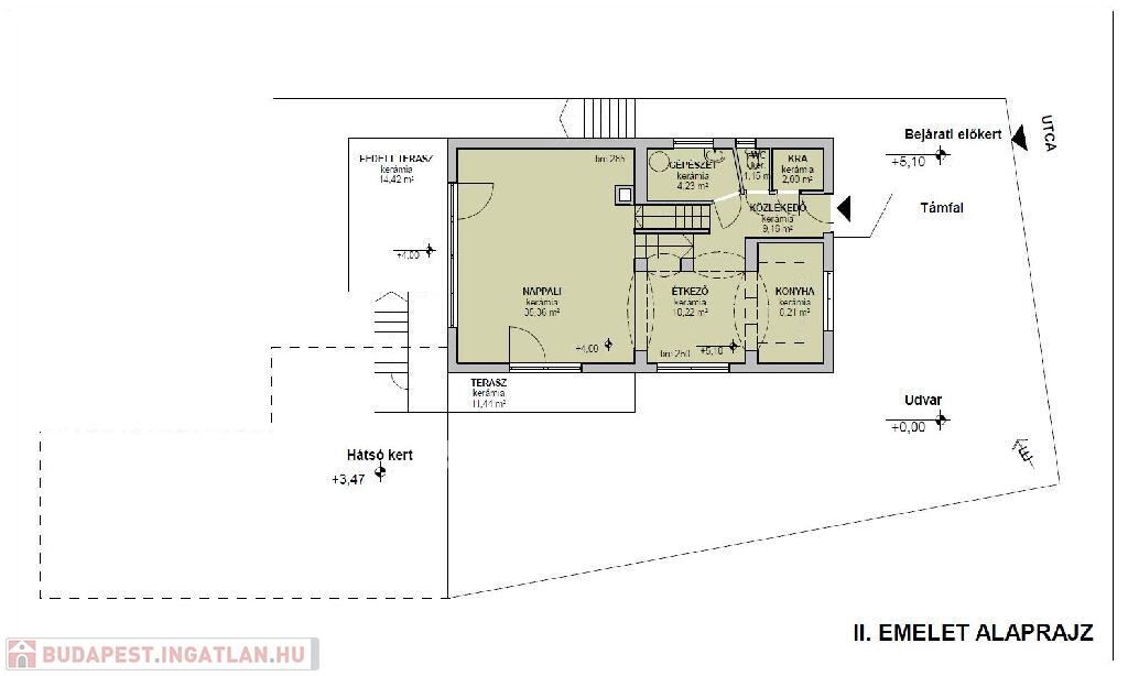
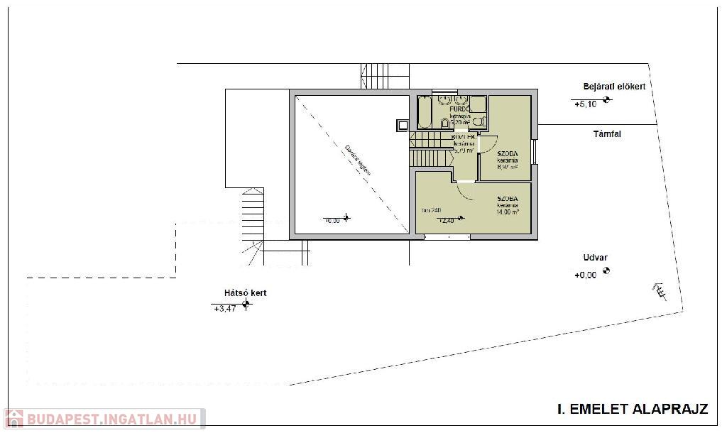
A felsőbb szinteken egy 4+2fél szobás lakást, és egy leválasztott, de összenyitható garzonlakást találunk, külső, egymástól független megközelítéssel.
Az épület műszakilag-statikailag kiváló állapotú, de az építés óta nagyobb felújítást nem végeztek rajta. Radiátorral kombinált padlófűtéssel rendelkezik, melyhez a fűtőközeget új gázkazán biztosítja.
A ház nagyon jó lehetőségeket rejt magában. Kialakítható benne 3 teljesértékű, független, kertkapcsolatos lakás Budafok legkedveltebb részén. Ezért befektetőknek, összeköltözőknek is ajánlom. (Az átalakítási javaslatról mellékelek alaprajzokat a képek között.)
KÖRNYÉK:
A kertvárosi, átmenő forgalomtól mentes csendes utcában megbújó ház ötszáz méteres körzetében, iskola, óvoda, bölcsőde, élelmiszerbolt, egészségügyi szolgálat, állatorvosi rendelő, gyógyszertár, sportpályák, parkok, BKK buszmegálló (8 nappali, 1 éjszakai járat) és a P+R parkolóval ellátott elővárosi vasútállomás található.
Az utcákban a parkolás ingyenes.
ÖVEZETI BESOROLÁS:
Lke-1/BF/5 Intenzív kertvárosias lakóterület Budafok területén
BIRTOKBAVÉTEL:
Az épület jelenleg lakatlan, rövid határidőn belül birtokba vehető.
Amennyiben az ingatlan felkeltette érdeklődését és szívesen megnézné, hívjon. Érdemes megtekinteni.
Az OTP Bank kedvezményes lakáshitelével támogatjuk vásárlását, egyedi kamatfeltételekkel és díjmentes ügyintézéssel.

Családi ház részletei

Ár: 129 000 000 Ft
Méret: 250 négyzetméter
Azonosító: 11434503
Irodai azonosító: M288482-4759633
Telek: 549 négyzetméter
Ingatlan állapota: Átlagos
Jelleg: családi ház
Építőanyag: Tégla
Fűtés jellege: Cirkó
Fűtés módja: Gáz
Komfort fokozat: Összkomfort
Kor: 21-50 éves
Szintek száma: 3 szint
Egész szobák: 4
Fél szobák: 3

Egyéb jellemzők

  • Garázs

Térkép


Így keressen budapesti ingatlant négy egyszerű lépésben. Csupán 2 perc, kötelezettségek nélkül!

Szűkítse a budapesti ingatlanok
listáját
Válassza ki a megfelelő
budapesti ingatlant
Írjon a hirdetőnek
Várjon a visszahívásra