Eladó családi ház Budapest XXII. ker 118 000 000 Ft

Leírás

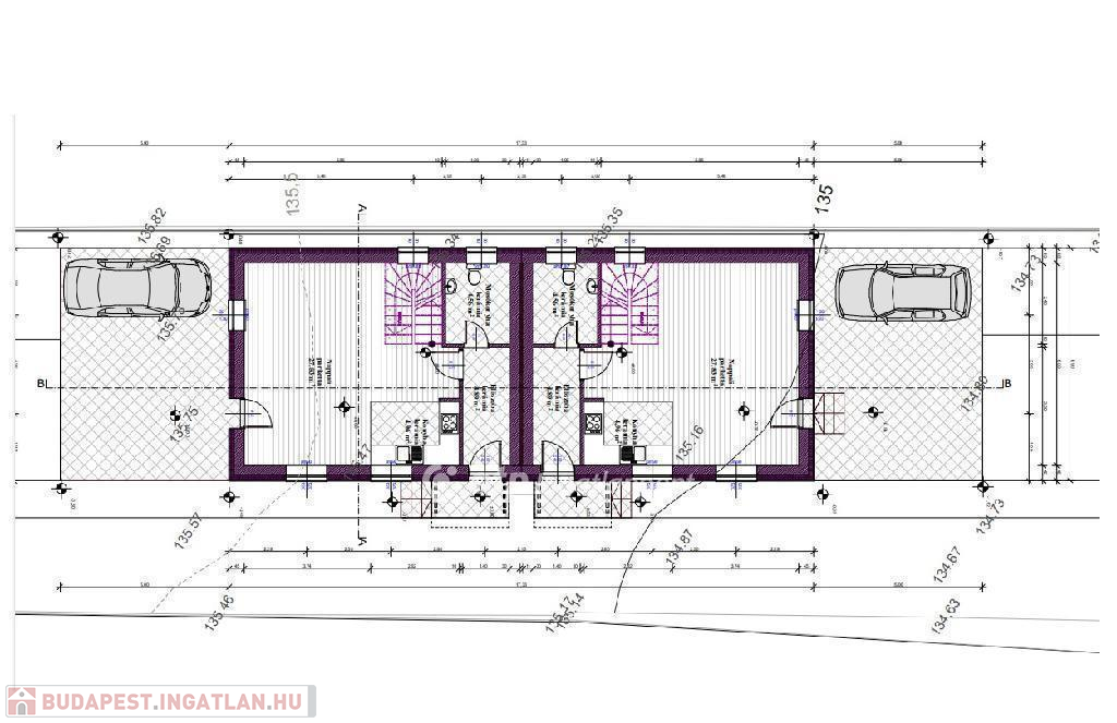
ELADÓ ÚJ ÉPÍTÉSŰ IKERHÁZ FÉL!

Budapest XXII. kerületében a Baross Gábor telepen kis forgalmú mellékutcában ELADÓ egy újonnan épülő ikerház. Jelen hirdetmény az első, utcafronti házfélre vonatkozik.

Várható átadás: 2025. december.

ALACSONY REZSIKÖLTSÉGEK! HŐSZIVATTYÚ + PADLÓFŰTÉS + KLÍMA + H TARIFA! 3 SZOBA + NAPPALI + 80M2 SAJÁT KERT! + murvázott gépkocsibeálló (1 autó).

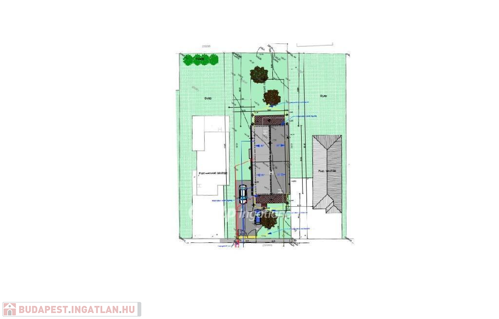
80 nm lakóterület +16 nm kerti terasz, a saját használatú kert 270 nm.

A két ikerház egy 538 m2-es telekre épül, társasházi alapító okirattal, saját helyrajzi számmal, elkerített kertrésszel és külön közműórákkal vehetik át az új tulajdonosok.

MŰSZAKI ADATOK: A ház szigetelt, vasbeton sávalapra épül, 30-as Leier tégla főfalakkal, 10-es tégla válaszfalakkal és E gerendás vasbeton födémmel. A homlokzatra 15 cm-es dryvit, a lábazatra 12 cm-es xps, az aljzatra 10 cm-es lépésálló és a födémre 30 cm-es kőzetgyapot szigetelés kerül. Fehér, műanyag, 3 rétegű, hő- és hangszigetelt nyílászárókat építenek be. A fűtésről egy takarékos hőszivattyú gondoskodik, padlófűtés hőleadással, a meleg víz ellátásért egy elektromos vízmelegítő felel. A ház komfortos hőmérsékletét 1 db inverteres, hűtő-fűtő klíma szolgáltatja. A hőszivattyúhoz és a klímákhoz a kedvezményes H tarifás villany elszámolás tartozik, ami a normál tarifás áram áránál sokkal kedvezőbb, 23 Ft/KW, ezért ez a ház a hőszivattyúnak, a H tarifának, a klímáknak és a vastag szigetelésnek köszönhetően nagy kedvező rezsiköltségekkel fenntartható.

A hideg és meleg burkolatok 7.000. Ft/m2, a beltéri ajtók 70.000. Ft/db árig választhatók felár nélkül, a szanitereket is Ön választhatja ki, illetve minden egyéb kérés megvalósítása megbeszélhető a rugalmas kivitelezővel.

CSOK és hitel képes. Az OTP Ingatlanpont egy ablakos kiszolgálással el is intézi Önnek.
Hívjon bátran bemutatási időpontot egyeztetni!

Családi ház részletei

Ár: 118 000 000 Ft
Méret: 80 négyzetméter
Azonosító: 11548229
Irodai azonosító: M304831-4979495
Telek: 270 négyzetméter
Ingatlan állapota: Épülő
Jelleg: ikerház
Építőanyag: Tégla
Fűtés jellege: Villany
Fűtés módja: Hőszivattyú
Komfort fokozat: Összkomfort
Kor: Új építésű
Szintek száma: 1 szint
Egész szobák: 4

Egyéb jellemzők

  • Garázs

Térkép


Így keressen budapesti ingatlant négy egyszerű lépésben. Csupán 2 perc, kötelezettségek nélkül!

Szűkítse a budapesti ingatlanok
listáját
Válassza ki a megfelelő
budapesti ingatlant
Írjon a hirdetőnek
Várjon a visszahívásra