Eladó családi ház Budapest XX. ker 89 000 000 Ft

Leírás

Befektetők, kivitelezők, figyelmébe ajánljuk!

Pesterzsébet legjobb kertvárosi részén kínálunk megvételre egy nettó 209 nm alapterületű, kétszintes, téglából épült, önálló családi házat 291 nm-es telken. Az ingatlan teljes mértékben felújítandó!

A ház földszinti része a 60-as években épült, a felsőszintet a 80-as évek végén építették rá, jelenleg 2 külön bejáratú lakásra van osztva.

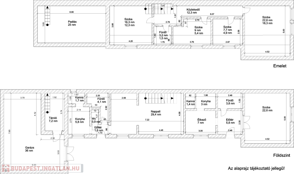
Beosztása:
földszint:
- előtér 5,8 nm,
- étkező 7 nm,
-konyha 3 nm,
-kamra 1,4 nm,
-fürdő 3,8 nm,
-szoba 22,6 nm,
-nappali 29,4 nm,
-fürdő 4,1 nm,
-előtér 1,5 nm,
- kamra 1,7 nm,
- konyha 5,8 nm,
- tároló 7,2 nm,
- garázs 36 nm,
-----------------------
129,4 nm.

Emelet:
-szoba 18,3 nm,
-szoba 4,9 nm,
-szoba 5,4 nm,
-közlekedő 12,3 nm,
-fürdő 1,5 nm,
-szoba 12,3 nm,
-helyiség 25 nm,
-------------------------
79,7 nm.

Amivel segítjük az Ön ingatlanvásárlását:
- ingyenes hitelügyintézés,
- jogi háttér,
- földhivatali ügyintézés,
- energetikai tanúsítvány,
- a vevő számára az ingatlanközvetítés ingyenes.

Irodánk 30 éves szakmai tapasztalattal áll ügyfelei rendelkezésére!

Várom szíves megkeresését!

Családi ház részletei

Ár: 89 000 000 Ft
Méret: 209 négyzetméter
Azonosító: 11599264
Irodai azonosító: 392613
Cím: Erzsébetfalva
Telek: 291 négyzetméter
Ingatlan állapota: Felújítandó
Jelleg: családi ház
Építőanyag: Tégla
Fűtés jellege: Cirkó
Fűtés módja: Gáz
Komfort fokozat: Összkomfort
Kor: 21-50 éves
Szintek száma: 1 szint
Egész szobák: 6

Egyéb jellemzők

  • Csatorna
  • Garázs
  • Pince
  • Terasz

Térkép


Így keressen budapesti ingatlant négy egyszerű lépésben. Csupán 2 perc, kötelezettségek nélkül!

Szűkítse a budapesti ingatlanok
listáját
Válassza ki a megfelelő
budapesti ingatlant
Írjon a hirdetőnek
Várjon a visszahívásra