Eladó családi ház Budapest XX. ker 56 900 000 Ft

Leírás

Eladó felújított családi ház Pesterzsébet – Szabótelepen

Eladásra kínálunk Pesterzsébet kedvelt, csendes Szabótelep részén egy felújított családi házat, amely ideális választás lehet fiatal párok első otthonának vagy kisebb család számára.
Az ingatlan jelenleg osztatlan közös tulajdon, azonban az önálló albetétesítés és az ügyvédi használati megosztás már folyamatban van, ami a későbbi tulajdonjogi rendezést biztosítja.

A felújítás során elvégzett munkák
A ház az elmúlt időszakban jelentős korszerűsítésen esett át:
* 10 cm-es külső hőszigetelés és nemesvakolat
* Új, háromrétegű műanyag nyílászárók
* Teljes villanyvezeték csere
* Új szennyvízcsövek
* Új tető cseréplemez fedéssel
* Új, modern linóleum burkolatok

Fűtés és közművek
Az otthon kellemes hőmérsékletéről gázcirkó fűtés, valamint egy felújított cserépkályha gondoskodik.
A melegvizet villanybojler biztosítja.

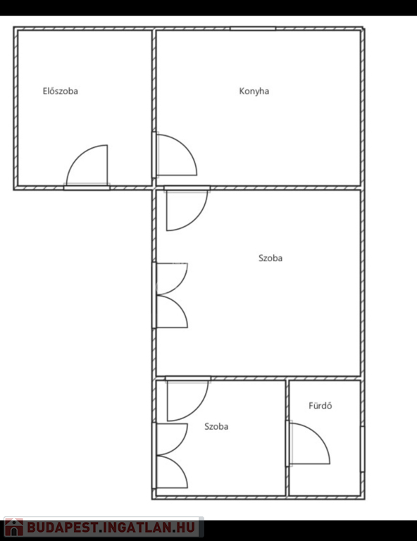
Helyiségek elrendezése
A ház praktikus elosztású:
* előszoba nagy beépített szekrénnyel
* konyha
* 3 m²-es spájz
* tágas első szoba
* abból nyíló második szoba
* fürdőkádas fürdőszoba
További lehetőségek
A fürdőszoba jelenleg felújításra vár, azonban a tulajdonos a vételár részeként a vevő igényei szerint felújítja.
Az új konyhabútor beépítése szintén megegyezés tárgyát képezheti.

Környék
A környék családi házas, a tömegközlekedés kiváló, így a város többi része is könnyen elérhető.

Ez az ingatlan kiváló lehetőség lehet azok számára, akik egy felújított, azonnal költözhető otthont keresnek, ugyanakkor még saját ízlésük szerint szeretnék alakítani egyes részleteit.

Az alaprajz tájékoztató jellegű!

Amennyiben hitelfelvétel is érdekelné, bankfüggetlen hitelközpontunk térítés mentes nyújt segítséget ügyfeleink részére!

További információért vagy megtekintésért keressen bizalommal!

Családi ház részletei

Ár: 56 900 000 Ft
Méret: 62 négyzetméter
Azonosító: 11605769
Irodai azonosító: 393595
Cím: Pesterzsébet-Szabótelep
Telek: 160 négyzetméter
Ingatlan állapota: Felújított
Jelleg: családi ház
Építőanyag: Tégla
Fűtés jellege: Cirkó
Fűtés módja: Gáz
Komfort fokozat: Összkomfort
Kor: 50 évesnél régebbi
Szintek száma: Földszintes
Egész szobák: 2

Egyéb jellemzők

  • Csatorna
  • Garázs
  • Pince
  • Terasz

Térkép


Így keressen budapesti ingatlant négy egyszerű lépésben. Csupán 2 perc, kötelezettségek nélkül!

Szűkítse a budapesti ingatlanok
listáját
Válassza ki a megfelelő
budapesti ingatlant
Írjon a hirdetőnek
Várjon a visszahívásra