Eladó családi ház Budapest XVIII. ker 95 000 000 Ft

Leírás

CasaNetWork Ingatlaniroda  kínálatában eladó ikerház Budapest XVIII. kerület kertvárosában. csendes átmenő forgalomtól mentes kis utcában.   Kertvárosias hangulatú, zöldövezeti, a Bókay kert - Gilice tér közelében fekvő kedves családi házat kínálok. 

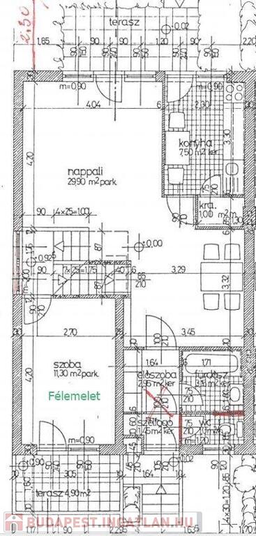
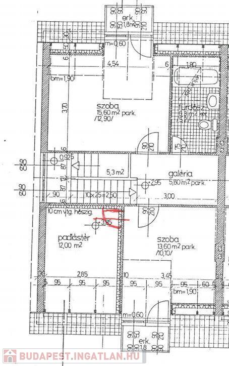
Az ingatlan kedves otthona lehet családnak, home office-ban dolgozóknak. A különnyíló szobák (3 db) elvonuláshoz, munka végzéshez ,a tágas (30 m2) nappali- étkező családi összejövetelekhez, a tágas, kertre néző  terasz kávézáshoz, relaxálni remek helyszín. A családi ház festés után, akár azonnal költözhető. 

A kert kizárólagos használatú, tökéletes méretű, grillezéshez, gyerekjátszónak, pihenésre, kikapcsolódásra. Jelenleg is gyönyörű örökzöldek ékesítik, még elfér néhány virág, akár pici konyhakert. 

Kisebb autó parkolhat a garázsban, ahonnan a lakótérbe belső lépcsőn felmehetünk. A kertben 2 db tároló tartozik a házhoz.(téglaépítésű, zárható)  

A lakóház műszaki jellemzői: 

  • az építés idejében a legkorszerűbb anyagokat használták fel, és nagy odafigyeléssel  karbantartotta a tulajdonos
  • a szinteltolások izgalmassá teszik a helyiségek elosztását 
  • téglafalazatú épület, tetejét betoncserép fedi, SOFA  nyílászárók kerültek beépítésre
  • egy db hűtő-fűtő klíma van, a fűtést kondenzációs gázkazán biztosítja
  • riasztóval ellátott az épület
  • az áramvezetékek rézbőlkészültek, 1 x 25A ellátás 

Az ingatlan társasházi alapító okirattal rendelkezik, jogilag rendezett, hitellel megvásárolható, és nagyon rövid idő alatt birtokba vehető

A környék ellátottsága kiváló; iskolák, bevásárlási lehetőség, Lőrinci piac, Kormányablak mind gyorsan elérhetőek.  Az Üllői úton elérhető tömegközlekedési pontok a Belváros és a repülőtér irányába is jó megoldást nyújtanak. 

Ingyenes hitel tanácsadással, ügyvédi kapcsolattal és rugalmas időbeosztással állunk kedves ügyfeleink rendelkezésére! CASANETWORK - Ingatlanban otthon vagyunk

Családi ház részletei

Ár: 95 000 000 Ft
Méret: 119 négyzetméter
Azonosító: 11565316
Irodai azonosító: 166401892
Telek: 340 négyzetméter
Ingatlan állapota:
Jelleg: ikerház
Építőanyag: Tégla
Fűtés jellege: Cirkó
Komfort fokozat: Összkomfort
Bútorozott: Nem bútorozott
Egész szobák: 4

Így keressen budapesti ingatlant négy egyszerű lépésben. Csupán 2 perc, kötelezettségek nélkül!

Szűkítse a budapesti ingatlanok
listáját
Válassza ki a megfelelő
budapesti ingatlant
Írjon a hirdetőnek
Várjon a visszahívásra