Eladó családi ház Budapest XVIII. ker 65 000 000 Ft

Leírás

Tágas telek, masszív tégla ház, beépített terasz és melléképület – kivételes lehetőség csendes, rendezett mellékutcában!

Eladásra kínálunk egy szerkezetileg stabil, tégla építésű, jó tetős családi házat, Budapest egyik kiváló lokációjú, ugyanakkor rendkívül csendes és rendezett mellékutcájában. A gondosan karbantartott környék nyugalmat, a közeli infrastruktúra pedig kényelmet biztosít a mindennapokban.

A telek 531 m², Vi-2/AT építési övezetbe tartozik, ahol a 35%-os beépíthetőség akár 185,85 m² új épület vagy jelentős bővítés megvalósítását teszi lehetővé. Az előkert 5,15 m, a hátsókert 12 m, az oldalkertek 3–3 m szélességűek, a kötelező zöldfelület minimum 50%. Lakásonként előírt 25 m² garázs és 4 m² szerszámtároló is kialakítható.

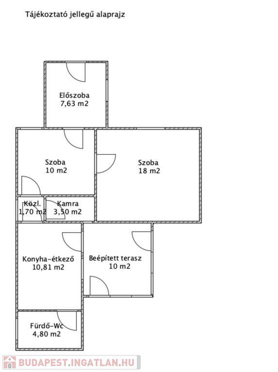
A meglévő épület 56,77 m² lakóteret kínál, előszoba, 2 szoba, konyha, kamra, fürdő-WC, közlekedő, könnyen személyre szabható. A házhoz kapcsolódik egy 12 m²-es beépített terasz, amely egész évben használható plusz funkcionális térként. Az épület része továbbá egy 23 m²-es, három helyiségből álló egybeépített toldalék, amely ideális tároló-, műhely- vagy háztartási helyiség-rendszer. A telken önálló 15 m²-es könnyűszerkezetes garázs is található.

Az ingatlan teljesen kiürített, így azonnal birtokba vehető, ami hatalmas előny a gyorsan költözni vagy felújítást kezdeni kívánók számára. A fűtést gázkazán biztosítja radiátoros hőleadókkal.

Ez az ingatlan rendkívüli lehetőség mindazok számára, akik egy stabil alapokkal rendelkező házat keresnek, nagy telekkel, bővítési potenciállal és remek elhelyezkedéssel.
(További képekért és információkért kérem hívjon!)

Családi ház részletei

Ár: 65 000 000 Ft
Méret: 57 négyzetméter
Azonosító: 11584724
Irodai azonosító: 630696
Telek: 531 négyzetméter
Ingatlan állapota: Átlagos
Jelleg: családi ház
Építőanyag: Tégla
Fűtés jellege: Cirkó
Egész szobák: 2

Egyéb jellemzők

  • Beépíthető tetőtér
  • Csatorna
  • Garázs
  • Melléképület
  • Pince
  • Terasz

Így keressen budapesti ingatlant négy egyszerű lépésben. Csupán 2 perc, kötelezettségek nélkül!

Szűkítse a budapesti ingatlanok
listáját
Válassza ki a megfelelő
budapesti ingatlant
Írjon a hirdetőnek
Várjon a visszahívásra