Eladó családi ház Budapest XVIII. ker 159 900 000 Ft

Leírás

Budapest XVIII. kerület, Almáskert – Új építésű, földszintes családi ház eladó!

Csendes mellékutcában, széles telekre tervezett családi házak közül most a hátsó, önálló ház eladó!
A telek kialakítása különleges: bal oldalán egy saját, leválasztott úton (4.5x70m) közelíthető meg, amelyről elöl egy ikerház két lakása nyílik, az út végén pedig a teljesen különálló, önálló családi ház található, nagyobb kerttel és még több intimitással.

(Még választhat: az első vagy a középső ikerfél, illetve a különálló ház is rendelkezésre áll!)

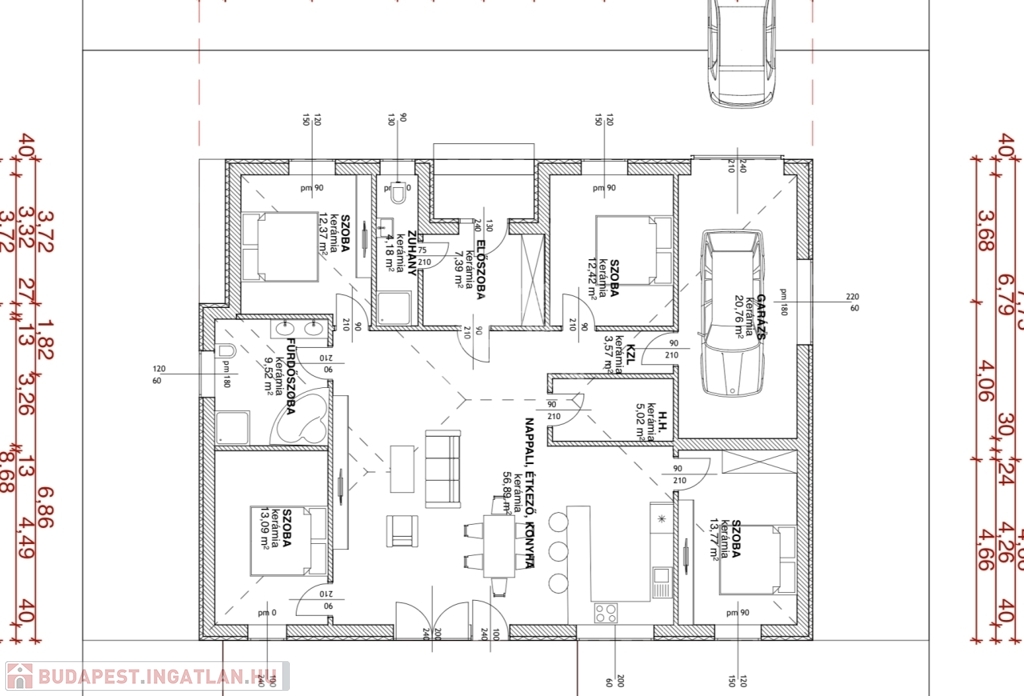
Az ingatlan 167m² hasznos alapterületű, modern, földszintes kialakítással: amerikai konyhás nappali, 4 hálószoba, 2 fürdőszoba, háztartási helyiség, terasz és saját, 660 m²-es kert tartozik hozzá.

Helyiségek:
• Szoba: 12,37 m²
• Szoba: 13,09 m²
• Szoba: 12,42 m²
• Szoba: 13,77 m²
• Konyha–étkező–nappali: 57 m²
• Kádas fürdő: 9,52 m²
• Zuhanyzós fürdő: 4,2 m²
• Háztartási helyiség: 5 m²
• Előszoba: 7,39 m²
• Garázs: 20,76 m²

Műszaki tartalom (részlet):
• 30-as Leier falazat, 10 cm grafitos szigeteléssel, lábazat 15 cm XPS szigeteléssel
• Válaszfalak: 10 cm-es Leier tégla
• Födém: 20 cm kőzetgyapot szigeteléssel
• Hőszivattyú + padlófűtés az egész házban
• 3 rétegű külső nyílászárók
• Elektromos kapu, napelem-előkészítés, komplett kamerarendszer riasztóval

Extrák:
• Választható: nappaliba 3,5 kW klíma, vagy kiállás minden szobába
• Melegburkolat: 5.000 Ft/m² (filc alátéttel, szegéllyel)
• Hidegburkolat: 5.000 Ft/m² (fugával, váltókkal)
• Beltéri ajtók, szaniterek választhatók készültségi foktól függően
• Plusz extrák és egyedi igények egyeztetés alapján kérhetők

A kivitelezőről:
Megbízható, tapasztalt cég, számos referenciamunkával a környéken, amelyek személyesen is megtekinthetők. A minőségi kivitelezés és a korrekt együttműködés garantált.

Jogilag: osztatlan közös, ügyvédi megosztással.
Támogatások: az ingatlan az összes jelenleg futó támogatásra jogosult.
Finanszírozás: 30% önerővel lefoglalható.
Átadás: várhatóan 2026. III. negyedév.

Ügyvédi háttér és független hitelszakértő biztosított!
Hívjon bizalommal a hét bármelyik napján további információért!

Családi ház részletei

Ár: 159 900 000 Ft
Méret: 167 négyzetméter
Azonosító: 11568330
Irodai azonosító: 387746
Cím: Kerékvágás út
Telek: 660 négyzetméter
Ingatlan állapota: Kitűnő
Jelleg: családi ház
Építőanyag: Tégla
Fűtés jellege: Geotermikus
Fűtés módja: Hőszivattyú
Komfort fokozat: Összkomfort
Kor: Új építésű
Szintek száma: Földszintes
Egész szobák: 5

Egyéb jellemzők

  • Csatorna
  • Garázs
  • Pince
  • Terasz

Térkép


Így keressen budapesti ingatlant négy egyszerű lépésben. Csupán 2 perc, kötelezettségek nélkül!

Szűkítse a budapesti ingatlanok
listáját
Válassza ki a megfelelő
budapesti ingatlant
Írjon a hirdetőnek
Várjon a visszahívásra