Eladó családi ház Budapest XVIII. ker 149 900 000 Ft

Leírás

ELADÓ ÚJ ÉPÍTÉSŰ ÖNÁLLÓ KÉTSZINTES ÉS KLASSZIKUS 2 SZINTES IKERHÁZ A XVIII. KERÜLET ALMÁSKERT RÉSZÉN ÚJ ÉPÍTÉSŰ HÁZAK SZOMSZÉDSÁGÁBAN 1300 NM-ES TELKEN.

AZ ÉPÜLETEK SZIGORÚ KÖRNYEZETVÉDELMI ÉS ENERGETIKAI ELVÁRÁSOKNAK MEGFELELNEK!!

AZ ÉPÍTKEZÉS ELKEZDÖDÖTT!!!

Elrendezés és kivitelezés:

Az önálló kétszintes családiház az utcafront felől helyezkedik el, míg a telek hátsó részén a kétemeletes ikerház kap helyet.

Az ikerházak 146,05 nm-esek, hasznos lakóterületük 120,88 nm amerikai-konyhás nappaliján (34,08 nm) kívül 3 külön bejáratú hálószobával rendelkezik. Nappalija közvetlen kertkapcsolatos, 15 nm-es terasz és 25,17 nm-es garázs tartozik a lakáshoz. A földszinten lehetőség van arra,hogy akár még egy szoba kialakítható,ha a leendő vevő úgy akarja.

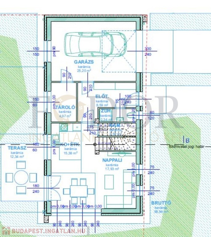
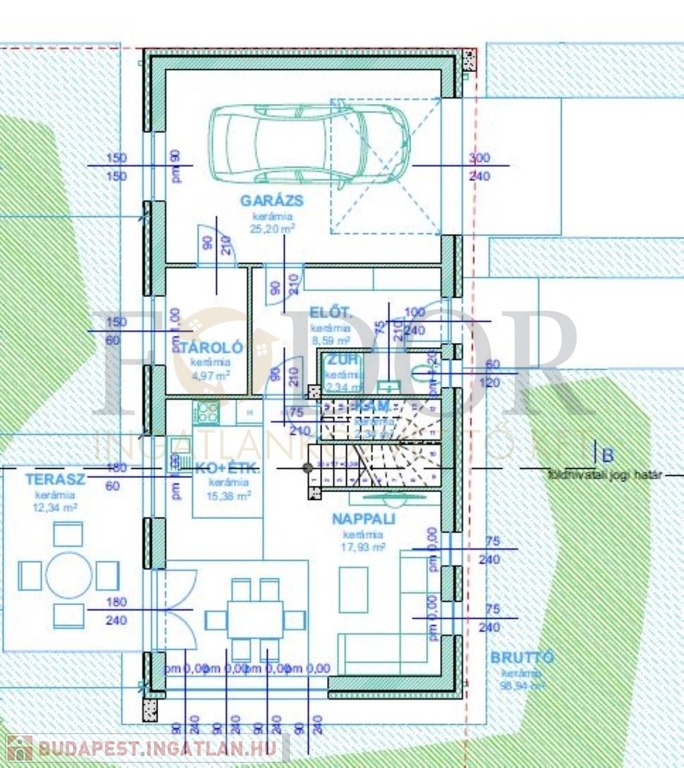
Az önálló két szintes családi ház 152 nm-es, hasznos lakóterülete 127, 61 nm, amerikai-konyhás nappaliján (33,31 nm) kívül 4 db külön bejáratú hálószobával rendelkezik. Nappalija közvetlen kertkapcsolatos, 12,34 nm-es terasz és 25,20 nm-es garázs tartozik a lakáshoz.

Elhelyezkedését tekintve az utcafront felől az önálló családi ház, a telek hátsó részén az emeletes ikerház kerül kivitelezésre. Az egész telek 1300 nm. Az önálló családi ház és az ikerházi lakások is saját leválasztott telekrésszel rendelkeznek, képek alatt a helyszínrajzon is jól látható. Az önálló épülethez tartozó telekterület kb 500 nm, az ikerházakhoz tartozó telekterület kb 400 nm.


Az ingatlan minden tekintetben meg fog felelni a mai kor elvárásainak. Megbízható tőkeerős kivitelező, precíz, minőségi anyagokkal és emberi erőforrással dolgozik, referencia házak a szomszédos telkeken. A hirdetésben szereplő vételár a kulcsrakész állapotra vonatkozik. Extra burkolatok, szaniterek, beltéri ajtók választhatóak. Évek óta megszokott brigád, kedves szomszédok.

A lakás fűtése és meleg víz ellátása 12 kw-os Levegő-víz Hőszivattyúval készül, amely 230 l-es meleg víztartályt is tartalmaz.

A lakások komfortjáról 2 db 3.5 kw-os inverteres hűtő-fűtő klíma fog gondoskodni .

Bővebb információért és részletes tájékoztatásért keressen bizalommal.

Önálló kétszintes családi ház ára: 149.900.000.- Forint
Ikerházak ára: 139.900.000.- Forint/db

Műszaki:
• 30-as főfal +10 cm-es tégla válaszfalak+ 15 cm homlokzati szigetelés
• Vasbeton sávalap
• antracit/fehér, műanyag tokos, 3 rétegű 6 légkamrás thermo üveges külső nyílászárók
• hőszivattyú, padló fűtéssel
• antracit színű cserép
Tulajdonságok:
• amerikai konyhás nappali
• 3- 4 db hálószoba
• 1 db fürdő /2 db wc
• Privát kerítéssel elválasztott saját telekrész
• kertkapcsolatos nappali
• elektromos kapu előkészítés és hőszigetelt szekcionált garázs ajtó+ motor az árban
• riasztó rendszer előkészítés

AZ INGATLAN KIVITELEZŐJE CÉG, KAMATTÁMOGATOTT HITEL, 10+15-ös CSOK IGÉNYELHETŐ.

AZ ÁRAK KULCSRAKÉSZ ÁLLAPOTRA VONATKOZNAK!

A környék infrastruktúrája kiváló, minden kiszolgáló egység és tömegközlekedés pár perc sétára megtalálható.

IRODÁNK INGYENES HITEL ÜGYINTÉZÉSSEL, TANÁCSADÁSSAL, SZÁMOS BANK AJÁNLATÁVAL ÉS AZ ÚJ CSOK FOLYÓSÍTÁSÁVAL VÁRJA ÜGYFELEIT

Családi ház részletei

Ár: 149 900 000 Ft
Méret: 152 négyzetméter
Azonosító: 11587894
Irodai azonosító: 338726
Telek: 500 négyzetméter
Ingatlan állapota: Kitűnő
Jelleg: családi ház
Építőanyag: Tégla
Komfort fokozat: Dupla komfort
Kor: Új építésű
Egész szobák: 5

Egyéb jellemzők

  • Garázs
  • Terasz

Így keressen budapesti ingatlant négy egyszerű lépésben. Csupán 2 perc, kötelezettségek nélkül!

Szűkítse a budapesti ingatlanok
listáját
Válassza ki a megfelelő
budapesti ingatlant
Írjon a hirdetőnek
Várjon a visszahívásra